外为镀杉木幕墙内为混凝土核心多彩的学校设计
Aug 20 , 2025 |
Views :
642
布伦伯格学校设计第一施工阶段。布伦贝格市计划对校园进行翻新、扩建和重组,以便将所有不同类型的学校集中在同一地点。第一期工程包括新建一栋教学楼,其中包括一所全日制三制小学、一所特殊教育和咨询中心(SBBZ)以及一个供整个校园使用的食堂。在第二施工阶段,将对现有的小学教学楼进行翻新和扩建,作为现有中学的扩建部分。
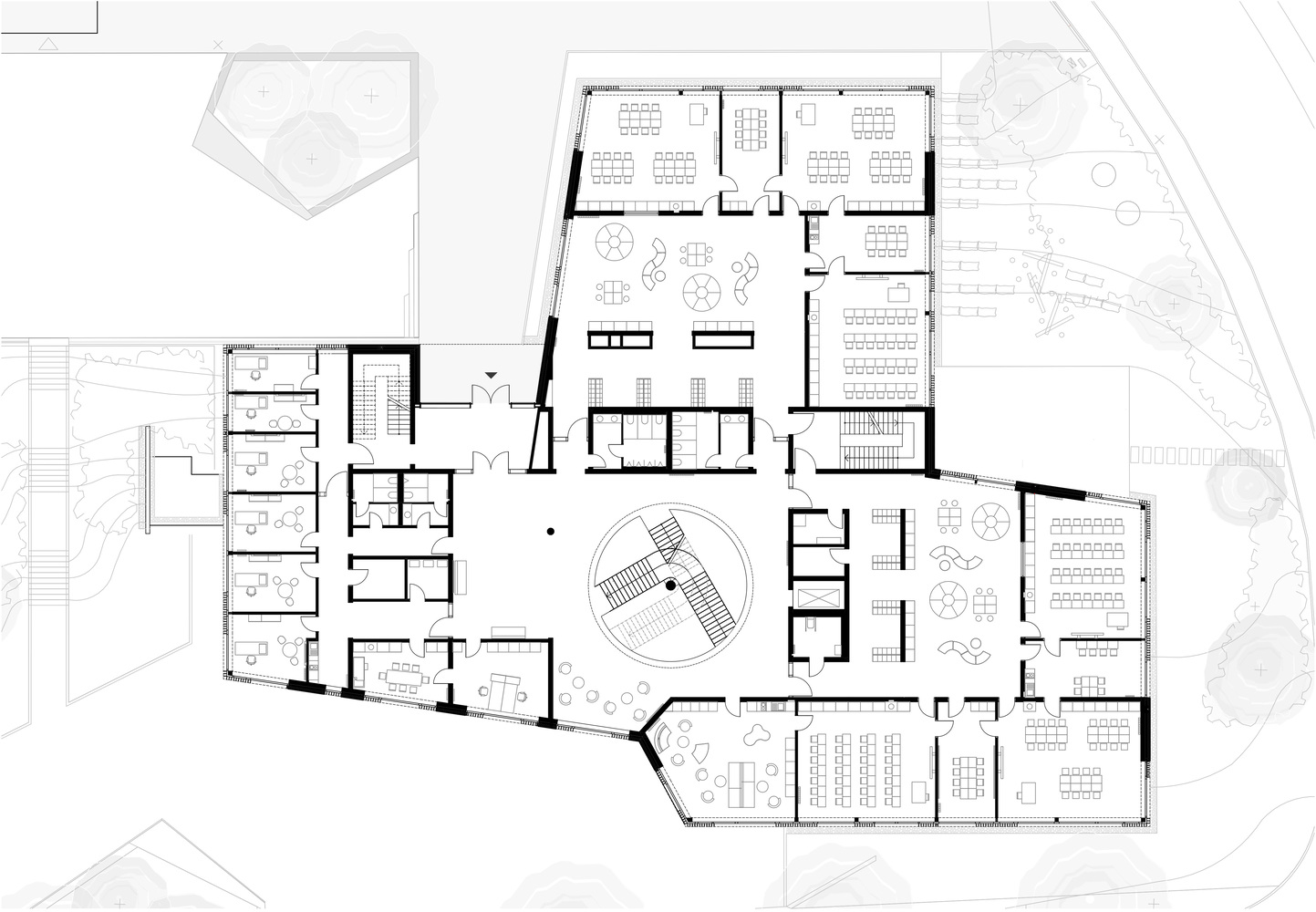
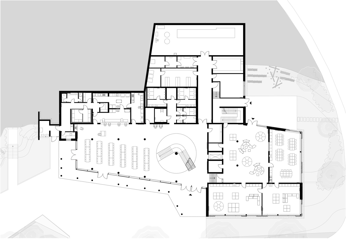
第一阶段,在现有学校建筑的东南侧建造了一座独立建筑。该建筑是与学校密切合作设计的,以符合学校的教育需求和理念。教室每三间一组,每组有两间较小的区分教室,围绕着一个所谓的 “市场”。这是一个宽敞、开放的学习区域,可用于小组合作、娱乐、演讲或个人学习。教室通过玻璃门和室内窗户与中央空间相连。
这些 “市场 ”以苜蓿叶的形式围绕中央大厅排列,形成了建筑的足迹。中心被设计成一个横跨所有楼层的中庭,并由天窗照亮。一个开放式楼梯将各楼层与底层的自助餐厅连接起来,自助餐厅也被设计成开放式区域,同时还可用作活动礼堂。建筑立面向南延伸至一个全新设计的前院,将校园外部与集体食堂连接起来。
全日制课程的教室也位于底层,并有专门的室外区域。学校行政部门位于中层,由于地势倾斜,可以从上层操场直接进入,也是地面校园的中心。该建筑为实心建筑,外墙为预镀杉木幕墙,内为混凝土核心筒。可开启窗户前的彩色木板条起到防坠落的作用,并将低矮的护栏高度和窗带与外墙融为一体。绿色屋顶配备了一个发电量约为 95 kWp 的光伏系统。