花旗松搭出慢时光农舍砖廊卷起山谷茶香的乡村住宅设计
Jul 21 , 2025 |
Views :
1,296
这座新建农舍乡村住宅设计旨在拥抱阳光明媚的北加州查帕拉尔景观,坐落于纳帕谷和索诺玛谷之间,追溯着该地区的根源。在 13 英亩农田的两座山丘之间,一座舒适多功能的单层附属住宅(ADU)拔地而起,其居住体验远超 1200 平方英尺的实际面积。业主是一对来自帕洛阿尔托的退休夫妇,他们渴望更小的居所与更慢的生活节奏,于是决定在这片起伏的土地上建造新居 —— 他们的长子一家正居住在这片土地上的一栋百年两层农舍里。

从外部看,新家的外观既尊重场地的乡村特质,也呼应了位于宽阔橡树屏风另一侧的历史农舍。如同其建筑前身,它采用明快的白色企口和 V 型槽壁板、美观的立柱以及直立锁边金属屋顶。环绕式带顶门廊不仅提供充足的遮阳保护,还通过建筑四面的高大法式门和顶部气窗引入微风,实现采光与通风。门廊的砖地面以篮纹图案铺设,并延伸至入口大厅,将室外与室内空间无缝衔接。
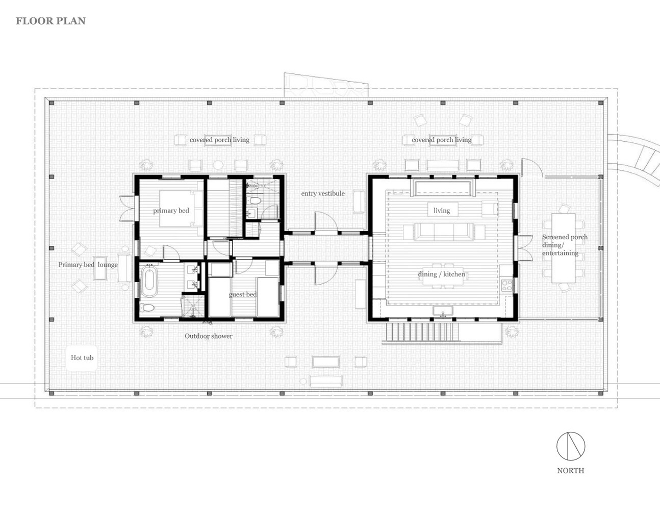
室内,经过精心设计的平面通过狭窄的入口走廊连接公共起居区与私密卧室区。公共区域包括大客厅、餐厅、厨房以及用于户外娱乐的屏风门廊;私密区域则包含带浴室和步入式衣橱的主卧室,以及尺度亲切的客用套房。
建筑元素采用手工砍伐的花旗松 —— 这种加州本土树种是西海岸历史室内设计的标志,为空间注入温暖与整体感。竖纹木板应用于墙面镶板、定制橱柜、嵌入式家具、书架、家电面板和衣橱等,此外还有定制细节,如客厅的灯架和环绕室内的画框线。