将场地原始沙丘形态转化为建筑肌理让沙滩成为主角的民宿设计
Jul 31 , 2025 |
Views :
633
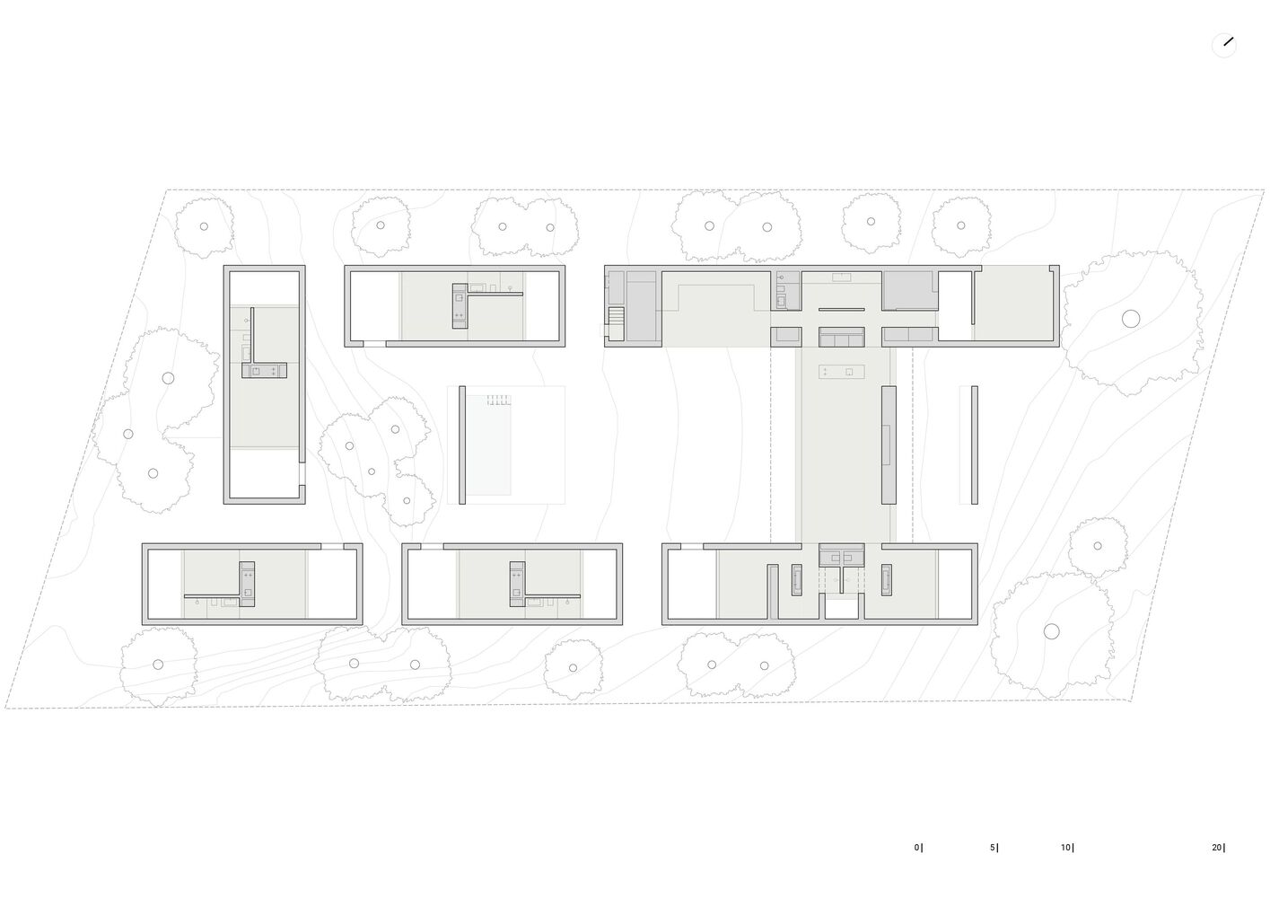
让人始终能感受到脚下沙滩的存在的民宿设计。沙丘在墙体之间被 “压缩”,将这片场地转化为一座可供居住度假的住宅。
住宅本身就是边界,是框定视野的设计表达。针对碎片化的功能布局,设计以统一的造型与之相对。那些近乎封闭的建筑体量以一定节奏排列,构成了空间的外围。每个单元 —— 卧室、庭院,都是一处隐秘的休憩之地。
私密空间在室外得到完善与拓展。客厅延伸至沙地之上,在树荫下不断延展。