洞穴与光庭的空间蒙太奇深色基座上的悬浮剧场别墅设计
Jul 7 , 2025 |
Views :
578

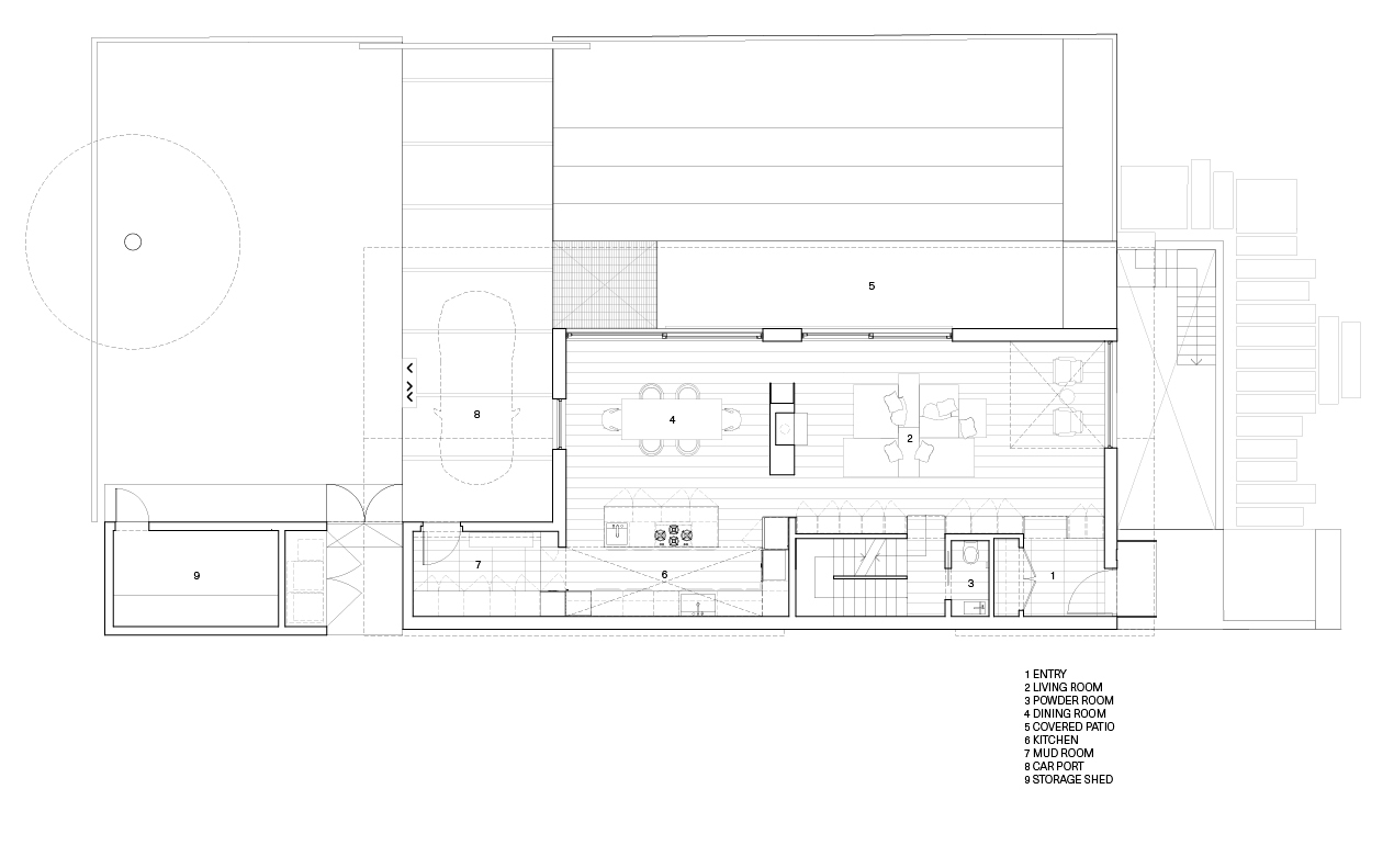
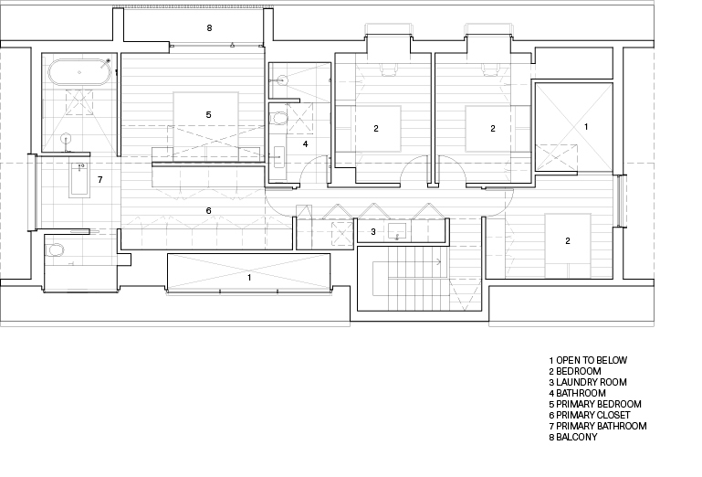
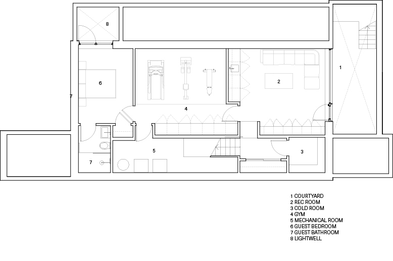
威斯敏斯特别墅设计坐落在多伦多海柏公园社区(High Park neighborhood)的一块街角用地上,周边环绕着传统的爱德华式山墙住宅。这座 2340 平方英尺(约 217.4 平方米)的三居室住宅是一个四口之家的主要居所。设计旨在通过经典的屋顶形式营造一种潜在的熟悉感和延续性,在融入环境与脱颖而出之间创造一种矛盾的平衡。项目隐藏在陡峭的风化赤陶瓦屋顶下,探索了 “占据屋顶下方空间” 的概念,类似于阁楼的空间体验。






住宅的简洁形态由三个深色的整体体量构成:低矮的深色砖砌基座、厚重的三角形石材屋顶,以及高耸的直线型天窗。沉重的屋顶不对称地悬浮在一层上方,悬挑出带顶的车棚和侧露台,在简单的体量之间营造出一种微妙的动态张力。两个天窗在尺寸和材料上相近,却呈现出截然相反的姿态:西侧天窗与地面相接,成为立面的基座;东侧天窗则以悬挑的方式 “悬浮” 在车棚上方,形成视觉上的悬念。







材料氛围融合了 “反派巢穴的深邃” 与 “轻盈避难所的通透”(这实际上是两位合伙人设计理念的结合)。内敛的材料 palette 包括深色染色平锯胡桃木、厚重的未填充石灰华、混凝土和深色质感的石灰洗墙,与双倍挑高的明亮柔和石灰洗墙、宽板结疤白橡木地板以及柔软的亚麻织物形成强烈对比。从压缩的洞穴般空间到通透敞亮的区域,居住者在移动中体验空间叙事的反转。








设计通过对传统屋顶形式的抽象演绎,既尊重了街区的历史文脉,又以深色体量和悬挑结构赋予建筑现代性的表达。室内外材料的碰撞与空间节奏的变化,使住宅在功能性之外,成为承载家庭生活与情感的立体容器。










