利用有限的不同材料充分利用现有混凝土结构的大平层设计
Oct 5 , 2025 |
Views :
426
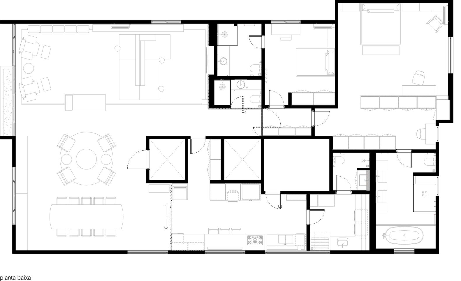
这栋公寓大平层设计翻新项目利用了该物业的原有特点,并将其与新住户的需求相结合。对建筑结构的分析表明,公寓混凝土天花板的可见面没有结构功能,只是一种 “修饰天花板”。于是,我们小心翼翼地将这层薄薄的混凝土拆除,露出了之前被隐藏起来的结构梁。

以双鱼鳞图案铺设的现有实心ipe地板得到了保留和修复。外围墙壁上的灰泥被铲除,露出了原有的实心砖。原有的一间卧室和餐厅被拆除,以扩大客厅和厨房的空间。
该套房还通过拆除另一间卧室进行了扩建。利用有限的几种不同材料和饰面,充分利用现有的大部分结构,创造出一体化的环境。