柚木百叶筛选阳光别墅群设计溶解在硬木林与海浪双重呼吸里
Jul 6 , 2025 |
Views :
638
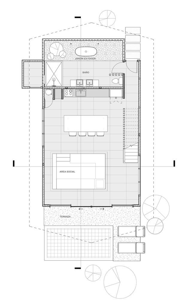
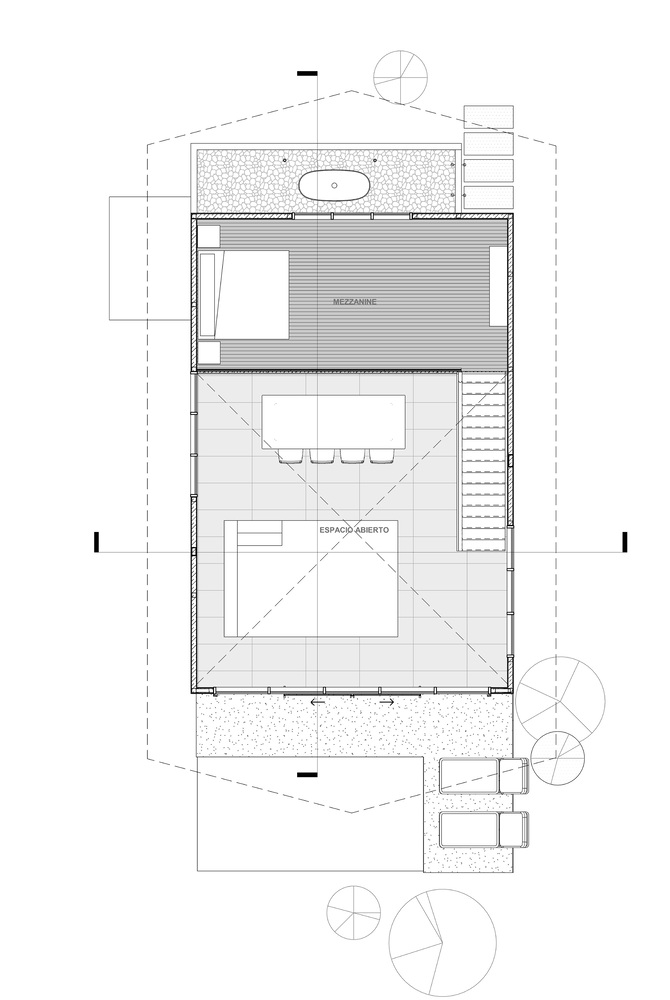
Indo Avellanas 是一处豪华别墅群设计,坐落在阿韦利亚纳斯,这里拥有一系列一居室和两居室的别墅,距离太平洋仅几步之遥。Indo Avellanas 的目标是打造一个亲密的社区,满足那些在哥斯达黎加这个特殊地区停留更长时间的客户在生活方式、旅行和健康方面的期望。
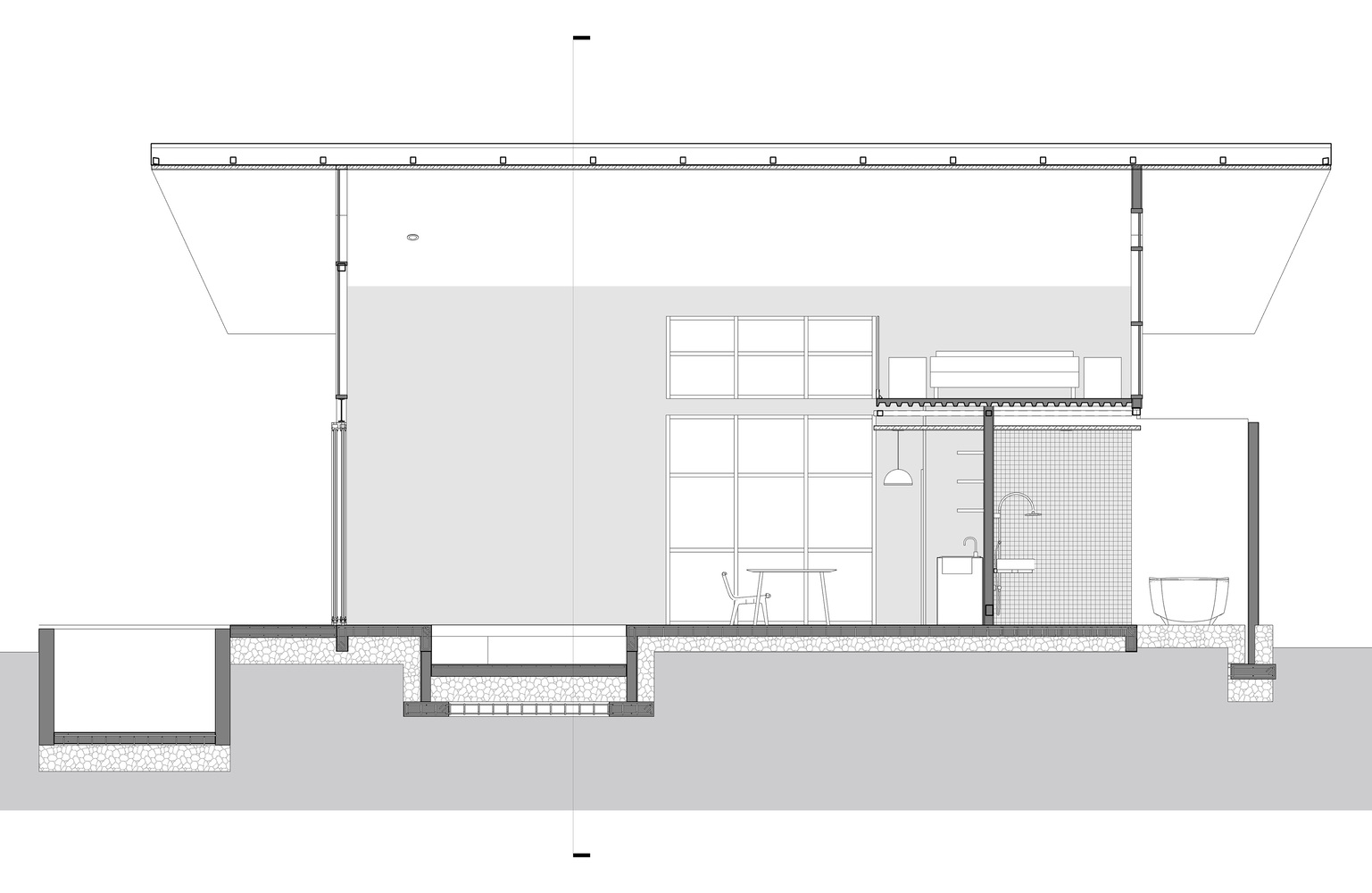
这 6 栋别墅由两种不同的设计组成,分别是两居室单元和一居室单元。两种设计都以开放式生活空间为核心,该空间与私人露台和小型游泳池无缝相连,充分融入了场地内成熟的硬木和热带花园。
在别墅的布局过程中,已采取措施确保场地内所有现有的成熟树木都未受到影响。这些别墅采用轻型钢框架结构和本地采购的柚木,确保开发项目在这片郁郁葱葱的场地上尽可能减少对环境的影响。