20° 旋转体块切开秩序黑白带出解构诗意的服装工作室兼展厅设计
这是一个服装工作室兼展厅设计。在YOUYILIN的世界里,服装是解构主义的诗。它以锋利的廓形剖开刻板印象,用面料的肌理编织女性精神的复杂性。当品牌基因注入空间,我们以建筑为媒介,将YOUYILIN的设计哲学凝固为三维实体。
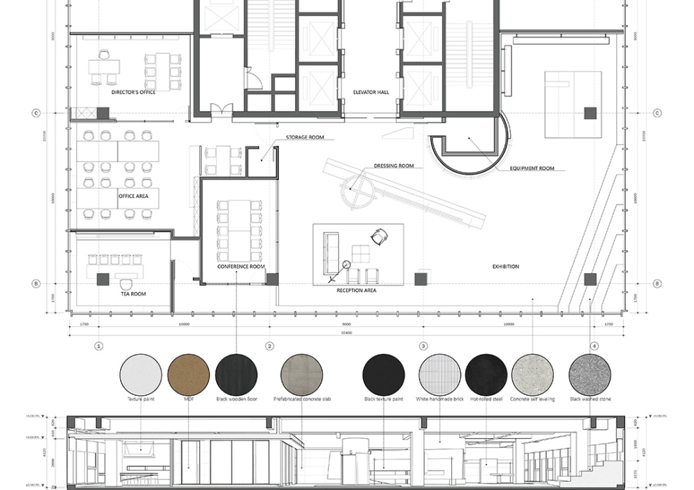
项目位于杭州临平艺尚小镇旁的写字楼中,面积为443.2429877㎡。功能涵盖办公,会议,私密洽谈,接待及产品展厅。是一个具有多重功能的复合空间。在设计中,设计师根据使用功能的不同,将空间解构为三种状态:封闭(办公/私密洽谈)、半开放(会议)、开放(展厅),通过类型聚合最大化空间尺度张力。

在尺度营造策略上,设计师颠覆传统XYZ坐标系。在其基础上叠加了一个旋转20°的体系——入口的黑色贯穿体块及与其垂直的三角阶梯,在笛卡尔网格中楔入第二透视参照系。双重坐标系的碰撞使空间化为动态力场。这种叠加效应下,观者在移步换景中持续经历空间认知的瓦解与重建。犹如传统的东方园林空间,通过重构的空间尺度,以及浏览路径下的错位感知,对空间产生新的感受。
在UTH studio中,材质系统严格服务于结构主义美学与品牌黑白色谱:斜向体块采用黑色真石漆覆面,其粗粝肌理强化体量切割的视觉张力;黑色热轧钢板应用于结构性节点。现浇混凝土与预制混凝土板构成空间基底,裸露骨料质感呼应粗野主义基因;水洗石重点作用于三角阶梯踏面及局部墙面;白色手工砖铺砌关键区域,与肌理漆墙面共同建立浅色基调。
材质选择始终遵循三重逻辑:混凝土与钢板的刚性对比奠定解构基础,黑白材质占比精准匹配产品色谱数据,而水洗石肌理变化与铝型材精密节点则分别转译面料手作温度与工业精度,使空间成为品牌哲学的技术宣言。
在UTH studio的设计中,功能需求始终是核心驱动要素。经过多轮方案迭代,最终保留斜向体块与三角阶梯等基础几何构成,以此建立空间的第二透视参照系。圆柱形空间包裹了设备间,也作为整个空间的中继点,此处,多个体块的视觉延长线相交,但是我们将此留白,让其具备更高的适应性,可转换为秀场、拍摄基地或临时展厅,为成长中的品牌提供应对未来发展需求的弹性空间框架。
UTH studio的设计实现了功能与美学的辩证统一。斜向体块的切割策略在建立空间新秩序;严谨的材质系统将品牌黑白色谱转译为建筑语言。最终,空间作为品牌叙事的沉浸剧场,在机械骨骼中生长出温度留白,让每一寸空间都成为对‘女性多面宇宙’的立体注解。同时亦超越物理容器的范畴,成为支持创意迭代的弹性载体。
项目名称 – UTH studio
设计机构 – MOON LAB
施工单位 – 杭州智悦装饰
设计团队 – 寿如松 许溯阳
项目面积 – 443.2429877m²
项目地址 – 浙江 杭州
项目摄影 – 黑 水