融合现代主义与地中海风情有机奢雅雅典公寓设计

该公寓设计在雅典 Papagou 区绿意掩映的街角,一栋融合现代主义语汇与地中海风情的建筑静静伫立。建筑顶层的复式公寓,是建筑与设计工作室 Block722 为自己打造的家。创始人 Katja Margaritoglou 与 Sotiris Tsergas 以 “有机奢雅” 为内核,将 230 平方米的空间化作贴合四口之家日常的 “永恒之宅”—— 它既回应着雅典的气候与地域特质,又以手工细节、亲自然设计与定制化布局,为当代城市生活勾勒出 “归属感” 的全新模样。






Papagou 区作为雅典的经典片区,留存着 20 世纪国际风格的建筑印记,这成为 Block722 设计建筑外观的重要灵感。这栋新建住宅楼以几何明晰的形态致敬区域的 “黄金年代”,却又用柔和的曲线、温润的木质细节与繁茂的地中海植物,消解了现代主义的冷峻。建筑朝南背靠树林,街角的地块优势让自然绿意与城市景观得以双向渗透,而 Block722 将顶层两层留作自用,也为打造 “空中独栋住宅” 埋下伏笔。与本地承包商 Thekla Construction 的合作,让这栋包含五套住宅的精品建筑,既保持了开发的专业性,又融入了工作室对家的独特理解。从建筑外立面的材质选择,到窗洞的比例设计,每一处都在平衡 “地域记忆” 与 “当代需求”—— 石材的硬朗呼应着雅典的城市肌理,木质格栅的轻盈则适配着地中海的阳光,让建筑在 Papagou 区的街道上,成为既熟悉又新鲜的存在。







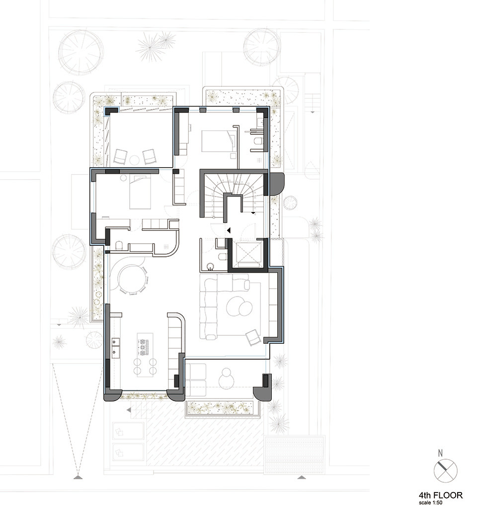
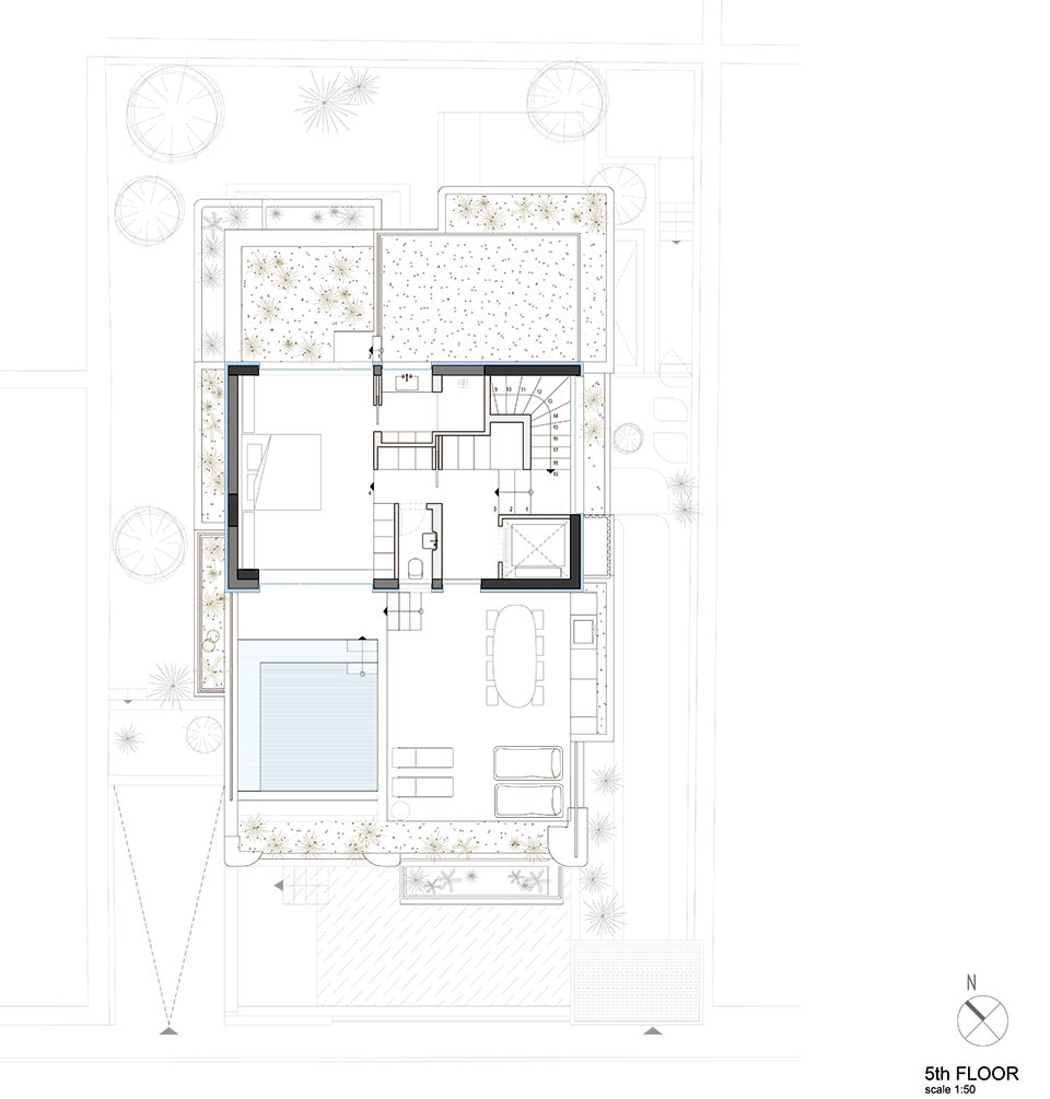
对 Block722 而言,这所公寓绝非简单的设计作品,而是为四口之家量身定制的生活载体。230 平方米的复式空间被划分为上下两层:下层是开放式的生活核心区,大厨房、流动的客餐厅通过家具与轻质隔断自然划分功能,既满足家庭日常的互动,又能承接宾客来访的社交需求;两个卧室则藏于一侧,保障了私密感。上层的主卧套房独占一层,直通屋顶露台,泳池、休闲平台与半场篮球场的设置,让这里成为家庭的 “空中绿洲”。为了让空间 “如手套般契合” 生活,Margaritoglou 与 Tsergas 带领团队进行了无数次生活情景推演:孩子的玩耍动线、夫妻的工作需求、家庭的聚餐场景,都成为布局设计的依据。工作室自行设计的大部分家具,或嵌入墙体节省空间,或灵活移动适配不同场景;艺术品的摆放、手工装饰的位置,也都与家庭成员的审美与习惯相呼应。这种 “从生活出发” 的定制化设计,让空间没有一丝多余的装饰,却处处透着 “为我而造” 的贴心。







“健康与亲自然” 是贯穿设计的核心线索,而自然触感的材料,则成为这份理念最直观的表达。大理石的冷冽、木材的温润、红洞石的肌理、陶瓷砖的质朴,再加上油处理的木地板,不同材质的触感与色彩在空间中交织,形成富有层次的感官体验。这些材料均选自希腊本地,既降低了运输的生态足迹,又让雅典的地域特质融入家的肌理 —— 大理石的纹理呼应着雅典卫城的石材美学,红洞石的暖调则适配着地中海的阳光氛围。大面积的开窗是连接室内外的关键。每个房间都以窗为 “画框”,将 Papagou 区的绿意与城市景观引入室内;自然光随着日照轨迹在空间中流动,让生活节奏与自然的昼夜节律保持同步。屋顶露台的设计更是将 “亲自然” 推向极致:泳池的水色与天空相映,绿植的繁茂与远处的树林连成一片,篮球场上的欢笑与地中海的微风相融,让高层公寓的生活,拥有了独栋住宅的自然体验。







Block722 所倡导的 “有机奢雅”,并非奢华材料的堆砌,而是 “人与空间、自然有机共生” 的优雅。手工细节是这份美学的灵魂:本地工匠打造的陶瓷摆件、手工雕琢的木质装饰、肌理涂层的墙面,都带着手作的温度,让空间拒绝 “完美的冰冷”,拥抱 “时间的痕迹”。这些细节不会因岁月流逝而褪色,反而会随着生活的打磨,沉淀出更浓郁的家的味道。如今,这所公寓早已超越了 “建筑作品” 的范畴,成为 Block722 工作室价值观的具象表达。它没有刻意的设计炫技,却以功能性与情感性的双重契合,让居住者在其中感受到轻松的归属感与熟悉感。在这里,家人间的联结、人与场所的联结、人与生活节奏的联结,都被温柔安放。而这,正是理想之家的本质 —— 它不是静止的空间,而是与生活共同生长的、有生命的容器。



















