体现现代建筑语言与传统伊斯兰图案和谐统一的清真寺设计
Jul 4 , 2025 |
Views :
903
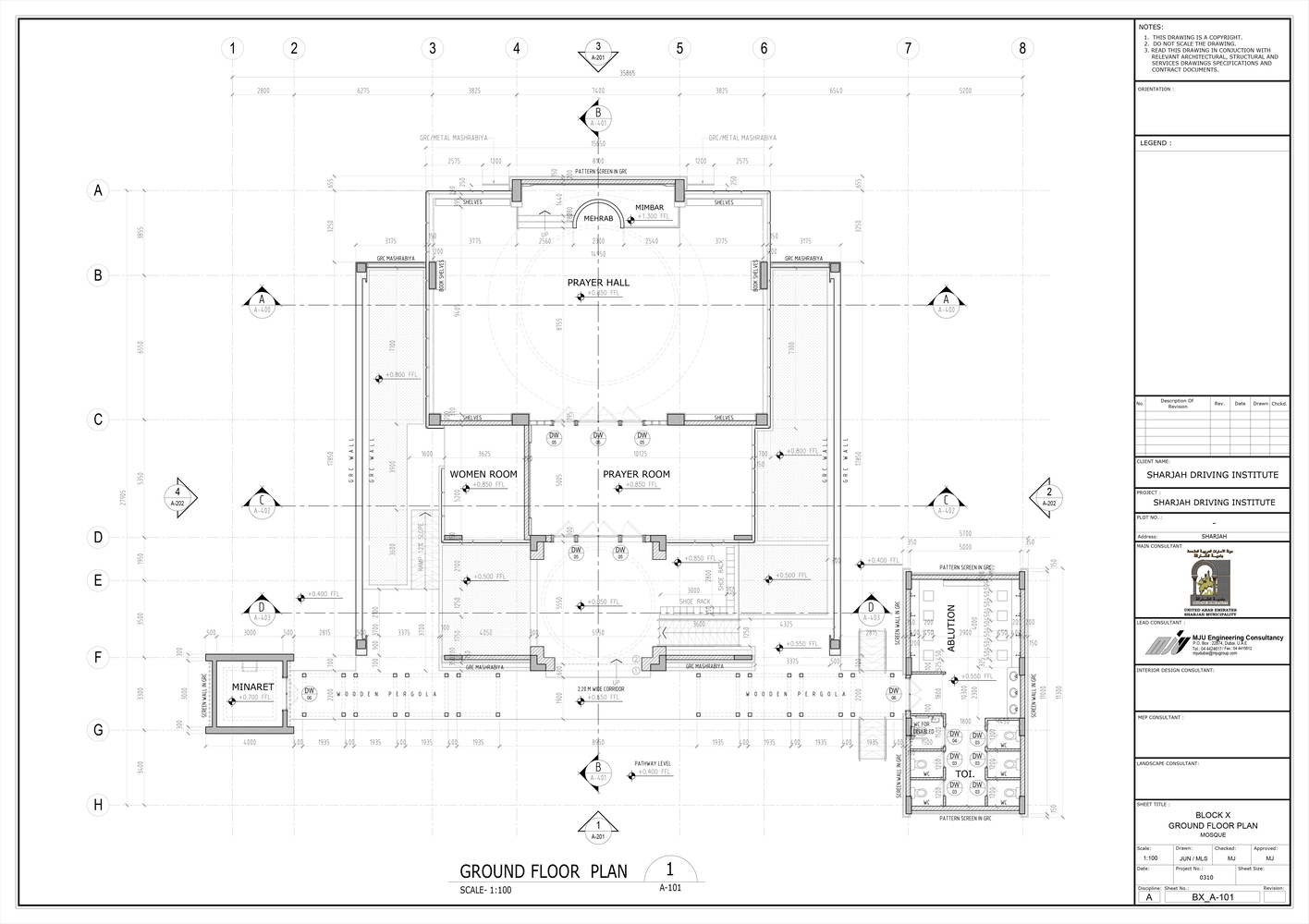
MJU 工程咨询公司为沙迦驾驶学院设计的清真寺体现了现代建筑语言与传统伊斯兰图案的和谐统一,既体现了文化意义,又具有现代功能。设计从丰富的伊斯兰建筑历史中汲取灵感,其特点是复杂的几何形状和光线的运用。建筑立面采用精致的 “mashrabiya ”屏风,可以过滤阳光,在室内空间营造出光影交错的动态效果。这不仅增强了精神氛围,还通过减少热量增加提高了能源效率。



中央祈祷大厅的设计具有战略意义,既能容纳大量教徒,又能确保有利于礼拜的宁静氛围。清真寺的空间布局增强了用户体验,促进了社区参与。这种多功能的设计方法既满足了社区的精神需求,又促进了社交互动,营造出了一个无障碍、有吸引力的和谐环境。




该项目采用的施工技术注重可持续性和耐久性。钢筋混凝土被用来创造广阔的开放空间,而外墙则采用玻璃和预制混凝土板组合而成。当地石材的使用不仅支持了地区工艺,还增强了清真寺与景观的联系。建筑信息模型(BIM)等创新技术促进了精确的规划和执行,确保遵守项目时间表和预算。




清真寺的建筑语言由精确的几何图形和装饰细节构成。外墙上环环相扣的几何图案是伊斯兰哲学的关键原则–统一与和谐的视觉代表。穹顶是清真寺建筑中的一个传统元素,但在重新诠释时却加入了现代元素,采用了极简主义设计,既保持了宏伟感,又不失整体美感。设计中实体与虚空的并置创造了视觉趣味,让自然光渗透到内部,增强了朝拜者的精神体验。

