像法国南部庭院般惬意秘境让普拉提与咖啡共赴自然之约
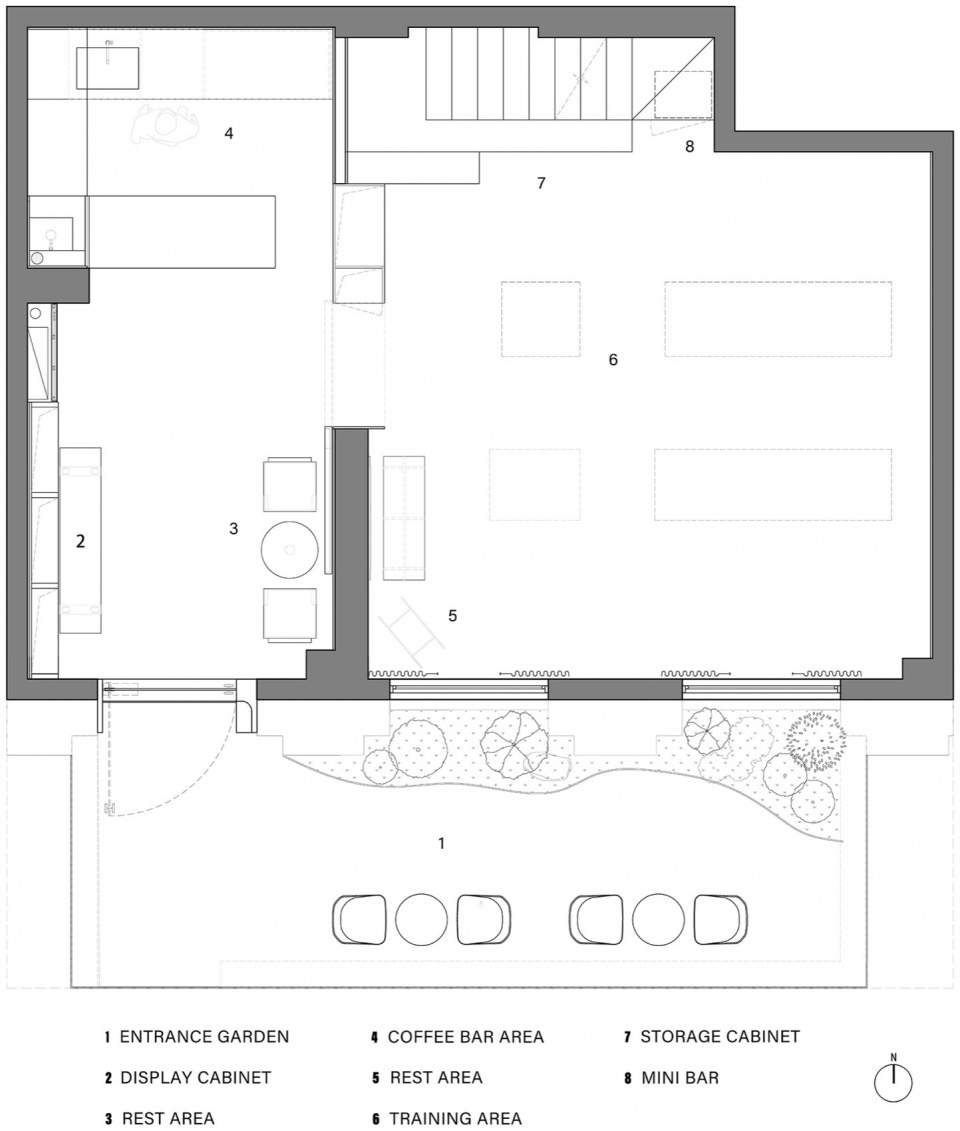
在无锡,园舍空间设计,将 83 平方米的普拉提馆场为一群热爱普拉提的 30 岁女性设计成了名为 “Star Pliates Hub” 的身心疗愈空间。这里没有传统运动场馆的刻板与冰冷,而是以 “星星” 为喻,用低饱和绿植、流动纱帘与温润木材,在都市里凿出一处 “像法国南部庭院般惬意” 的秘境 —— 访客推门而入,先被入口花园的微风与咖啡香包裹,再随书架移门的开合,步入光影柔和的普拉提区,在身体与重力的对话中,卸下城市的疲惫,成为自己宇宙里最闪耀的 “星”。
Star Pliates Hub 的 “疗愈感”,从踏入门前就已开启。园舍空间设计没有让入口沦为 “简单的通道”,而是将其打造成一处 “属于星星的私密花园”,用自然元素为访客做 “情绪缓冲”。户外空间里,低饱和度的绿植与天然火山石堆叠出层次 —— 没有艳丽的花卉,只有舒展的枝叶与粗糙的石面,像法国南部乡村的小庭院,透着不刻意的松弛;柔软的纱帘悬挂在门头,微风拂过时,纱帘随风画出轻盈的弧线,树影透过纱帘落在地面,光影晃动间,城市的喧嚣仿佛被隔绝在外。访客在这里等待时,不用面对冰冷的墙面,而是可以坐在定制桌椅上,品一杯咖啡,与同伴闲聊琐碎日常 ——“等待” 不再是浪费时间,反而成了一段 “可分享的空白时光”,为接下来的普拉提体验铺垫好平和的心境。
入口左手边的展示柜,更藏着主人的 “旅行故事”:柜里陈列着她在各地旅行时挑选的小物件 —— 可能是一枚海边的贝壳、一块异国的陶片、一本复古的画册。这些物品不是冰冷的装饰,而是 “可触摸的记忆”,学员挑选或询问的瞬间,便与主人完成了一场无声的情感交换,让空间多了份 “人与人联结” 的温度。
83 平方米的场地,要同时容纳咖啡区、普拉提区与配套功能,还要避免拥挤 —— 园舍空间设计的解法,是 “利用层高做分层,用灵活隔断做串联”,让空间既能 “合一” 又能 “独立”,满足多场景需求。设计师抓住场地的层高优势,搭建了二层夹层,将更衣室、浴室、Minibar 等配套空间 “藏” 在二楼,彻底释放一楼空间,让咖啡区与普拉提区拥有完整的活动范围。这种设计不仅让一楼 “视野无遮挡”,学员从进门就能清晰看到核心经营区域,潜移默化中提升体验欲;还让功能分区更合理 —— 运动相关的配套放在二楼,形成 “运动前上楼更衣、运动后上楼沐浴” 的动线,避免与一楼的咖啡休闲区交叉干扰。
咖啡区与普拉提区之间,没有用固定隔墙,而是设计了一道 “书架移门”—— 这道移门既是 “收纳架”,又是 “空间开关”:移门打开时,咖啡区的香气与普拉提区的光线交融,空间变得开阔通透,适合举办小型沙龙或体验课,学员运动后可以直接在咖啡区休息,不用特意移步;移门关闭时,普拉提区瞬间切换为 “私密模式”,声音、光线被层层过滤,只有柔和的灯光留在室内,像一片安静的星空。学员在这里运动时,能专注于身体与重力的对话,不受咖啡区的干扰。这种 “弹性设计”,让 83㎡的小空间拥有了 “大场景” 的可能性 —— 既能满足日常的咖啡休闲与普拉提教学,又能应对沙龙、分享会等特殊需求,每一寸空间都被充分利用,却不显局促。

空间深处的 “杂志移门”,是调节氛围的关键:关闭移门后,外界的光线被进一步过滤,室内只留下柔和的定制灯光 —— 灯光亮度会随着呼吸节奏缓慢明暗,像星空的闪烁,又像自然的呼吸。时间仿佛在此时被折叠,学员躺在器械上,看着头顶的 “星光”,感受光线的变化,身体会不自觉地放松,更容易进入 “专注身体” 的状态。主器械区的镜子也经过巧妙设计:镜子不是冰冷的平面,而是与灯光搭配,形成 “光影反射”—— 学员运动时,能看到自己的动作,也能看到镜子里反射的柔和光线,避免了传统健身房镜子带来的 “压迫感”,更专注于动作本身的舒展。

设计师坚持 “场地本身就是最大的材料来源”,经过人工处理后,清水混凝土与温润的海洋板形成了奇妙的对话:清水混凝土地面保留了原始的肌理,赤脚踩上去,能感受到自然的粗糙质感,像踩在大地之上;海洋板打造的器械框架与墙面,带着木材的温润色调,中和了混凝土的冷硬,让空间既有 “大地的沉稳”,又有 “木材的温暖”。这种材质组合,营造出 “能赤脚行走” 的安全感 —— 学员不用穿着鞋套,可以直接与地面接触,感受材质的温度与质地,仿佛置身于自然之中,运动时更能体会 “下肢像根系般深入大地” 的感觉,与普拉提 “联结自然、关注身体” 的理念完美契合。
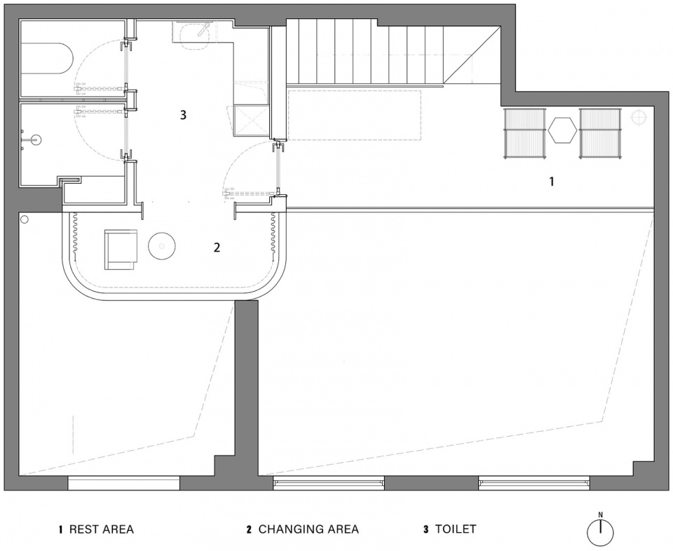
二楼是会员专属的私密区域,园舍空间设计将 “更衣动线” 设计成一场 “拾阶而上” 的微型仪式,让 “准备运动” 与 “放松运动” 都成为享受。楼梯的设计暗藏巧思:楼梯下方没有浪费空间,而是嵌入了柜体,既作为客人的物品收纳柜,又集成了 Minibar 功能 —— 学员上楼更衣时,能顺手放下随身物品,运动后还能在这里取一杯饮品,动线流畅且贴心。“拾阶而上” 的过程,更像是一种 “心理过渡”:身体在缓慢上楼的过程中,逐渐从 “日常状态” 切换到 “运动状态”,被空间温柔看见,也被他人温和接纳,没有局促感。
浴室与更衣间的细节,更透着 “精致的呵护”:每一样洗护用品都是精心挑选的,带着淡雅的芬芳;墙面没有采用冰冷的瓷砖,而是用温润的材质包裹,灯光柔和地照亮空间,没有刺眼的直射光。学员运动后在这里沐浴,温热的水流与芬芳的洗护用品,能彻底冲洗掉身体的疲惫,让 “锻炼” 不再是 “辛苦的任务”,而是一场 “从身体到心灵的疗愈”。当夜色渐深,“星星” 们推门离去时,带走的不仅是舒展的身体,更是一张 “被改写的身体星图”—— 更低的肩线、更缓的呼吸、更轻的脚步。园舍空间设计用 83 平方米,证明了好的空间从不是 “越大越好”,而是能精准捕捉使用者的需求,用自然、光影与温度,为每一个渴望逃离城市压力的人,打造一处 “能与自己、与自然对话” 的疗愈角落。Star Pliates Hub,不仅是一间普拉提场馆,更是主人送给自己的 30 岁礼物,也是送给所有 “星星” 的 “身心栖息地”。