从使用者变为创作者连接阅读情感与土地记忆的图书馆设计
由 The MAAK 建筑事务所打造的拉赫玛图书馆设计。(Rahmah Library)在南非开普敦第六区拉赫玛尼耶小学内,这里不仅是一座全新的教育场馆,更是一场 “以使用者为核心” 的设计革命 —— 它让学生从 “空间使用者” 变为 “联合创作者”,用协作设计、在地历史与灵活功能,为 500 多名学生筑起了 “第二个家”,也让图书馆成为连接阅读、情感与土地记忆的纽带。拉赫玛图书馆的外观设计,既呼应着开普敦的自然环境,又传递着 “欢迎孩子走进来” 的温暖气质。
单坡屋顶的双重智慧:建筑以简洁的单坡屋顶为标志,屋顶向南侧抬高,将远处壮丽的山景引入视野 —— 孩子们在阅读间隙抬头,就能与自然对话;而北侧较低的屋顶则巧妙遮挡烈日,避免阳光直射室内,让图书馆始终保持凉爽舒适,适配当地气候;弧形入口的亲和力:三角形东立面下方,一面弧形玻璃砖墙向外倾斜,打破了传统建筑 “直角” 的生硬感。这面墙不仅围合出带顶篷的活动区,为孩子们提供雨天也能玩耍的空间,更形成了柔和的入口曲线 —— 就像张开的怀抱,让孩子愿意主动走进这座 “阅读屋”;砖墙的历史呼应:外立面用不同砌砖方式、色彩与纹理打造层次,特意呼应拉赫玛尼耶小学原校舍(第六区现存最古老的学校建筑)的材料风格。新旧建筑在材质上的呼应,让图书馆不显得突兀,反而像从校园里 “自然生长” 出来,增强了空间的归属感。
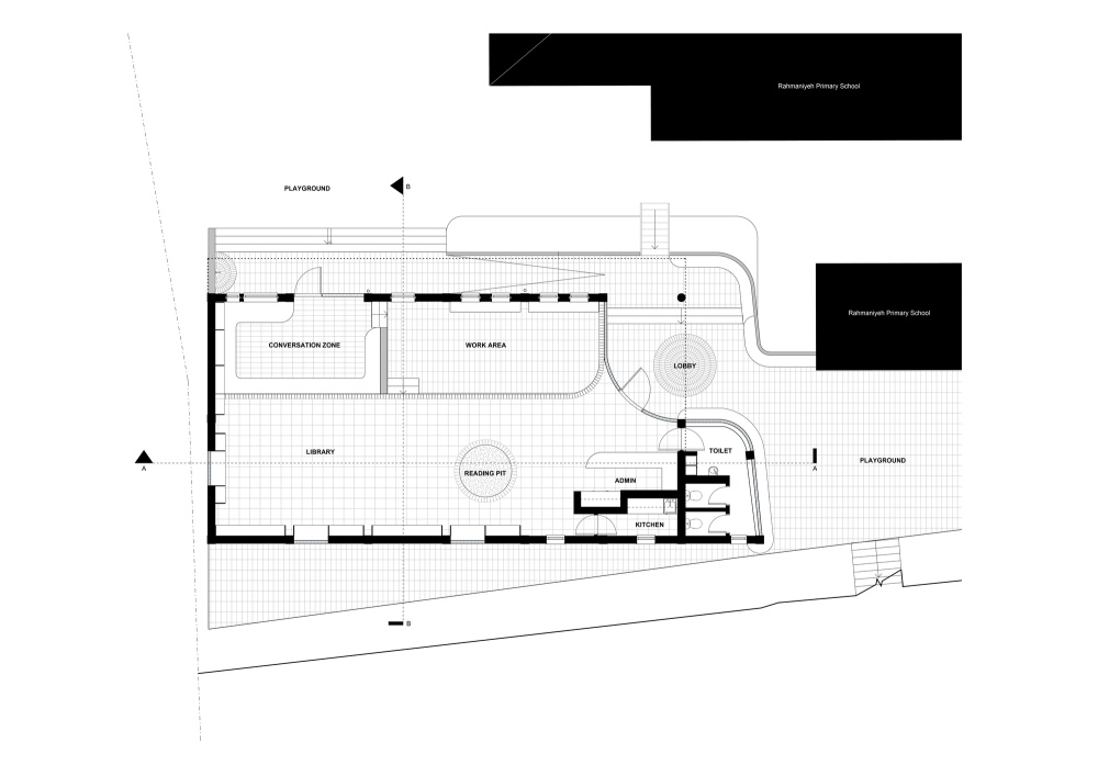
图书馆内部没有割裂的隔断,而是用 “地面坡度” 与细节设计,自然划分功能区,同时满足孩子多样的阅读需求:通透布局与隐性分区:整个空间开阔通透,接待区、下沉式阅读坑、中央图书馆区、教室区、交流休息区,通过地面平缓的高度变化自然分隔 —— 比如下沉式阅读坑比周边地面低半米,用台阶形成 “围合感”,成为孩子躺靠阅读的 “秘密角落”;服务区则被巧妙隐藏,不破坏整体视觉的流畅性;适配孩子的 “阅读自由”:设计团队充分考虑儿童的行为习惯,打造出能容纳多种 “阅读姿态” 的细节 —— 中央区域有适合静坐的桌椅,阅读坑铺着柔软的垫子适合躺靠,窗边有低矮的书架和小凳方便独自翻书,角落还有圆形桌椅供小组共读。在这里,孩子不用 “规规矩矩坐好”,可以用最舒服的方式与书籍相处。
拉赫玛图书馆最动人的设计,在于它是 “孩子参与共创” 的成果。在儿童中心设计师扎内莱・门嫩(Xanelé Mennen,奥托基金会成员)的协助下,The MAAK 建筑事务所通过一系列工作坊,让学生成为 “未来图书馆的主人”:从创意到现实的 “拉赫玛 – 拉玛” 书架:“打造一个像‘魔法’一样的书架”—— 这是学生在工作坊中提出的想法,后来由当地家具设计师佩德森(Pedersen)与伦纳德(Lennard)转化为 “拉赫玛 – 拉玛”(Rahmah-Rama)书架。这个书架不仅造型充满童趣,更贴合孩子的身高,方便他们取放书籍;信任与期待的建立:工作坊不只是 “收集创意”,更让孩子感受到 “自己的想法被重视”。门嫩提到,这个过程 “赢得了学生的信任,培养了他们的自主意识”,也让孩子们对图书馆充满期待。当看到自己的创意变成现实,孩子对这座空间的 “情感联结” 也随之加深 —— 这里不再是 “学校的图书馆”,而是 “我们设计的图书馆”。
为铭记开普敦第六区的历史(曾因种族隔离时期的强制迁移而历经变革),设计团队将 “土地记忆” 融入建筑细节,让图书馆成为 “历史的载体”:黏土里的时光痕迹:事务所与艺术家扎扬・汗(Zayaan Khan)合作,收集周边社区的黏土 —— 部分黏土中还嵌有第六区昔日被拆房屋的碎石,将其制成门把手面板、装饰瓷砖,以及定制的 “第六区砖块”;历史的 “实体传承”:这些黏土制品被巧妙布置在空间中 —— 门把手让孩子每天触摸 “土地的记忆”,装饰瓷砖讲述着社区的过去,“第六区砖块” 则铺设在入口大厅地面与室外饮水池前。从实体到象征意义,这些细节让图书馆深深扎根于这片土地,也让孩子在阅读之外,能触摸到自己生长的地方的历史。
2025 年启用的拉赫玛图书馆,对拉赫玛尼耶小学而言是里程碑式的存在 —— 在此之前,这所学校从未有过专属图书馆。如今,它不仅是 “知识的容器”,更是 “孩子的第二个家”(校长希琳・贾费尔语):
它是阅读与想象的庇护所,让孩子爱上翻书的乐趣;
它是协同创作的典范,证明 “孩子的想法能塑造更好的空间”;
它是历史与当下的桥梁,让年轻心灵在阅读中读懂土地的故事。
未来,这座充满活力的场馆,将持续作为 “知识与欢乐的灯塔”,激发孩子们的创造力,陪伴一代又一代学生成长。