染色片岩和雪松覆层沉浸在乡村生活中的度假屋设计
该度假屋设计从澳大利亚悉尼搬迁到新西兰皇后镇,希望有一个家庭住宅和生活方式来抚养他们年幼的儿子。他们希望创造一种环境,让家人沉浸在乡村生活中,有机会充分利用农场生活和瓦卡蒂普社区提供的活动。
该项目占地 35 公顷,位于 Speargrass Flat 路。它坐落在瓦卡蒂普盆地(Wakatipu Basin)之上,地理位置优越。 北面是科罗尼特峰(Coronet Peak),南面是令人惊叹的盆地,远处是卓越山(The Remarkables mountain range)。
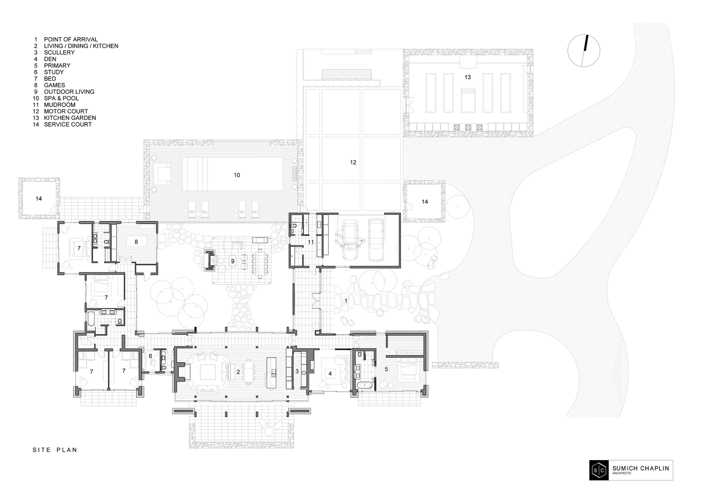
这座房子坐落在矛草平路(Speargrass Flat Road)上方一个陡峭斜坡上的天然高地上。设计方案是在高地上规划一系列单层建筑,围绕一个北向的中央庭院,主要起居空间向南北两面开放。设计的目的是在壮丽的乡村景观中创造一个家庭规模的建筑。

建筑造型是传统的,但根据高度和材料的不同而有层次之分。 主起居室和卧室的高度最高,采用片岩和染色雪松覆层。 片岩外墙采用浅色矿物涂料。这是在参考邻近地区历史悠久的石灰洗石住宅。
主居住区的屋顶向南北两侧开放,倒置的屋檐参考了第一次实地考察时在该庄园发现的一个古老的鹿圈结构。 车库和客房的次要形式只用耐候板覆盖。 所有建筑均由三层玻璃平顶廊和天然岩石景观墙连接在一起。
材料–两个主要的覆层元素是带锯红柏耐候板和片岩石材,前者染上了水洗红柏的颜色,后者则采用了黄油上色的风格,并涂上了白色水洗漆,与邻近历史悠久的瑟尔比大本营(Thurlby Domain)所使用的饰面相似。这两种材料和处理方式在历史上都曾使用过,目前也用于该地区的建筑。屋顶和烟囱采用深色金属托盘式屋顶,其 LRV 小于 36%。窗户为铝制三层玻璃。