以本土标志语言将复古情怀与现代家庭适配的住宅设计

在里约热内卢拉戈阿地区,一套 150 平方米的公寓设计 “思念之源”,成为 Bric Arquitetura | Portillo e Pantoja 建筑事务所向 20 世纪 50-60 年代现代主义建筑致敬的佳作。设计紧扣业主一家的生活愿景,在完整保留建筑原始立柱、横梁与拼花地板的基础上,以巴西本土材质与标志性设计语言,将复古情怀与家庭日常需求完美融合,既重现了现代主义的经典风貌,又赋予空间适配当下生活的舒适与温度。


设计的核心起点,是对建筑原始特征的敬畏与活化。公寓保留了阿马罗・马沙多与洛洛・科内尔森设计的现代主义基因 —— 裸露的立柱与横梁线条利落,拼花地板的纹理带着时光的温润,条形窗则延续了连贯通透的采光优势,让自然光线成为空间的天然调味剂。这些原始元素并非静态的陈列,而是被纳入新的空间逻辑,成为连接过去与现在的纽带。


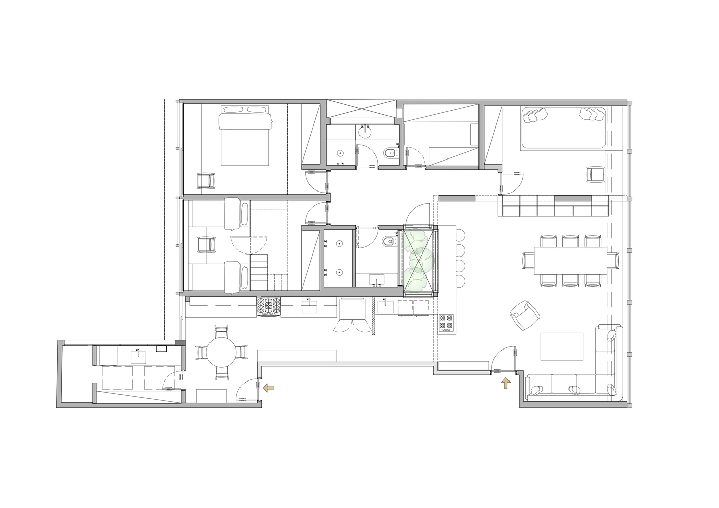
公共活动区域是空间重塑的重点。设计师通过打通墙体开口并安装窗框,将原本棱柱形的空间改造为一处 “冬季花园”。苏库皮拉木(巴西硬木)与玻璃构建的窗框,如同画框般框住室外景致,而环绕其周的白色清水混凝土操作台,既是巴西粗野主义风格的致敬,也是建筑事务所的标志性设计。这一中央结构成为公寓的核心枢纽,巧妙串联起客厅、餐厅与厨房,让公共区域的动线流畅自然,契合家庭聚会与社交的需求。


空间布局深度贴合业主一家的生活习惯,将 “个性需求” 与 “实用功能” 无缝衔接。业主夫妇热爱与朋友共同烹饪,因此设计采用 “双厨房” 布局:主厨房隐匿于巴西建筑常见的砖砌镂空墙(cobogó)后方,保证了操作的私密性与整洁度;中岛式厨房则成为社交核心,亲友围坐其间,烹饪的烟火气与交谈的欢声笑语交织,让美食成为连接情感的桥梁。


阅读是业主夫妇的核心爱好,一面大型弗雷茹木(巴西本土木材)书架成为客厅的视觉焦点,书籍整齐陈列,既是知识的宝库,也是空间的装饰艺术。书架后方,同种木材打造的 “办公盒子” 提供了远程办公的私密空间,其不与天花板相连的设计,既保证了视觉通透感,又未破坏公寓原有的建筑结构与窗框,实现了功能与美学的平衡。私人生活区的设计则聚焦 “自由与共享”。夫妇俩的卫生间与儿童卫生间均保持宽敞格局,独立于卧室之外,最大化利用空间的同时,保障了使用的灵活性。儿童房的前室通往一处兼具游戏与阅读功能的夹层空间,薄木胶合板(gaxeta)打造的夹层充满童趣,带白色混凝土踏步的木质楼梯与攀岩墙双入口设计,既满足了孩子们的探索欲,又让空间充满互动乐趣,成为专属的童年秘境。


材质的选择与软装的搭配,构建了 “复古而不陈旧” 的空间氛围。巴西本土木材贯穿始终,苏库皮拉木的坚硬质感、弗雷茹木的温润肌理与薄木胶合板的轻盈特性,形成丰富的材质层次,既彰显了地域特色,又传递出自然的温度。白色清水混凝土的粗犷与砖砌镂空墙的细腻形成对比,呼应巴西现代主义与粗野主义的设计脉络。软装装饰则是复古与当代的巧妙平衡。20 世纪 60 年代艺术家肯尼迪・巴伊亚的挂毯、劳尔・莫朗的画作,为空间注入复古艺术气息;塞尔吉奥・罗德里格斯设计的 “Mocho” 长凳、莉娜・博・巴尔迪的 “Girafa” 边桌等经典家具,复刻了现代主义的设计精髓;而 Estudio Bola 工作室的 “Block” 沙发与基林扶手椅,则以当代设计语言丰富了空间的舒适感。色彩上,天然木材色、白色混凝土色、灰色与砖色调相互融合,营造出温馨而具永恒感的氛围,让复古情怀与日常烟火气和谐共生。


“思念之源” 公寓的设计,并非对现代主义风格的简单复刻,而是一场 “尊重原始、贴合生活、彰显个性” 的空间焕新。设计师以巴西本土材质为笔,以业主的生活愿景为墨,在保留建筑历史基因的同时,将功能需求与美学追求融入每一处细节,让复古情怀在日常烟火中得以延续。在这里,现代主义的经典线条与家庭生活的温暖气息交织,巴西设计的地域特色与当代生活的舒适需求共生。150 平方米的空间里,既有对过去的致敬,也有对当下的热爱,更有对未来生活的期许,它证明了复古设计并非遥不可及的艺术,而是可以融入日常、滋养情感的生活诗。


