跟随坡度自然灵活可持续加强社区记忆凝聚力的住宅设计
该公寓楼设计位于科尔塞罗拉公园(Parc de Collserola)林木茂盛、自然价值极高的地区,学校旁边有一座建筑,最初是学校教师的住所。这个地方被人们称为 Les Cases dels Mestres。这座建筑建于 1969 年,是典型的廉租房建筑。这些建筑严谨而诚实,符合一些标准特征:简单而不带偏见的体量、略显传统的语言、非常短的结构间距以及合理而成本有限的施工方法。房屋失去了存在的理由,住宅也逐渐废弃。尽管如此,它们仍然留在了人们的记忆中,几十年后,一场邻里运动设法将其修复,用作社会合作住宅。

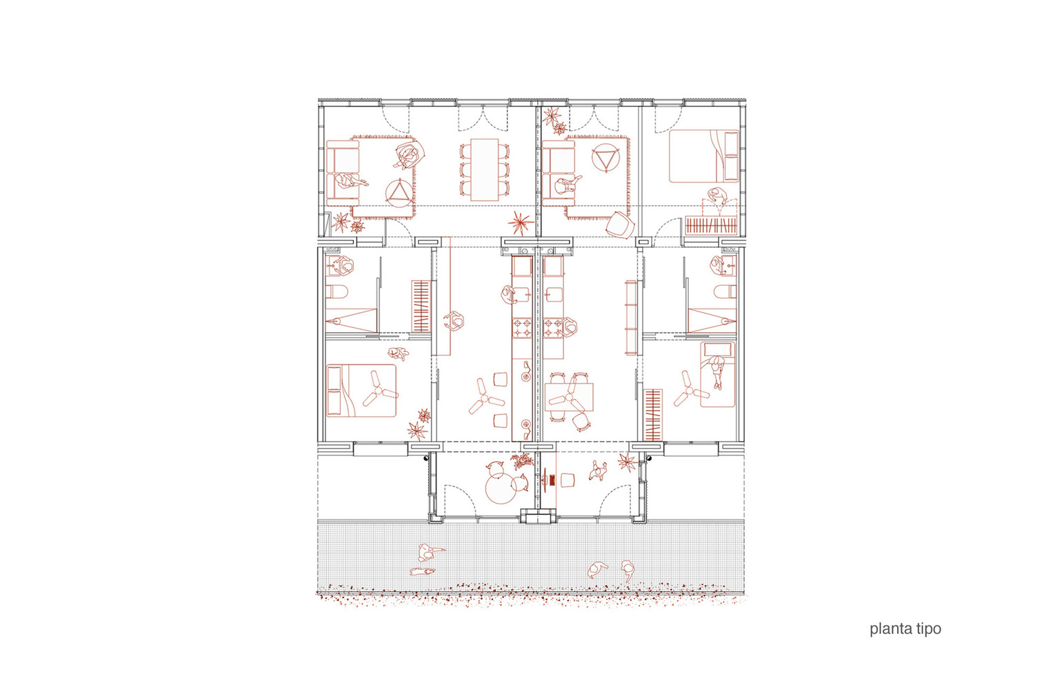
翻新项目旨在将其改造成社会合作住宅,增强其原有特色,并使不同单元的配置具有必要的灵活性。该提案的基础是在两个长立面各增加一个新的托架。两座新建筑与原有建筑对话,相辅相成。这两座新建筑可以解决原有建筑在以下方面的不足:新住宅的可达性、房间的大小、使用的灵活性,以及屋顶和外墙的节能性。这些新翼中的第一翼,也就是从东面接待游客的那一翼,提供了一系列的人行道和楼梯,以适应陡峭的地形坡度,并陪伴使用者到达每栋房屋的门口。
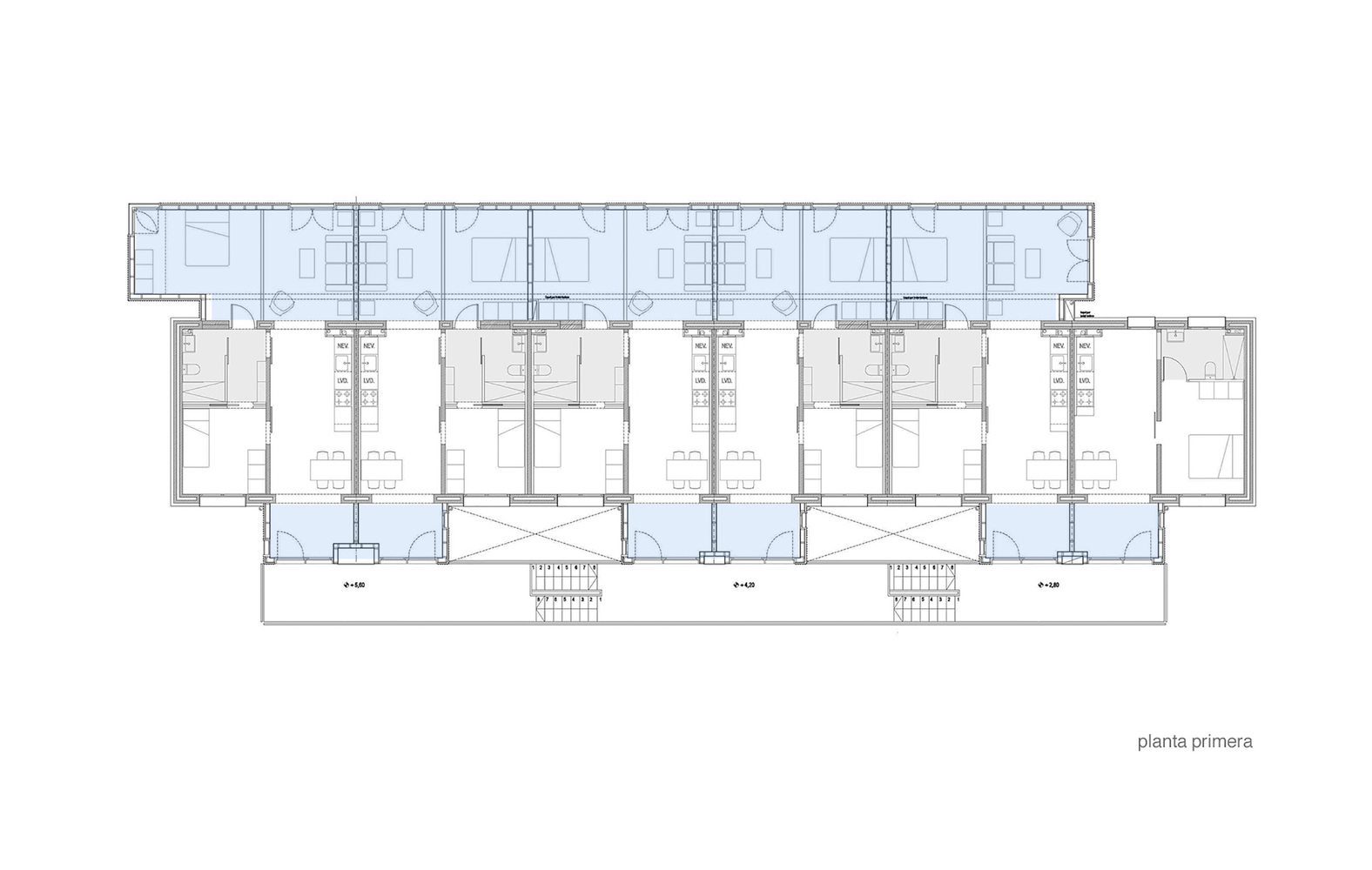
新的外立面在原有建筑的基础上增加了一系列层次,揭示了它曾经的面貌,并赋予了它新的维度。新的通道也成为了休息和公共生活的舒适露台,可以俯瞰周围的自然环境。西侧海湾更具私密性,使住宅的面积和高度增加到 11 个单元和一个公共空间。这个立面与周围环境有着不同的关系。它可以利用土地的坡度,打破坡度,让自己受到坡度的影响,将窗户洒向山下。因此,这样设计出来的住宅可以保持现有建筑的精神,改善居住条件和多功能性,使居民与优越的环境之间的关系更加直接。
值得注意的是,该项目从一开始就注重强化一系列基本价值,例如…..:- 参与和包容。在这个项目中,通常的工作流程发生了很大变化。在项目的构思和建设过程中,用户被置于强有力的地位,积极参与大部分决策。在住宅的设计阶段,我们组织了研讨会,让所有居民都能对不同的分配方案进行评估和选择,从而能够以足够的灵活性提供适合不同家庭单元的住宅。
– 自建。在施工阶段,用户们通过培训讲习班为自己的工作做出了贡献,对住宅进行了内部翻修。这项工作实现了双重目标:降低工程成本,从而减少每个家庭单位必须承担的收入;提高每个人对新家的认同度。
– 可持续性。该合作社的基本前提之一是建造一幢具有高度可持续性和低碳足迹的建筑:包括使用无污染的当地材料、选择预制木框架结构、为建筑提供高度隔热性能,以及安装高效的集体设施,如中央颗粒锅炉或中水和雨水回收处理系统。
– 翻新和集体记忆。如上所述,待翻新的建筑已废弃不用。该项目使一栋已被证明可行的建筑得以恢复,从而加强了社区的集体记忆和凝聚力。
– 福祉和与自然的接触。该项目力求充分利用该建筑的特殊地理位置,创造私人和集体空间,使集体会议和隐私、社区活动和个人放松都能在这里得到协调。