木构织网托举海滨记忆热带社交诗学的度假别墅设计
Jul 19 , 2025 |
Views :
641
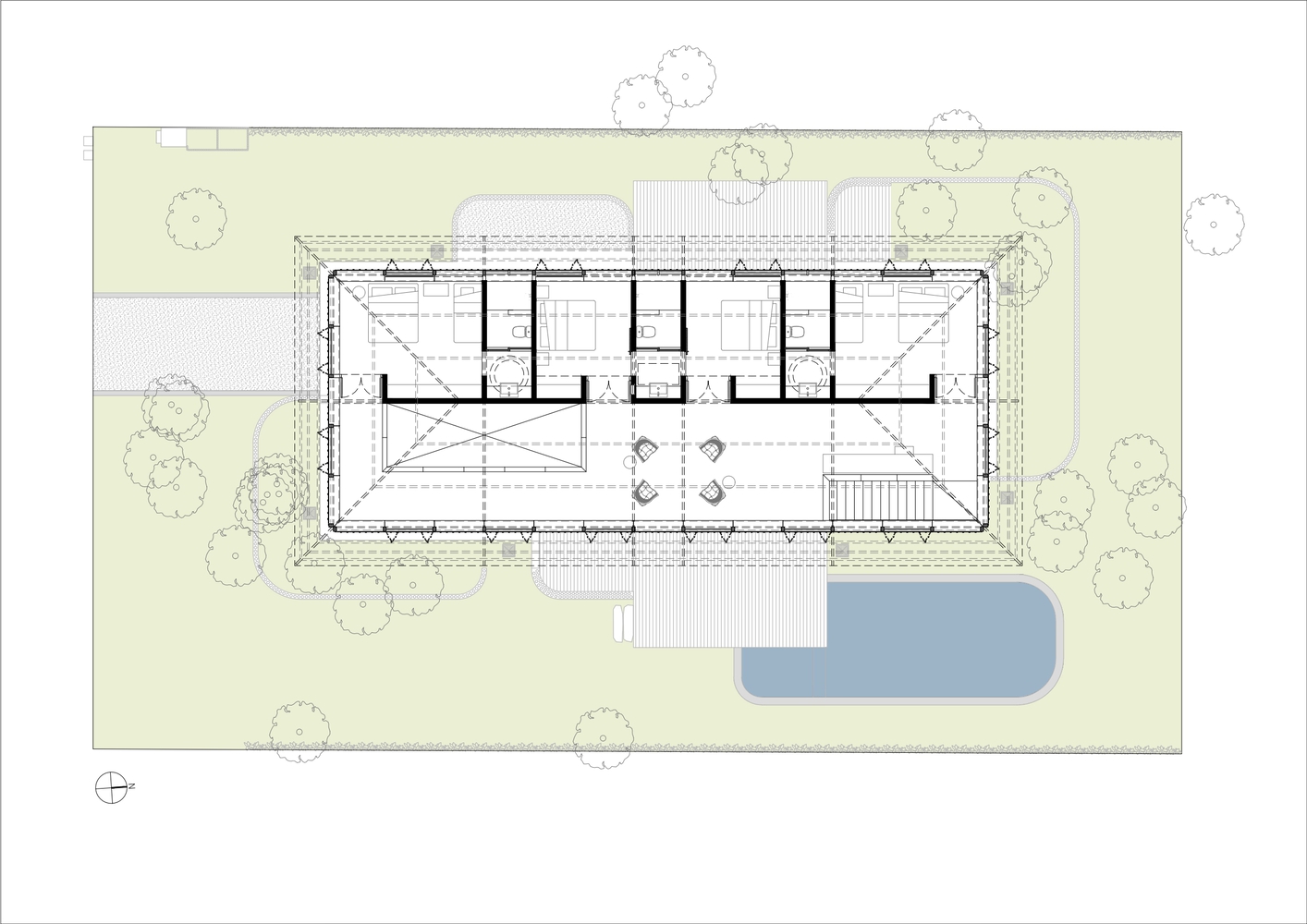
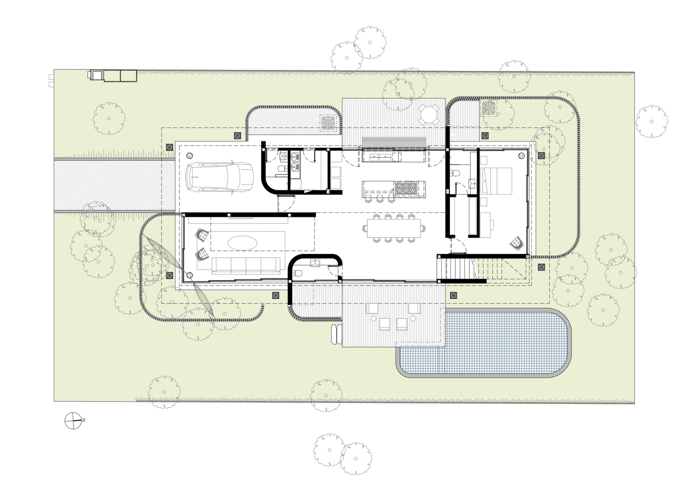
矿工家庭喜欢海滩和海滨度假别墅设计。伊奈之家(Casa Inaê)建于萨尔瓦多的福特角海滩(Praia do Forte),为一个矿工家庭而建,这个家庭包括三兄妹、六个侄子、一位女家长以及许多朋友。
这座房子的落成承载了诸多回忆与情感。一楼更具社交属性,采用开放式布局,与后院、泳池和森林相连,带围栏的庭院中还设有私人花园。
这种受热带现代主义启发的布局支撑着一个混凝土托盘,该托盘承载着二楼的结构和屋顶。
木质立面是一个由连接盖板构成的建筑与装饰系统,其灵感源自帕塔肖(Pataxó)文化、凯萨拉(caiçara)文化,也融合了南部文化元素,具有多元的起源。其色彩处理是对伊曼贾(Iemanjá,非洲裔巴西人信仰中的海洋女神)的致敬。