麦香与时光共生老城区开放式工业风烘焙工坊设计的历史重释

该loft风格咖啡烘焙馆设计在河内老城区的街巷深处,一座法国殖民时期的老宅被赋予了全新生命。以 “开放式烘焙工坊” 为核心定位,设计团队摒弃复刻式重建,通过历史重释、材质本真与空间互动的巧思,让面包制作成为连接人与文化、手工艺与现代生活的纽带,在记忆、时间与手艺的交汇点,打造出兼具社会意义与情感价值的独特场域。



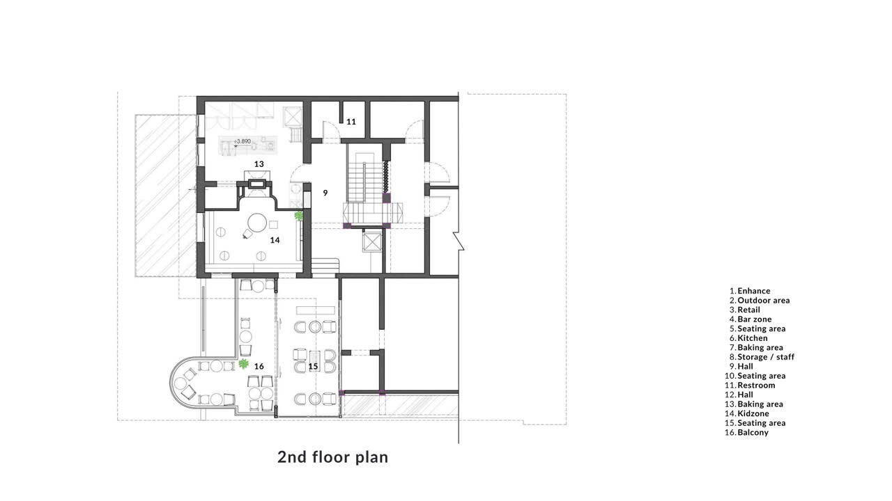
工坊以 “开放式烘焙” 为功能核心,打破传统烘焙店 “后厨封闭、前厅消费” 的边界,将面包制作的完整过程全景呈现。从面粉搅拌、面团发酵到烤箱出炉,每一个手工艺环节都成为空间的 “活风景”,让顾客在等待美味的过程中,感受烘焙的温度与匠人的用心,使面包制作从单纯的 “生产行为”,转化为促进人与人连接的社交语言。



选址于河内老城区中心的法国殖民时期住宅,建筑本身承载着城市的历史记忆。设计没有割裂场地的历史基因,而是将殖民建筑的空间格局、结构特征作为设计的基础,通过适度改造让老建筑适配现代烘焙功能,让历史的肌理与现代的生活节奏自然交融,使工坊成为老城区 “新旧共生” 的空间典范。



项目的核心愿景,是立足 “记忆、时间与手工艺” 的交汇点。它不仅是一个烘焙产品的售卖空间,更是一个承载情感的容器 —— 在这里,老建筑的历史记忆、烘焙手艺的时间沉淀、人们分享美食的情感共鸣相互交织,让空间超越了商业功能,成为兼具社会意义(传承手工艺、激活老建筑)与情感价值(创造共享体验)的城市节点。



设计坚守 “历史重释而非重建” 的原则,拒绝刻意模仿殖民时期的装饰风格。取而代之的是通过光线的引导、通透感的营造与当代生活节奏的适配,让老建筑 “重获呼吸”。保留建筑原有的空间骨架与结构逻辑,在不破坏历史肌理的前提下,植入现代烘焙所需的功能设施,让历史感自然渗透,而非生硬堆砌。



“真诚与简约” 是贯穿设计的核心精神。设计团队摒弃过度装饰,将空间的焦点回归到结构与材质的本质。裸露的木质梁架、原始的砖块墙面、未经过多修饰的水泥地面,每一处材质都保留着本真的肌理,传递出 “质朴而有力量” 的空间气质。这种表达既呼应了烘焙手工艺的 “纯粹性”,又让老建筑的原始美感得以凸显。



设计秉持 “动态空间观”,认为建筑并非静态的背景,而是承载人们日常仪式的鲜活载体。空间布局围绕 “烘焙、分享、共处” 三大核心场景展开:烘焙区作为视觉核心,吸引人们驻足观看;开放的用餐区鼓励顾客停留交流;半开放的休闲角落则满足独处或小聚的需求。整个空间随着人们的活动而充满活力,让烘焙的麦香与人们的欢声笑语,共同构成空间的动态灵魂。



材质选择以 “尊重历史、彰显本真” 为原则,重点保留了老建筑原有的木材、砖块等材质的原始肌理。木质的梁架与操作台传递温暖触感,砖块墙面带着岁月的斑驳痕迹,与烘焙所需的金属器械、玻璃器皿形成对比,既强化了空间的质感层次,又让手工艺的 “质朴感” 与老建筑的 “历史感” 形成呼应。



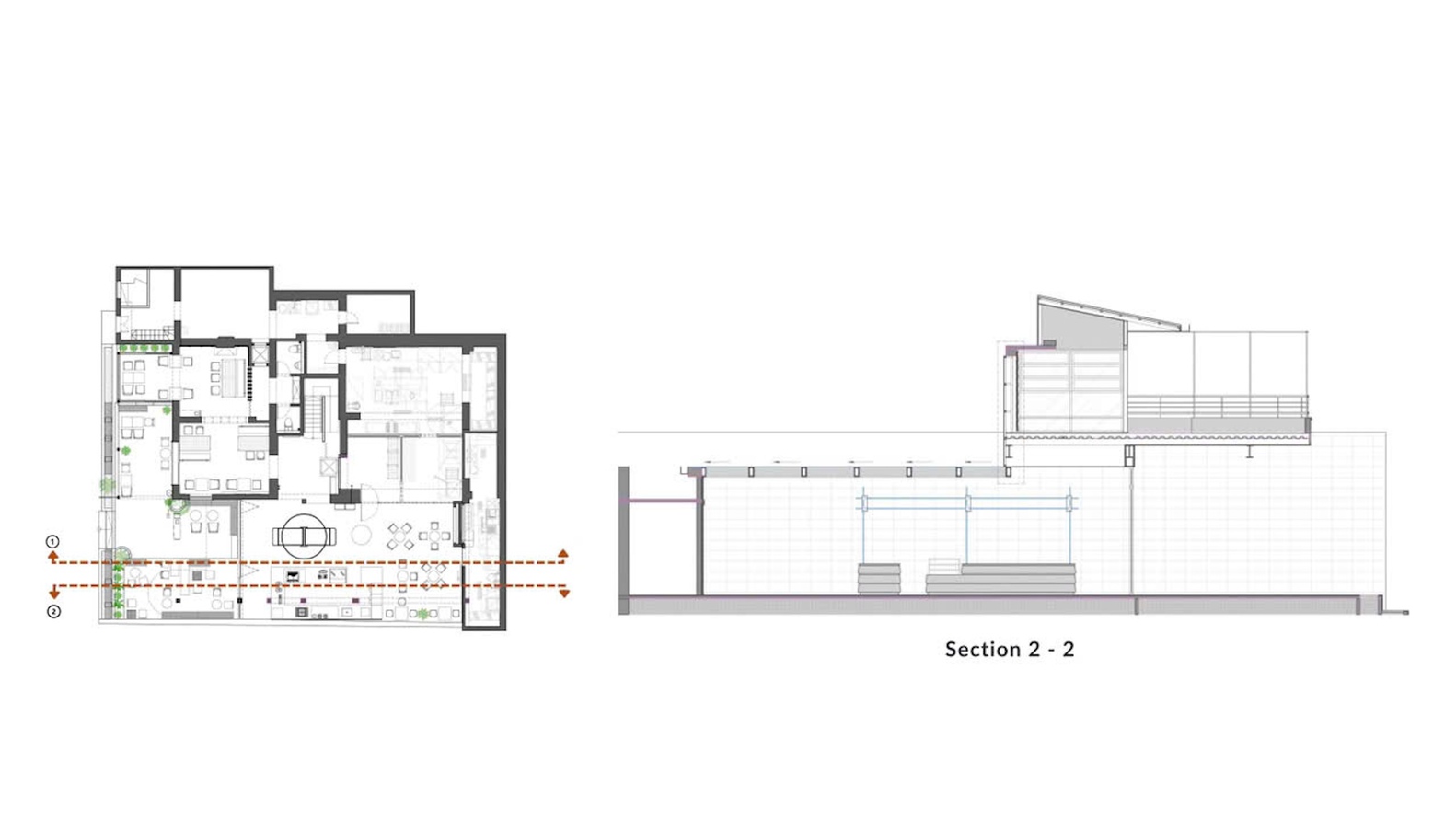
设计通过弱化室内外、功能区之间的边界,提升空间的通透感与关联性。大面积的玻璃门窗让室内空间与老城区的街巷景观相互渗透,行人能透过窗户看到烘焙场景,室内顾客也能感受街道的烟火气息;功能区之间采用半通透的木质隔断或家具划分,既保证了使用的独立性,又不阻碍视线与空气的流通,让空间成为一个有机整体。



自然光线的引入是激活老建筑的关键手法。设计团队通过优化开窗、设置采光天井等方式,让自然光全天为建筑注入活力。清晨的阳光透过木质格栅洒入烘焙区,为面团镀上温暖光晕;午后的光线在砖块墙面上形成斑驳光影,增添空间的层次感;傍晚的余晖透过玻璃窗,让整个空间弥漫着柔和的氛围。光线不仅提升了空间的舒适度,更让老建筑的历史肌理在光影中被细腻呈现。



这座开放式烘焙工坊的设计,是对老建筑活化与手工艺传承的双重探索。它没有让老建筑成为静止的 “历史标本”,也没有让烘焙成为单纯的 “商业行为”,而是通过历史重释、材质本真与空间互动,让麦香与时光在老城区里共生。



在这里,老建筑的历史记忆被唤醒,烘焙的手工艺被尊重,人们的情感被连接 —— 它证明了老建筑可以通过适度改造适配现代生活,手工艺可以成为现代社交的语言,文化、手艺与生活可以在空间中自然共存,为城市老建筑的活化与商业空间的情感化设计,提供了极具价值的参考。


