绿色智慧学术明珠自然与创新交融之所的商学院学校设计
由 Perkins&Will 设计的 Link 商学院学校设计新总部,以创新与自然融合为特色。为 Link 商学院打造的可持续建筑 ——Corporate Garden Jardim Paulista,凭借其与自然相融合的创新独特设计给人留下深刻印象。这座 9600 平方米的建筑于去年年底启用,不仅能饱览伊比拉普埃拉公园的壮丽景色,还为学生提供了体验校园和圣保罗市的绝佳机会。
Perkins&Will 圣保罗的项目建筑师 Leandro Gushiken 分享道:“客户希望实现一个梦想。他们想要一个能让自己有归属感的环境,这个环境能唤起他们对创业起点的回忆,因为新总部与旧总部仅一街之隔。”

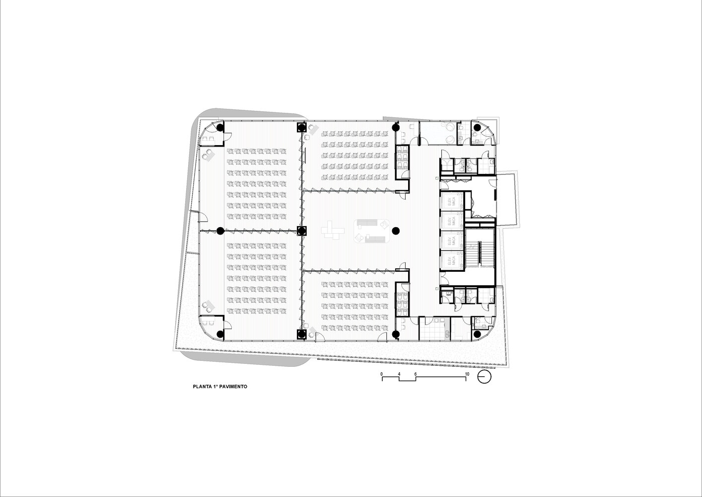
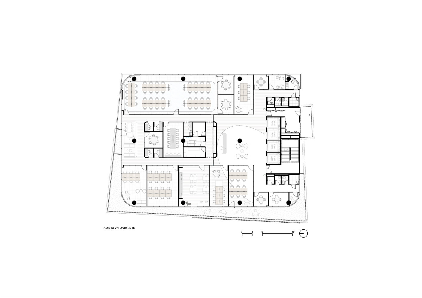
这座 8 层建筑被植被环绕,采光自然,与周围环境建立了特殊联系。花园阳台进一步加强了这种联系,它们在自然与建筑环境之间架起桥梁,形成共生关系。教室、行政空间、协作区和自习区分布在建筑周边,充分利用景观、通风和采光优势。中央交通轴连接各楼层,它不只是简单的通道,更像是邀请人们使用各个空间的纽带。这所商业与技术学院还设有实验室、咖啡馆,屋顶上还有一个户外露台。
室内设计体现了该机构务实创新的理念,注重材料的真实性和功能性。裸露的混凝土柱、大型玻璃板和乙烯基覆盖物以优雅经典的组合方式呈现,确保了良好的声学效果和空间之间的视觉连通性。照明设计也是一大亮点,旨在突出空间体量并满足不同的使用需求。公共区域采用场景式漫射照明,而教室和学习区则将自然采光与人工照明相结合,为使用者提供舒适体验。
Perkins&Will 的项目设计师 Guilherme Meneses 透露了开发此类项目所面临的挑战:“在建筑工程接近尾声时,设计方案还在不断完善。因此,我们必须制定条理清晰的规划,确保在新学年开始前交付主要区域。”Corporate Garden 还获得了重要的可持续发展认证,如 EDGE 建成后认证和 LEED 金级认证。通过 EDGE 策略采取的措施,该项目在能源、水资源和材料蕴含能源等方面实现了显著节约。LEED 认证认可其为健康、高效、经济的绿色建筑,能带来环境、社会和治理等多方面的效益。