蓝白积木的悬浮魔法打破咖啡空间游乐场景边界的蓝瓶咖啡厅设计

在蓝瓶咖啡厅设计的“筑梦”版图中,每一家门店都是与在地语境对话的独特存在。毗邻上海乐高乐园度假区的全新门店,打破了“咖啡空间”与“游乐场景”的边界——夕野设计工作室(Atelier xy)以乐高积木为创意密码,在蓝瓶标志性的极简美学框架内,将积木拼搭的趣味与咖啡的醇香相融,为亲子家庭打造出一处既能享受惬意时光,又能延续乐高沉浸式体验的“筑梦场域”。



这家门店的设计起点,是一组天然互补却又充满张力的“基因组合”:蓝瓶咖啡的“极简克制”与乐高的“缤纷多元”,以及目标客群“亲子家庭”对“趣味体验”与“舒适休憩”的双重需求。这让夕野设计工作室面临两大核心挑战。第一个挑战,是“美学平衡”的难题——如何在蓝瓶咖啡标志性的黑白灰极简框架内,自然融入乐高积木的丰富性与多变性,既不破坏品牌固有的质感,又能凸显乐高的创意基因?第二个挑战,是“体验延续”的命题——如何让到访乐高乐园的亲子家庭,从乐园的沉浸式玩乐无缝过渡到咖啡空间的松弛休憩,让“筑梦”的氛围贯穿始终?设计团队的破题关键,是从乐高机械组与建筑系列中提取核心设计语言,让“积木拼搭”成为连接两大品牌的桥梁。



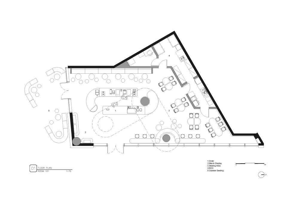
步入门店,最引人注目的莫过于中央的蓝白撞色咖啡吧台——这是设计团队以乐高机械组为灵感,打造的“积木核心装置”,将乐高的结构逻辑与蓝瓶的极简美学完美融合。整个吧台以乐高积木为基础构件,通过“模块化堆叠”的方式,构建出层次分明又极具视觉冲击力的形态。吧台的结构暗藏巧思:底部的白色“积木块”沉稳扎实,构成咖啡师操作的核心台面,平整的表面契合蓝瓶对功能性的极致追求;中部的蓝色“积木”轻盈悬浮,化作包裹空间的吊顶结构,蓝色既呼应蓝瓶品牌主色调,又与乐高乐园的缤纷氛围形成呼应;顶部的白色“积木”则以倾斜角度朝向门店入口,大胆延伸至玻璃幕墙之外,形成醒目的悬挑结构。这一设计不仅让吧台成为门店外立面的视觉焦点,更巧妙地将蓝瓶咖啡的品牌标识融入其中,远观如一块从乐高乐园“拼搭”到咖啡店里的巨型积木,瞬间勾起亲子家庭的好奇心。



如果说中央吧台是“显性的乐高符号”,那么空间中的细节设计则是“隐性的基因渗透”。设计团队将乐高机械组的核心元素——横梁、连接件、轴件等,拆解重构后融入咖啡桌、商品展陈区与吊顶的每一处细节,让乐高的趣味与蓝瓶的质感无处不在。咖啡桌的桌腿被设计成乐高机械组的“轴件形态”,金属材质的细腻纹路模拟出积木连接件的工业感,搭配简洁的木质桌面,既满足亲子家庭放置咖啡与小物件的需求,又让孩子在落座时能直观感受到“积木元素”的陪伴;商品展陈区的层板以“积木堆叠”的方式固定,层板间的缝隙与连接件的外露,呼应乐高“可拼搭、可组合”的特性,展陈的蓝瓶周边与乐高主题小物件在此自然共生;悬浮吊顶的内部,隐藏着模拟乐高横梁的结构线条,灯光透过线条缝隙洒下,在地面形成类似积木拼搭的光影图案,让空间的趣味性从视觉延伸至光影体验。



乐高的核心魅力,在于“以小积木筑大结构”的模块化法则——这一理念被设计团队延伸至材质选择与空间建构中。“乐高的发展始终植根于建筑学,这些小小的塑料积木,本质上就是建筑的砖瓦”,基于这一认知,设计团队以混凝土砖与塑料为核心材质,呼应乐高积木的拼搭逻辑,让咖啡空间与毗邻的乐高乐园形成一场“材质对话”。室内墙面是这种“对话”的最佳载体。设计团队摒弃了传统的平整墙面,采用不同形态的混凝土砖错落堆叠,模拟乐高积木“自由拼搭”的形态,砖面的粗粝质感与蓝瓶极简的光滑界面形成对比,既丰富了视觉层次,又让墙面成为孩子眼中“可以想象的积木墙”。部分墙面嵌入透明塑料构件,内部放置色彩鲜艳的乐高小积木,既点缀了空间色彩,又与外部乐园的缤纷色调遥相呼应。这种材质选择,既保留了蓝瓶咖啡对“原生质感”的追求,又通过积木逻辑的转译,让空间充满“可触摸、可想象”的温度。


对亲子家庭而言,这家门店的价值远超“喝咖啡的场所”,而是乐高乐园“筑梦体验”的自然延伸。设计团队通过空间节奏的把控,让家庭从乐园的“高强度玩乐”无缝过渡到咖啡空间的“松弛休憩”,形成完整的体验闭环。门店入口的悬挑“积木”结构,如同从乐高乐园延伸出的“引导符号”,吸引游玩归来的家庭进入;室内开阔的空间布局与灵活的桌椅组合,方便家长看管孩子,也为孩子预留了小型互动区域;墙面的积木堆叠形态与光影图案,让孩子在等待咖啡的间隙,依然能沉浸在“拼搭想象”中,仿佛化身为乐高小人仔,重拾童年欢乐。家长则可在极简舒适的环境中品味咖啡,看着孩子被空间中的乐高元素吸引,实现“亲子各得其所”的休憩体验——这种体验,正是蓝瓶“筑梦”理念与乐高“激发创意”精神的完美融合。


蓝瓶咖啡上海乐高乐园店,为“品牌跨界空间设计”提供了极具参考价值的样本。它证明了跨界融合不必是“元素的简单叠加”,而是“核心基因的共生共振”——蓝瓶的极简美学为乐高的趣味元素提供了质感基底,乐高的创意基因则为蓝瓶的空间注入了温度与活力。当一杯醇香的蓝瓶咖啡放在“积木桌”上,当孩子的小手触摸着墙面的“积木砖”,当家长在光影中回忆起自己的童年,这家门店便完成了它的“筑梦使命”。它不仅是一家咖啡店,更是连接品牌、社区与家庭的情感纽带,让“积木拼搭的快乐”与“咖啡时光的惬意”在此相遇,为每一个到访的家庭,留下独特的“筑梦记忆”。