以阶梯式创造连续视觉互动联系洞穴感的别墅设计
Oct 26 , 2025 |
Views :
384
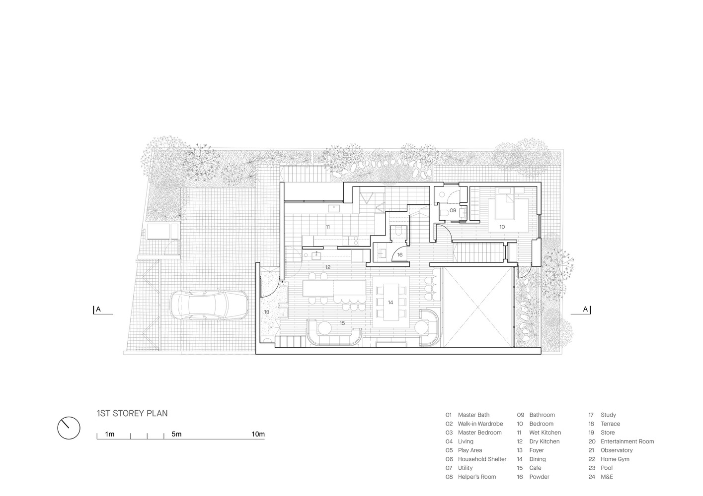
洞穴别墅设计理念源自洞穴中迷人的构造和广阔的空间。其目的是打造一个既能提供身临其境的空间体验,又能培养家庭亲情的住宅。为了让来访者一进门就感到惊喜,主入口被隐藏在无窗的外墙后面,并从一个不大的门厅过渡到一系列向房屋后部延伸的相互连接的空间。
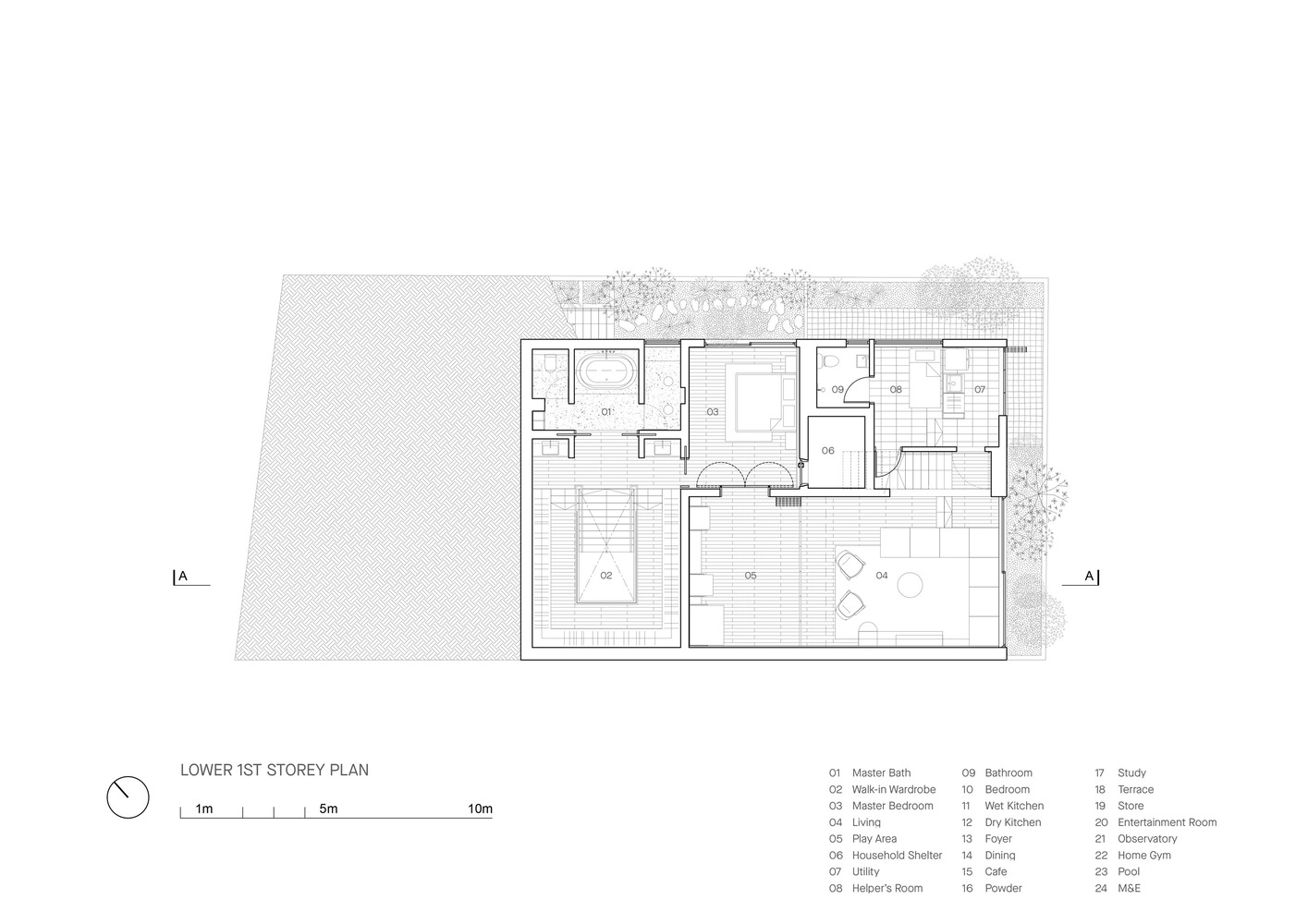
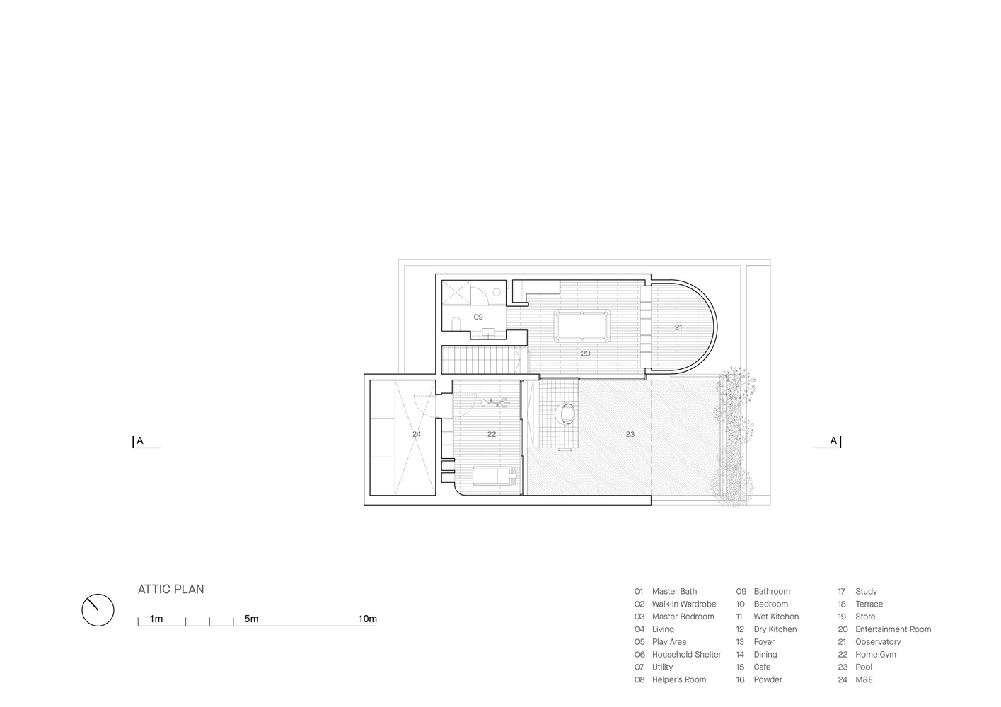
岩洞之家的核心是周到的空间组织和室内设计。二楼的公用干式厨房和用餐区、多功能客厅和家庭书房等空间,都被规划成具有视觉连接性并鼓励互动的空间。此外,顶层还设有娱乐设施,包括一个带圆形天窗的观景台,增添了几分奇趣。
该房屋的室内设计与建筑结构相得益彰,融入了俏皮的几何图形和鲜艳的色彩。你会发现整个房子都融合了不拘一格和充满活力的设计元素。
由于地形呈阶梯状,后部地势较低,我们利用自然坡度将房屋的公共空间设计成阶梯状。从底层到二层,这种布局为整个住宅创造了连续的视觉联系。
以这种阶梯式的方式组织公共区域,可确保与房屋其他部分始终保持视觉上的联系,从而培养一种整体感和互动感。这完全符合客户的要求,即打造一个以家庭集体生活为中心的住宅。