家感与诗意共生玻璃砖下的亲切秘境民宿设计


在巴厘岛活力街区的肌理中,西帕特与绍乌民宿设计以 “私人住宅的私密温馨 × hospitality 的接待服务” 为核,在 150 平方米的紧凑地块上,重构了短租别墅的空间叙事。它拒绝 “刻意布置的度假感”,以玻璃砖的朦胧诗意、功能布局的反常规设计与几何形态的克制表达,将租赁物业升华为 “有人居住的真实家宅”,为短租空间的 “亲切感” 与 “个性感” 平衡,写下了极具参考价值的范本。


客户的需求看似简单却直指行业痛点:一座用于出租的泳池别墅,既要 “家的亲切舒适”,又要 “建筑风格的鲜明个性”。设计团队敏锐捕捉到巴厘岛多数租赁别墅的缺失 —— 那种 “摆脱刻意、呈现真实居住感” 的熟悉氛围、柔和质感与空间私密性。这一洞察成为设计的起点:让短租别墅不再是 “临时的度假容器”,而是 “可触摸的生活切片”。



入口动线是体验的 “情绪锚点”。玻璃砖围合的小型门厅,顶部露天的设计充满巧思:白天,阳光透过玻璃砖洒下,形成斑驳的光影剧场;雨天,雨水缓缓渗入,让访客在步入室内前,先经历一段 “可触可感的诗意时刻”。这种设计打破了短租空间 “过度仪式化” 的入口逻辑,以自然的变化与材质的朦胧,营造出 “家的日常感”。



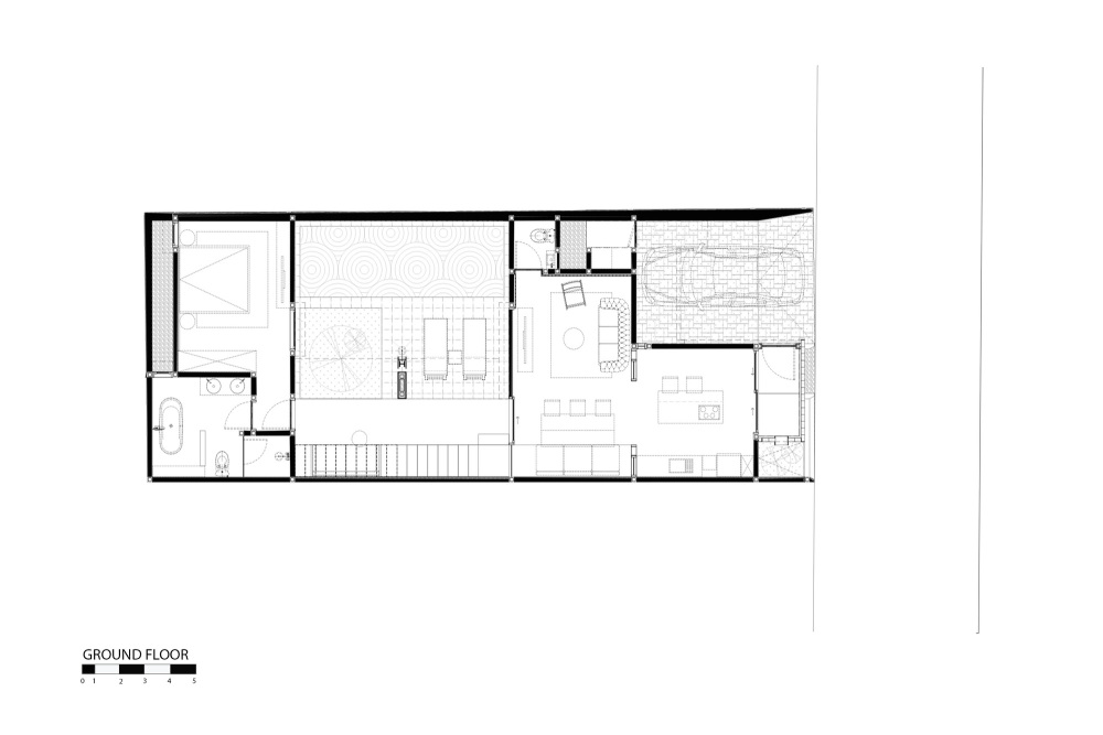
不同于印尼传统住宅 “客厅为入口核心” 的布局,访客遇到的第一个空间是带简约中岛台的厨房。这一设计以 “亲切感” 取代 “正式感”,将短租空间常见的 “商业接待感” 转化为 “居家互动感”—— 厨房的烟火气、中岛台的交流属性,让租客从踏入的瞬间,就产生 “这里有人生活” 的真实感,为后续的空间体验奠定了 “家” 的基调。



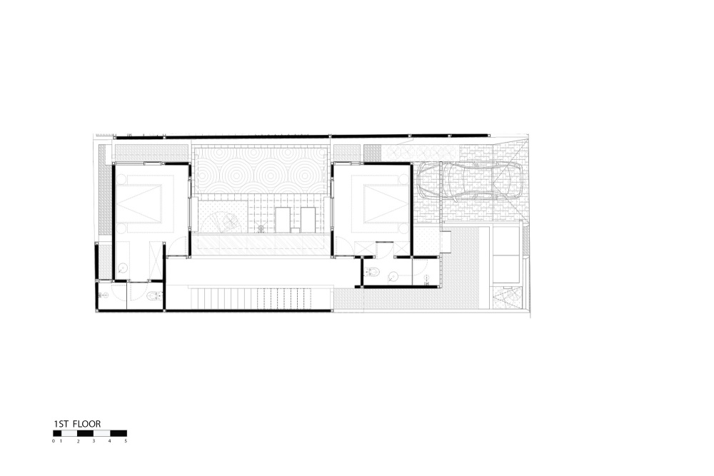
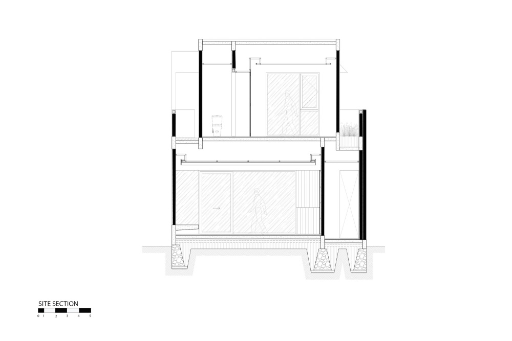
建筑的核心是带游泳池的内庭院,它既是功能的枢纽,也是情感的锚点。这个露天区域衔接了前部公共区与后部、上层的私人睡眠区,让空间在 “开放” 与 “私密” 间找到平衡。泳池旁的楼梯不仅是垂直交通的载体,更强化了 “移动中与户外互动” 的设计理念,让租客在别墅内的每一次动线,都伴随着自然的光影与空气的流动。



餐厅与客厅以木质框架 + 压花玻璃的半透明隔断分隔,这种 “模糊的边界” 既明确了功能分区,又未切断视觉与空间的联系。光线与空气在此自由流通,让紧凑的空间不显局促,反而因这种 “隔而不断” 的设计,产生了层次丰富的空间韵律,契合了 “家” 应有的通透与互动感。



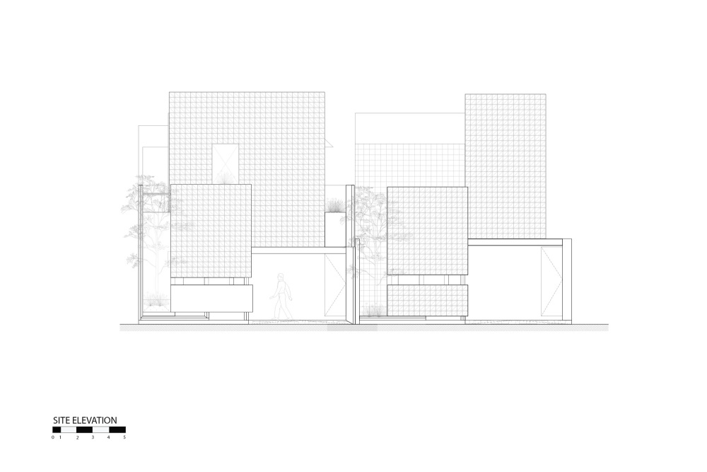
玻璃砖是建筑外观与体验的 “灵魂材料”。其半透明特性既遮挡了室内视线,保护了私密性,又能隐约透出室内人影,激发外部观者的探索欲。这种 “遮挡与显露” 的互动,让立面既具实用的保护功能,又充满表现力,成为建筑的标志性特征。设计摒弃了巴厘岛租赁别墅常见的 “传统热带美学”,转而以清晰的几何形态与 “材料本真感” 塑造个性。这种克制并非单调,而是通过玻璃砖的朦胧、木材的温暖、压花玻璃的纹理,在简洁的形态中注入丰富的材质层次,让建筑在 “现代感” 与 “在地性” 之间找到平衡。



尽管地块仅 150 平方米,建筑面积 190 平方米,设计却通过垂直分层、过滤式采光、与绿植天空的视觉关联,让内部空间呈现开阔感。垂直空间的利用(两层布局)最大化了功能容量,过滤式采光(玻璃砖、压花玻璃)让光线柔和且富有变化,与绿植、天空的视觉连接则消解了地块的局促感。



最终,这座别墅将 “租赁物业” 转化为 “空间体验载体”—— 它不追求 “极致奢华”,而是聚焦 “静谧舒适”,以光线的诗意、质感的柔和、动线的从容,让租客在短租期间也能拥有 “家的归属感”。这种设计证明,短租空间的价值不在 “硬件堆砌”,而在 “情感共鸣”—— 当一座租赁别墅能让租客产生 “这里像家” 的眷恋,它就完成了从 “物业” 到 “生活容器” 的升华。



在短租业态同质化严重的当下,西帕特与绍乌别墅的设计是一次勇敢的破局:它以 “家的私密亲切” 重构了 hospitality 的空间逻辑,用玻璃砖的朦胧、厨房的前置、庭院的核心,在巴厘岛的热带风情中,开辟了一条 “克制而温暖” 的短租空间设计之路。


