会呼吸流动的庭院连接住宅自然共生的别墅设计
Sep 5 , 2025 |
Views :
1,227
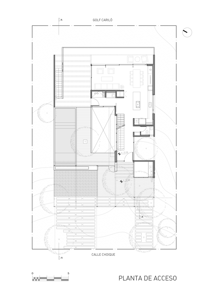
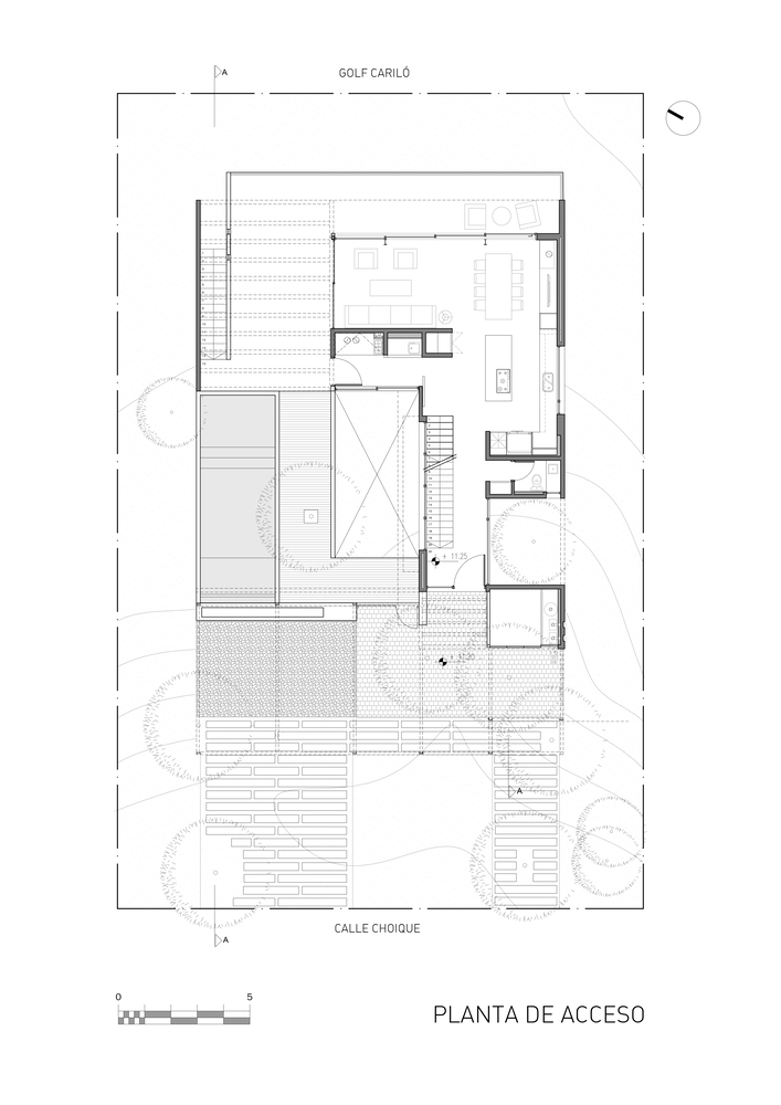
乔伊克小型别墅设计(Casa Choique)坐落于阿根廷卡里洛市一个小型住宅区,与高尔夫球场相邻。严格的建筑规范以及项目需求,催生出一个不仅优化了建筑面积,更优化了建筑体量的设计方案。
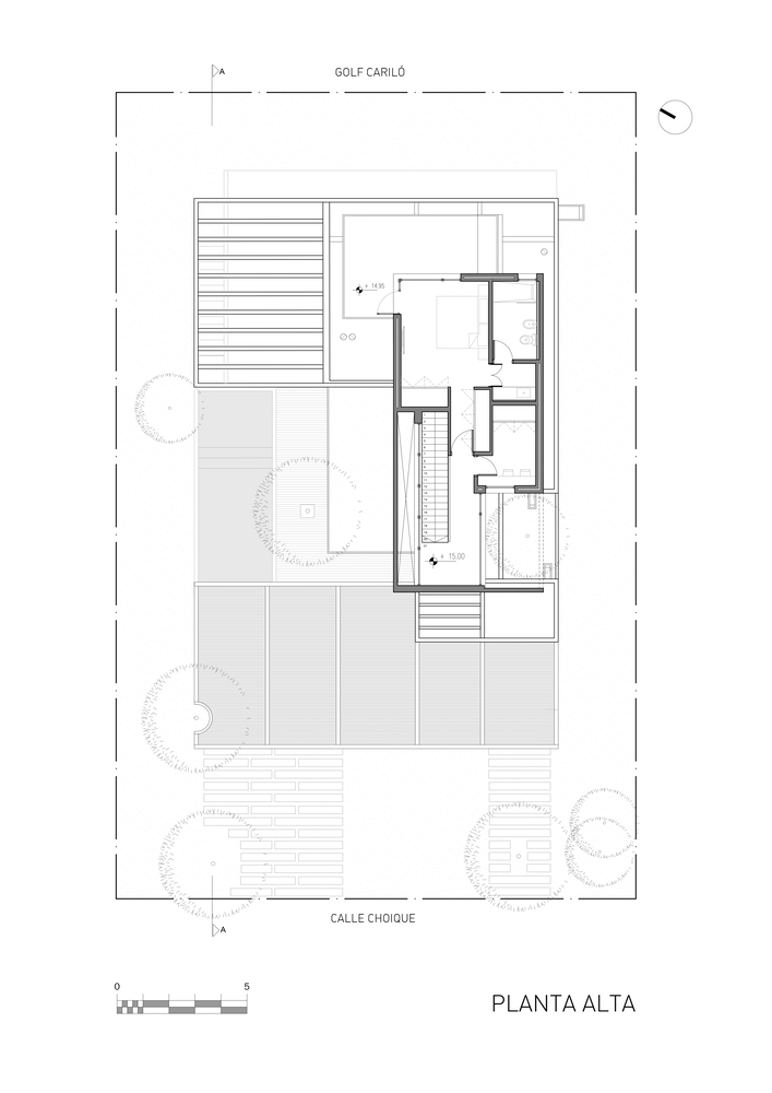
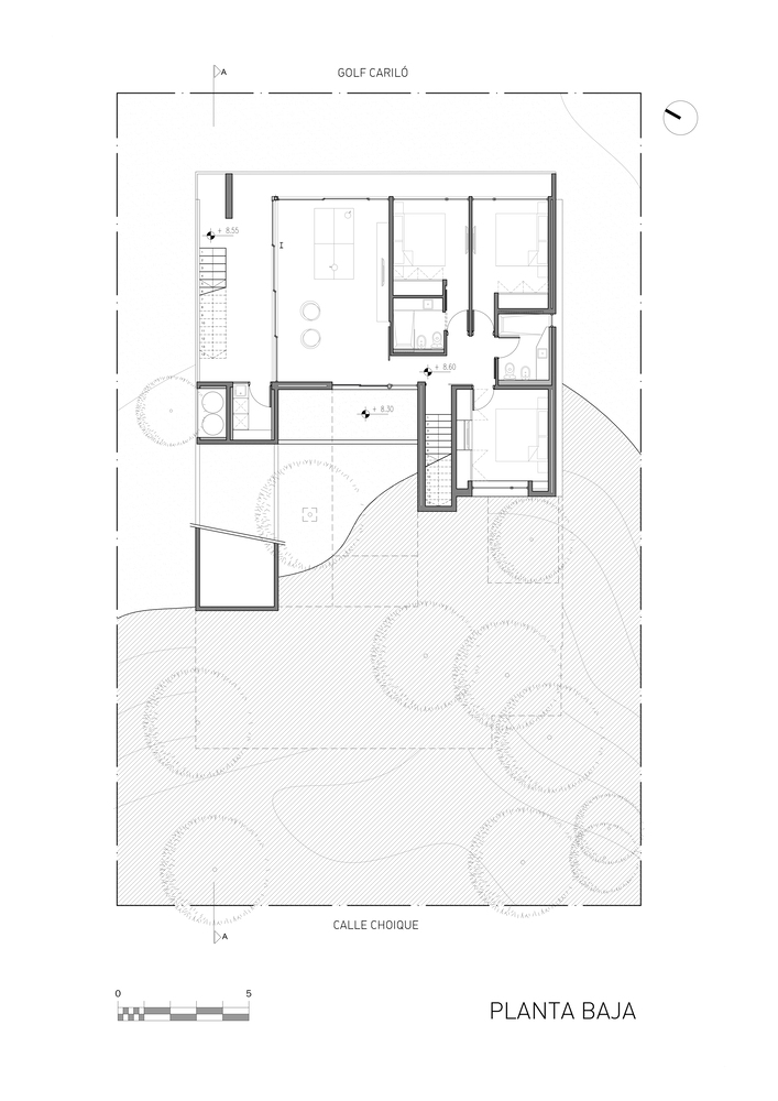
场地的显著坡度为中间层的入口设计提供了便利,使得三层空间都能完全向后方敞开,模糊了住宅与高尔夫球场延展区域之间的边界。为满足功能需求,住宅朝南一侧较为封闭,而卧室则朝向朝阳的方向,并最大化向北和向西的扩展空间。
结合场地地形,设计从街道层直接通向社交空间。游戏室和儿童房位于下层,主卧和一个小工作室则嵌套在上层。不过,封闭的湿区(如浴室、厨房等)位于南侧。入口处设有自行车存放空间,由于住宅靠近市中心,夏季骑行成为一种可行的交通方式。
不同空间围绕一个 “虚拟枢纽” 连接 —— 这是场地中心保留的一个自然庭院形成的空隙。该区域不仅是内部和外部路径的连接点,还充当大型雨水蓄水池,并通过分隔住宅与街道及停车场,保障了私密性。庭院西北侧设有一个悬浮泳池,其设计如同雕塑般的体量,部分 “漂浮” 于场地之上。
烧烤区可灵活转向,兼顾室内外使用需求,同时作为过渡元素,既让客厅在视觉上与高尔夫球场相连,又隔绝了街道对住宅内部的视线干扰。
在临街立面及建筑范围内,乔伊克住宅复刻了高尔夫球场的建筑体量,形成一个 “封闭的空隙”—— 由小型铝板构成的箱体不仅塑造了新空间的形态,还作为垂直过滤器,为车辆遮挡阳光和落枝。此外,通过带有不同植被的面板,保障了入口的私密性。
环绕庭院的路径、不同楼层之间的衔接以及前后空间的贯通,使乔伊克住宅成为观赏景观的媒介 —— 它过滤了城市景观,强化了与高尔夫球场的联系。