光影多层次体验感官共鸣的舞台美容美发集合店设计
如今,美容美发空间设计已不再局限于简单地修饰外表。它已然形成了一种独特的语言 —— 既展现个人品味,又能让人通过多样的风格邂逅不一样的自己。美妆如今已超越了外在造型的范畴,演变成一种多维度的文化,承载着身份表达、自我关怀以及生活方式的内涵。
Hearts 沙龙的第二家分店 “He:arts Hannam” 坐落于首尔的核心地带、潮流枢纽 —— 汉南洞。Hearts 沙龙追求永恒之美。它不只是追随潮流,更在不断探索与革新,创造属于自己的艺术与作品,以对美的诚挚态度引领文化潮流。
Hearts 所追求的本真,与当今韩国美妆市场的发展方向自然契合。韩国如今已步入 “缓龄” 时代,而非 “抗衰” 时代。美妆不再是对抗衰老的痕迹,而是被重新定义为一种再生 —— 拥抱长寿与心理健康,追求回归自然的简约与本质。秉承这一理念,我们以 “感官共鸣” 的概念来诠释 Hearts 的诚挚。
“He:arts Hannam” 带来了与传统美发沙龙截然不同的体验。它不只是一个做发型的地方,更是一个回归本质的空间 —— 在这里,顾客能享受到头部水疗、个性化产品推荐、修护护理等基础服务。当人们闭上眼睛,感受着他人的手在发丝上舞动,感官便会自然觉醒。在这些细微的动作中,被放大的感官相互交融,造就非凡的体验。这个空间成为了一个感官共鸣的舞台,也是顾客与自身感官深度连接的地方。
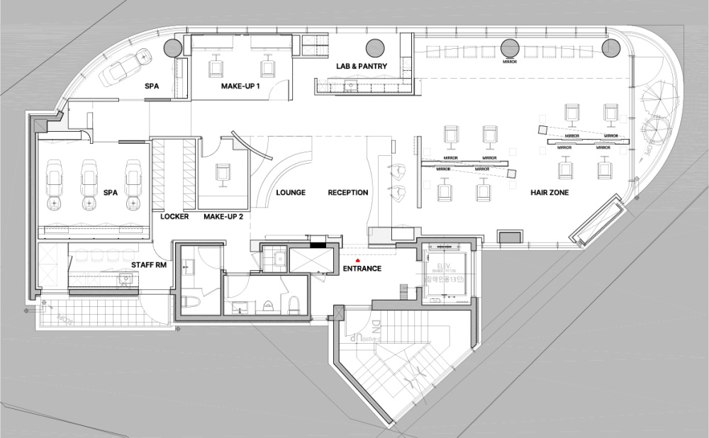
布局以中央休息区为核心,左侧是水疗区,中间为美妆区,右侧则是美发区。这三个感官空间构成了店铺的主体,员工区域位于后方,自然地实现了工作流程与动线的分离。为了与场地低矮且横向延展的比例相协调,中央区域保持低矮的形态,并在平顶之下形成统一整体,营造出开阔宽敞的感觉。
进入店内,访客首先映入眼帘的是休息区。柔和发光的半透明玻璃盒柜台,以及直线与曲线形态的相互交织,从视觉上诠释了 “感官共鸣”。中央摆放着艺术家金智善的作品,它体现了 “感知的质感”,象征着 He:arts Hannam 的特色。穿过柜台旁的走廊,便进入了美发区。在这里,美发位分布在由不同材质和形态构成的交错空间之间,自然地阻隔了顾客之间的视线,营造出更私密的氛围。上方的护理区采光充足,为在此停留时间较长的顾客带来温暖与舒适,缓解等待的焦灼。
休息区左侧走廊的尽头,设有两间水疗室 —— 一间私密型,一间共享型。走廊本身作为过渡区域,拓宽了视野,为空间流动增添了节奏感。水疗室并非仅仅是洗发的地方,更是一个能开启另一重感官体验的场所。与店铺整体的格调不同,这里较暗的氛围与墙壁上柔和却又浓郁的光影形成鲜明对比。这种平衡让顾客能完全沉浸在自身的感官世界中,邂逅一场不凡的、超乎寻常的体验。与之相反,美妆区则充满了明亮的光线。缎面亚克力与玻璃构成了仿佛能收纳光线的发光体。顾客可以在一个通透、清爽且舒适的环境中接受美妆服务。
特殊涂料、喷砂金属、缎面亚克力等对比鲜明的材料,为明亮的色调增添了层次感。品牌的中性特质通过蓝色点缀、软木油毡以及环保饰面得以体现 —— 既带来了可持续感,又增添了几分活泼的活力。“He:arts Hannam” 不仅仅是一家修饰外在美的沙龙。在这里,顾客通过多重感官感受自我,邂逅内在与外在的自己,发现真正的美。