叠放的L 形红砖体量院子的绿围绕房子转的别墅设计


这座住宅位于阿根廷一个低密度住宅区,占地面积为 20 米 ×35 米,周边有大面积绿地。为了增强家庭私密性,设计方案呈现出明显的内向型特征,通过大面积的透明设计将视线引向内部的绿色空间。




住宅功能分布在两个相互叠加的 “L” 形结构中,优先考虑最佳视野和朝向,地块尽头还设有一个烧烤区。一系列各具特色的庭院将不同功能区域有序划分。入口处的首个开放空间起到了与街道之间的过渡作用。住宅中央的庭院将私密区域与公共社交区域分隔开来。后侧是最大的庭院,空间开阔且绿意盎然,将住宅与烧烤区隔开。





住宅与两侧地界保持一定距离,使外部的绿色植物能够环绕四周,拓展了内部空间的视觉感受。各个空间围绕一个双层高的中央大厅布局,大厅与中央庭院相连,楼梯上方设有大型天窗,从水平和垂直方向将两层空间巧妙衔接。





一层前部设有一个多功能空间(可作为办公室或客房),并配有公共卫生间。后部是半开放式厨房、餐厅和客厅,形成一个南北通透的整体区域。北侧通过高窗采光,下方搭配混凝土与木材制成的矮柜,在视觉上与双车库形成独立区域;南侧设有挑檐,可完全向庭院敞开。





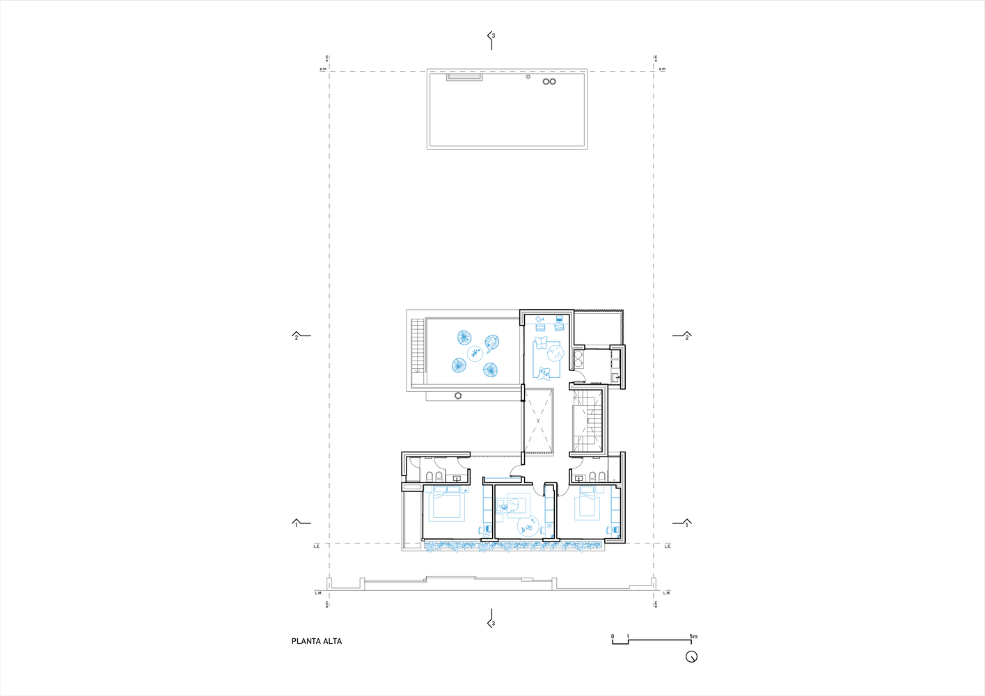
二层临街一侧设有三间卧室和两间卫生间。后部是洗衣房及专属扩建空间,还有一个私密的房间直接与露台相连,通过外部楼梯可通往庭院,从而完善了内部与外部空间之间的通行循环。





建筑体量沿纵向呈阶梯状分布,确保了充足的日照,使冬季的北向空间也能获得自然光。建筑的构造通过质朴而优质的材料来体现,这些材料经过精心挑选,以保证建筑体量具有良好的耐久性和老化表现:墙面和屋顶采用裸露的混凝土与砖,室内外地面则使用天然石材。室内采用白色墙面和抛光木材,营造出简洁明亮且温馨舒适的空间氛围。所有空间的可塑性在建筑中自然而细腻地展现,赋予住宅独特的个性、整体感与辨识度。