粗犷里的温柔装着一整个会呼吸森林的工作室设计
Aug 13 , 2025 |
Views :
1,062
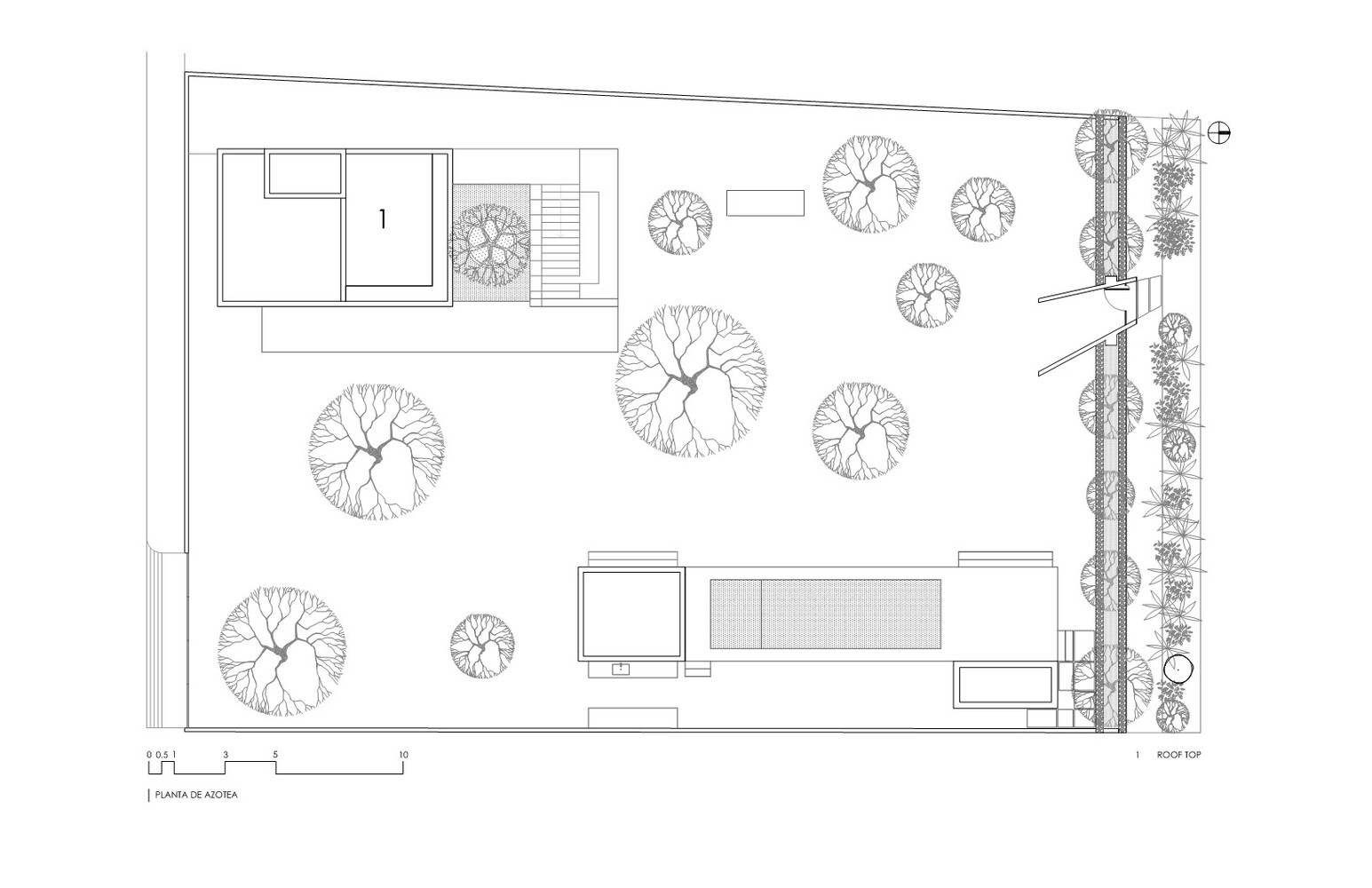
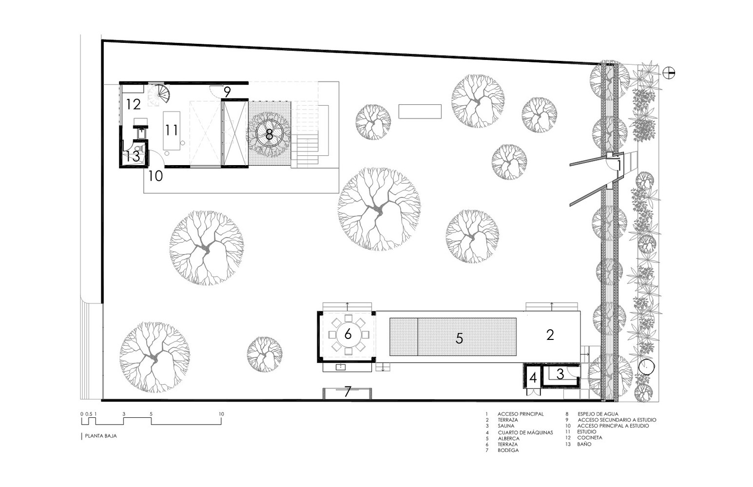
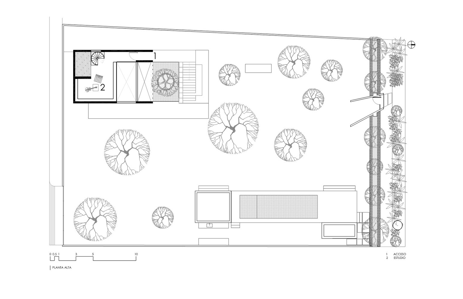
这座工作室隐匿于树林之间,其厚重坚实的体量设计灵感源自粗野主义建筑的精髓。它采用未经修饰的天然材料建造而成,是一处集自然、艺术与休憩于一体的创意与沉思之所。在宏伟的建筑体量之外,双层挑高的空间搭配大型钢铁框架透明玻璃窗,使室内与周边的树林景观形成了持续的视觉融合。
自然抹面的表面赋予空间丰富质感,随着日间光线变化,形成不断变幻的光影游戏。所选材料皆能随时间自然演化,沉淀出独特的包浆,愈发彰显其本真特质。螺旋楼梯连接起一、二层,并延伸至屋顶露台,在此可将森林天际线的绝美景色尽收眼底;这座露台也由此成为一处沉思空间,让人能真切感受到与周遭环境的紧密联结。
该工作室专为创意与实验而设计,内部配备了本地锻造的家具,黑色整体地面呈现出现代感,与天然材料形成微妙对比。点状暖光照明营造出轻松惬意的氛围。造型独特的悬浮楼梯需要人们专注留意,引领使用者进入一个近乎梦幻且充满敬畏感的空间,是内省沉思的理想之选。
中央有一棵树的镜面水池为空间带来清凉与宁静。工作室内部被规划为藏品存放地,这些藏品滋养着艺术与叙事灵感。空间兼具休憩与冥想功能,其灵活的结构既能适应放松时刻,也能满足创意活动的需求。总体而言,这座建筑项目是内省、创作与自然连接的交汇点 —— 在这个独特且富有个性的环境中,人们可以尽情体验、探索与汲取灵感。