用实用美学重塑街区居住体验混凝土绿意公寓楼设计
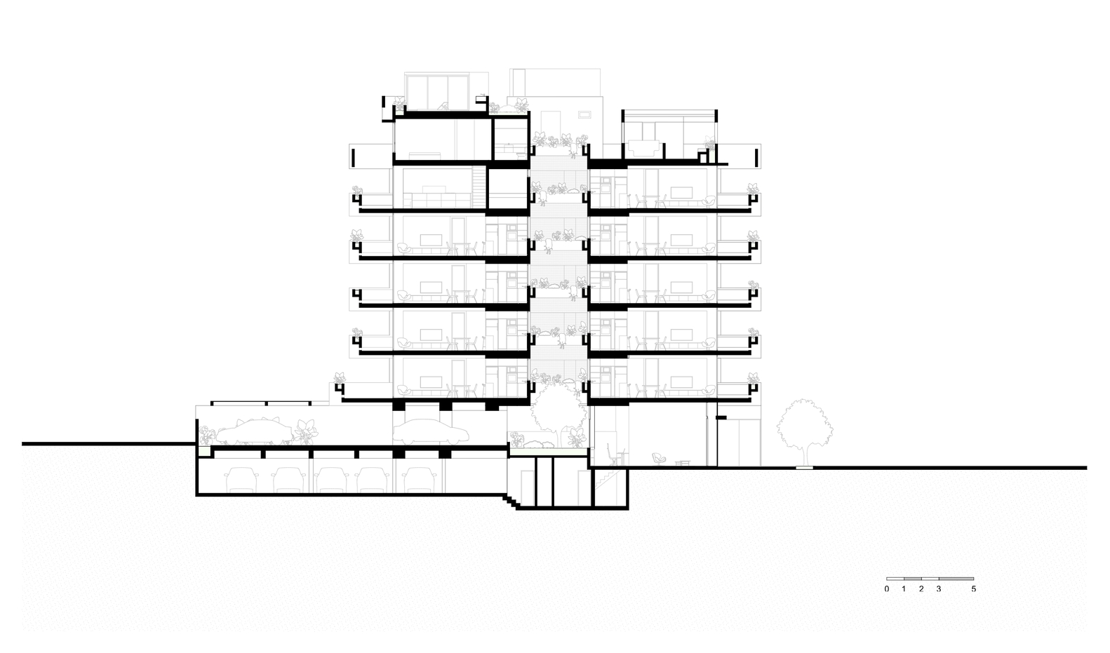
该绿植公寓楼设计在阿根廷布宜诺斯艾利斯省马德普拉塔市的古埃姆斯成熟住宅区,BTE 建筑事务所以一栋名为 “阿韦亚内达 1539 号” 的公寓楼,为街区注入了当代居住的新活力。它紧邻奥拉瓦里亚街与古埃姆斯街的美食走廊,没有张扬的造型,却以清水混凝土的粗犷、植被的鲜活、木材的温暖,在 10.40 米宽、32 米深的地块上,搭建出 5 层实用且极具辨识度的居住空间,既与周边环境和谐共生,又成为古埃姆斯区当代建筑的独特典范。

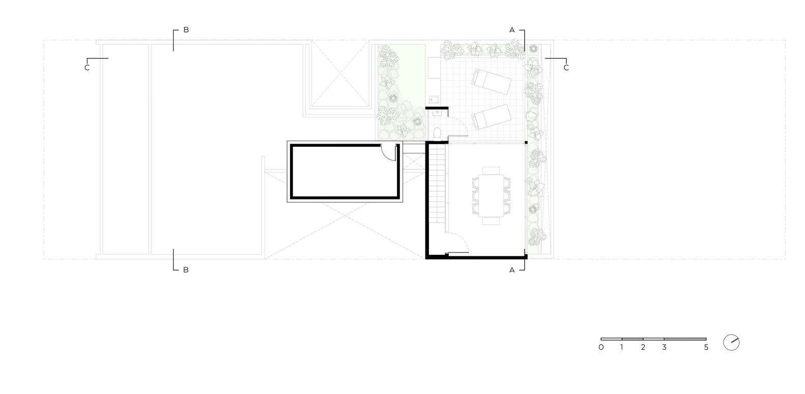
阿韦亚内达 1539 号公寓楼的设计,从 “人如何舒适居住” 出发,把每一层的功能与动线都规划得清晰且贴心:一层与地下空间:自然过渡的 “入户仪式”人行入口没有直接面对街道,而是通过一处融合了室内外植被的大堂 —— 绿植从室外延伸到室内,像一道 “自然屏障”,把街区的喧嚣轻轻隔开,让住户从踏入大堂的那一刻,就能从 “城市模式” 切换到 “居家模式”。车行入口则更注重 “便捷与隐蔽”:一道活动坡道连接地下层与夹层车库,车辆不用在地面停留,直接驶入地下,既避免了地面车流对行人的干扰,又保持了一层空间的整洁。地下层还特意留出一间临街办公室,配备办公区、客厅与卫生间,满足小型办公需求,让建筑不止有 “居住功能”,还能服务街区生活。
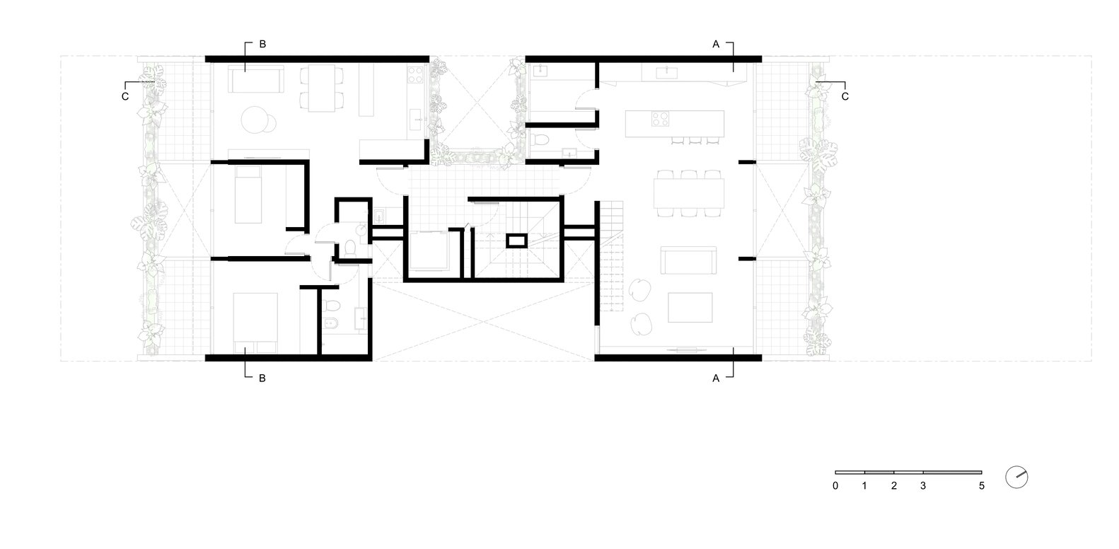
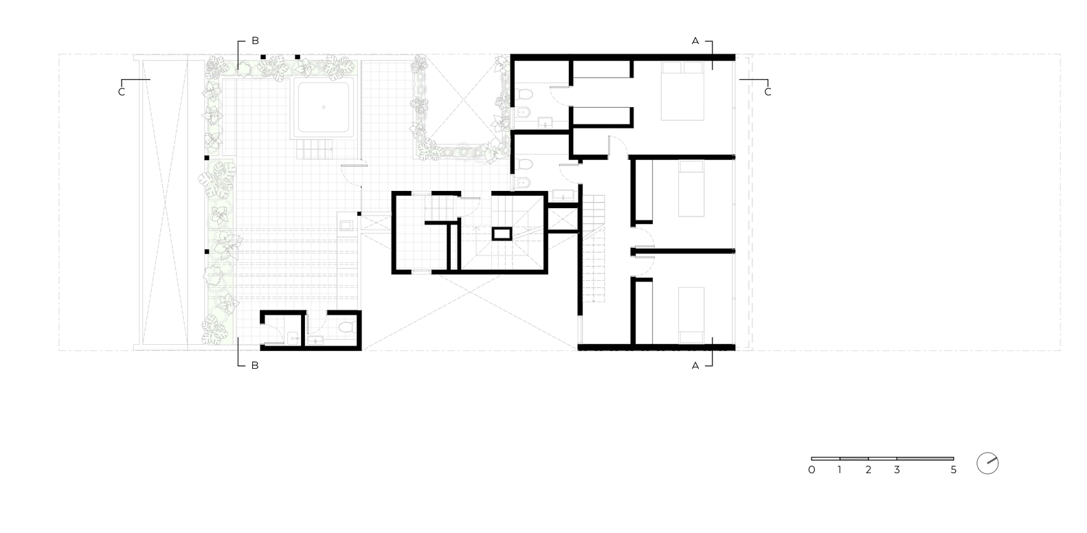
上层楼层:灵活适配的 “居住单元”:从一层到四层,每层规划两套三居室单元,一套朝临街面(能欣赏街道景观),一套朝地块后方(更安静私密),中间通过半开放式中央交通核心连接。这个核心藏着一个 “实用巧思”:一处边长 3.60 米的通风天井,刚好为每户的厨房提供自然通风 —— 不用依赖机械排风,新鲜空气能顺着天井进入厨房,既环保又能减少油烟异味。到了五层和六层,户型升级为面积更大的公寓,留给住户更多改造空间:喜欢开阔客厅的家庭可以打通局部墙体,追求私密的住户能规划独立书房,满足不同人群对 “宽敞与专属” 的居住需求。
BTE 建筑事务所在材质选择上,没有追求 “精致的统一”,而是用 “粗犷与温柔的碰撞”,让空间有了层次与温度:清水钢筋混凝土是整栋建筑的 “主角”—— 从外立面到室内墙面、地面,都保留了混凝土原始的粗犷质感,没有多余的装饰,却自带当代建筑的利落感。这种材质不仅耐用(能抵御马德普拉塔的气候),还能随着时间推移,慢慢沉淀出自然的痕迹,让建筑越住越有 “生活气息”。
植被:软化硬朗的 “自然补丁”
为了避免混凝土的 “冰冷感”,设计师在所有立面与公共区域的花池里都种上了植被 —— 外立面的绿植顺着墙面攀爬,像给混凝土穿上了 “绿色外套”;公共区域的花池里花草丛生,连中央通风天井周围都点缀着小型绿植。这些植被不仅与周边街区的树木呼应,还让建筑有了 “呼吸感”:春天绿意盎然,夏天遮阴降温,秋天落叶铺地,冬天枝干勾勒线条,让住户在钢筋混凝土里,也能触摸到自然的变化。
木材:注入温暖的 “居家细节”
室内空间则用木材来平衡混凝土的厚重:木地板从玄关铺到卧室,踩上去带着自然的温润;木质家具(如客厅的座椅、厨房的柜体)线条简洁,却用木材的纹理与色调,为空间注入 “家的温度”。站在室内,看着混凝土墙面的粗犷、木质家具的柔软、窗外植被的鲜活,三种材质碰撞出奇妙的和谐 —— 没有哪一种材质 “抢镜”,却共同营造出 “既现代又亲切” 的居住氛围。
阿韦亚内达 1539 号公寓楼最懂 “阳光对居住的重要性”,所以设计师把 “采光与观景” 融入每一个细节:所有居住单元都采用落地窗设计 —— 客厅的落地窗从地面延伸到天花板,卧室的落地窗搭配轻薄窗帘,阳光能毫无阻碍地洒进房间:清晨,阳光透过窗户照亮混凝土地面,光影在墙面慢慢移动;午后,坐在客厅的木质沙发上,阳光落在身上暖洋洋的,连看书都多了份惬意。落地窗还让空气对流更顺畅,打开窗户,新鲜空气能穿过房间,带走闷热,不用频繁开空调,也能保持室内凉爽。
无遮挡视野:让居住 “不局限于室内”
卧室与客餐厅都设有朝向不同方向的开口:朝临街面的窗户,能看到奥拉瓦里亚街与古埃姆斯街的热闹 —— 美食走廊的烟火气、街区行人的悠闲,都能成为 “窗外的风景”;朝地块后方的窗户,则对着街区天井,能看到绿植、天空,更显安静私密。这种 “无遮挡视野”,让住户不用走出家门,也能与街区保持联结,既不会 “隔绝于生活”,又能拥有属于自己的宁静角落。
在古埃姆斯区的街道旁,阿韦亚内达 1539 号公寓楼像一位 “低调却有态度” 的邻居 —— 它不刻意追求惊艳,却用实用的布局、质朴的材质、充足的阳光,满足人们对 “好房子” 的基本期待;它不与周边环境割裂,却以当代建筑的语言,为街区增添了新的居住活力。BTE 建筑事务所证明,好的居住建筑不用复杂,只需抓住 “实用、舒适、与环境共生” 的核心,就能让每一个居住单元,都成为住户愿意长久停留的 “家”。