聚焦中央楼梯传递历史记忆与温暖质感的住宅设计
Sep 15 , 2025 |
Views :
970
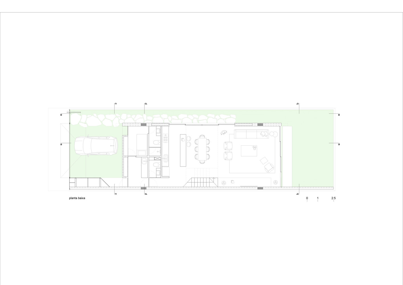
该红砖别墅设计位于(巴西圣保罗) Jardim Paulista 街区,设计面临的核心挑战是:在一块面积仅 180 平方米的紧凑地块上,容纳一套完整的功能规划 —— 包括三间卧室、花园、泳池、露台、开放式厨房、辅助区域及两个车库车位。这片地块此前曾建有一栋双拼住宅(casa geminada)。
设计团队决定拆除原有建筑,但保留其砖块用于新建筑施工。这一举措不仅为室内空间赋予历史记忆与温暖质感,更在过去与现在之间建立起联结。新建筑采用钢筋混凝土结构,由立柱与两根高 1 米的横梁构成,横梁既起到支撑作用,又承担起悬挂楼板的功能。这种结构策略使楼板间形成 1 米的高度差,设计团队巧妙利用这一高差,通过一座中央楼梯实现垂直交通衔接。

这座楼梯不仅是连接各楼层的交通元素,更承担着 “组织动线、减少走廊空间、拓展功能区域” 的多重作用,同时有利于实现穿堂风通风,让充足的自然光进入室内。最终呈现的空间具有以下特点:层高随功能区域变化、面向室外的大开口设计、与景观环境的直接融合 —— 这些设计共同弱化了室内外的边界感。
该建筑结构还包含一层 “技术楼板”,专门用于放置储水箱;同时,结构顶部的露台之上还架设了一座泳池。通过这种布局,项目在确保功能高效性的同时,并未牺牲贯穿整个设计的 “空间轻盈感”。