让家与运动极简和自然共生理念的别墅设计

该别墅设计是在新冠疫情(COVID-19)期间,公园及其他公共空间的使用受到限制,莱恩住宅(Casa Lane)的设计初衷便是打造一处户外健身空间。项目要求将运动区域、自行车道或跑道与住宅的多种功能相融合。这就引出了一个关键问题:如何在 640 平方米的地块上,将 850 平方米的功能空间与自行车道 / 跑道整合,并通过优化布局最大限度延长跑道长度。
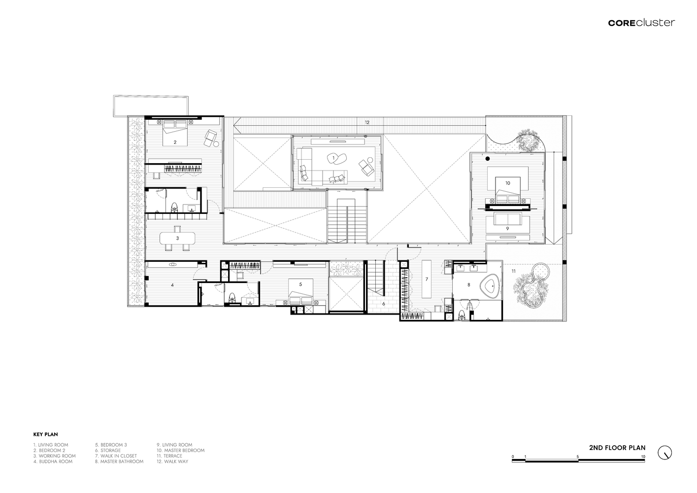
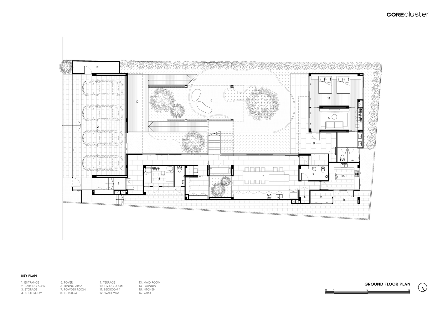
为最大化跑道长度,所有房间沿地块边缘呈 “U” 形平面排列布局。这种设计能让跑道与建筑主体无缝融合,从而实现长度最大化。从地面层进入后,坡道沿住宅外围连续延伸,缓缓上升至二层的客厅区域,最终抵达顶层的主卧套房,为主人提供直达通道。骑行或跑步一圈的距离可达 200 米。
“U” 形平面自然围合出中央空间,该区域由庭院与客厅构成。这座悬浮于半空的挑高客厅,不仅在其下方预留了额外的跑步空间,还能与其他功能区域及庭院形成视觉连通 —— 庭院内的植被经过高度整理,进一步提升了视觉体验。客厅四周采用全玻璃设计,既强化了这种空间连通性,又营造出 “共享空间” 的通透感。从功能关系来看,尽管客厅与其他功能区域处于独立的建筑体量中,但其功能定位与位置布局,仍将 “家” 的理念融入了住宅建筑设计之中。
在外立面设计上,朝向庭院的墙体采用全透明处理,以最大化各功能区域的视觉可达性。项目同时注重连接室内外活动,并确保建筑内部获得充足的自然光。住宅外侧紧邻大型桥梁与公路,因此朝向这些周边区域的外墙采用封闭设计,以保障居住私密性;同时,考虑到曼谷炎热潮湿的气候,这些外墙又具备通风功能,以适应当地气候条件。
该住宅采用双层外立面设计,主要建筑材料选用灰色烧结砖。两块瓷砖呈对角线交错排列,形成连续的单元,造就了外立面独特的纹理图案。这种图案既能过滤热量、保障隐私,又能在阳光照射下形成独特的光影效果。烧结砖不仅维护成本低,其色泽会随时间推移自然变化,这种变化也被纳入设计考量 —— 住宅借此与自然风化的过程形成了和谐共生的关系。