以圆形庭院为内核谱写当代冥想场的红砖豪宅设计
该红砖别墅设计在印度阿姆利则三英亩的开阔基地上,Renesa 建筑与室内设计工作室以一场颠覆常规的建筑实践,打造出 12,000 平方英尺的 Sanctum 住宅。它跳出印度常见的 “方盒子住宅” 或 “华丽宫殿别墅” 范式,以 “圆形庭院” 为灵魂支点,在现代主义框架中深度融入印度的气候特质、文化记忆与情感需求,用几何形态、诚实材料与空间叙事,将住宅升维为 “关于永恒与自省的当代冥想场”,最终重新定义了 “印度当代住宅如何平衡全球化设计语言与在地精神基因”。
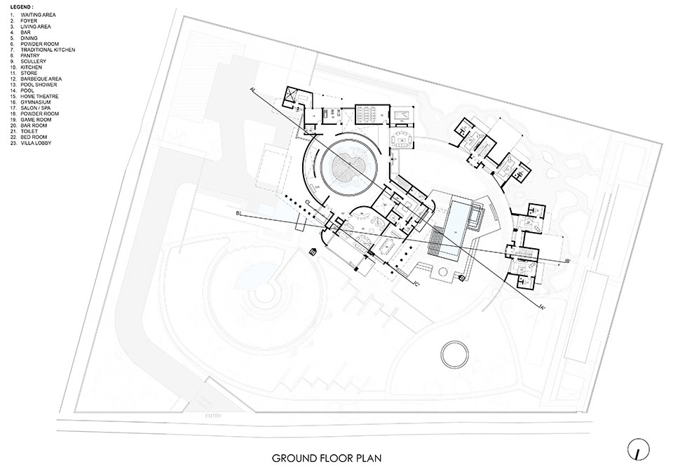
圆形庭院并非偶然的几何选择,而是承载 “自省、共生” 精神的载体。其无棱角的形态消解了方向感的压迫,让居者环绕庭院时自然 “向内聚焦”,契合 “冥想空间” 的设计初衷;庭院直径经过精密计算,既确保周边所有功能区都能望见核心景致,又避免过大导致的空旷感,使 “中心虚空” 成为 “凝聚家庭情感的磁场”—— 家人在客厅休憩、餐厅用餐时,仍能通过庭院产生视觉与情感的隐性连接,让 “共处” 无需刻意,却自然发生。
庭院内以 “水景、原生植栽、弧形遮荫” 构建多层次景观系统:中央水景与天空、建筑形成 “三重镜像”,晨光中的薄雾、正午的粼粼波光、黄昏的霞光倒影,让水面成为 “记录时间的动态画布”;原生植栽沿庭院边缘自然生长,避免过度修剪的人工感,其枝叶随季风摆动,与印度炎热气候形成 “自然降温” 的生态互动;遮荫边界采用 “混凝土弧形挑檐 + 局部绿植覆盖”,既为庭院提供全天候休憩的阴凉区,又通过挑檐的光影投射,在地面形成 “流动的几何图案”。居者在此静坐时,能在 “水、植、光的变化” 中感知 “自然与建筑的持续对话”,实现 “身体放松” 与 “精神沉淀” 的双重体验。
居者进入住宅的动线,是一场 “从喧嚣到宁静” 的情绪递进:从入口 “压缩的砖砌走廊” 进入,视线被刻意引导向远处的圆形庭院,形成 “先抑后扬” 的期待感;穿过走廊后,空间突然开阔 —— 起居区以 “4.5 米高天花板 + 全玻璃界面” 面向庭院,让 “庭院景致瞬间涌入视野”,完成 “从外部到内部” 的心理切换;沿环形动线向私密区过渡时,空间层高逐渐降低(公共区 4.5 米→私密区 3 米),楼板悬挑长度逐渐收缩,通过 “尺度的变化” 暗示 “公共 – 私密” 的边界,让居者在移动中自然感知 “空间情绪的柔和递进”。
环形辐射的布局打破 “功能区孤立分割” 的传统:半公共的 “聚会区”(客厅、餐厨)紧邻庭院外侧,大开口设计让 “家庭社交” 与 “庭院景观” 无缝衔接,用餐时可直视庭院水景,待客时能邀请客人在庭院露台小坐;半私密的 “休闲区”(书房、亲子区)位于环形中层,通过 “半通透的砖砌隔断” 与公共区形成 “隔而不断” 的关系,既保证 “专注活动的安静”,又不割裂家庭的整体互动;私密的 “卧室区” 则位于环形内侧,面向庭院的开窗采用 “可调节百叶”,既保留 “望向庭院的景观权”,又保障 “休憩时的私密性”—— 每一个功能区都与核心庭院形成独特的对话方式,让 “家庭生活的每一刻” 都能与自然产生关联。
建筑外立面以 “印度本地红砖 + 清水混凝土” 为核心:红砖采用 “传统手工烧制”,保留砖面的天然纹理与细微孔洞,其温暖的橙红色调与印度土壤、阳光形成 “在地色彩共鸣”,同时红砖的 “多孔结构” 能有效调节室内湿度,适配印度炎热潮湿的气候;清水混凝土用于 “悬挑楼板、弧形挑檐” 等结构部件,未做任何装饰,保留 “模板浇筑的木纹痕迹”,冷硬的质感与红砖的温暖形成 “刚柔对比”—— 既传递现代主义的 “结构美学”,又通过 “混凝土的热惰性” 减少室内温度波动,降低空调能耗,实现 “美学表达” 与 “气候适配” 的统一。
室内材质与外部形成 “互补对话”:地面采用 “浅色实木地板”,保留木材的天然结疤与纹理,脚感温润,中和外部砖与混凝土的 “冷硬感”;家具选择 “中世纪现代风格”,低矮的皮革座椅、简洁的木质茶几,线条利落却不失 “坐感的舒适”,皮革的 “柔软质感” 与木材的 “温润” 共同营造 “家庭的亲密氛围”;局部墙面采用 “手工肌理涂料”,模拟 “印度传统土墙的粗糙感”,但通过 “浅色基调” 与 “局部金属线条点缀”,避免 “过度乡土的陈旧感”—— 让 “在地记忆” 以 “现代精致” 的方式呈现,既不割裂文化根脉,又符合当代生活的审美需求。
最终,Sanctum 住宅不仅是一座 “可供居住的建筑”,更是一份 “关于印度当代住宅未来的宣言”。它以 “几何为骨、自然为魂、情感为核”,在阿姆利则的土地上,书写出 “建筑如何超越功能,成为激发人类精神共鸣的永恒载体” 的答案 —— 这或许正是 Sanctum 最珍贵的价值:它让人们重新思考,住宅的本质不是 “钢筋水泥的堆砌”,而是 “承载生活、滋养精神、连接文化” 的温暖容器。