以有机疗愈重构社区健康空间激活城市更新的健身房设计
该健身馆设计在墨西哥米却肯州莫雷利亚的街道更新浪潮中,Hābico 身心健康中心绝非普通的健身场所 —— 它是一场 “用空间重塑社区健康生态” 的实践。项目落地于曾因夜生活聚集、治安隐患突出的区域,如今却借着城市更新的契机,与街道中央改造后的线性公园深度融合,将昔日的 “问题地带” 彻底转变为 “运动、休闲、家庭互动” 的社区活力核心,用开放、亲和的姿态,成为连接居民与健康生活的纽带。
走进 Hābico,最先感受到的是 “无压迫感的疗愈氛围”。设计团队摒弃了传统健康空间常见的工业风与夸张装饰,转而以 “有机形态、天然材质、大地色调” 构建空间灵魂:流动的曲线贯穿始终,从入口弧形接待台到健身区的曲面隔断,再到更衣室的圆形门洞,每一处线条都呼应着人体运动时的能量韵律,打破直线的僵硬感,传递出连续与平衡的意象;地面的浅棕色陶土砖保留着天然颗粒感,墙面局部的夯土涂料带着细腻的泥土纹理,家具与定制标识则以实木为基底,这些源自自然的材质搭配浅棕、米黄、赭石等大地色系,让整个空间如同 “被自然温柔包裹”,既缓解视觉疲劳,又能安抚运动后躁动的情绪。
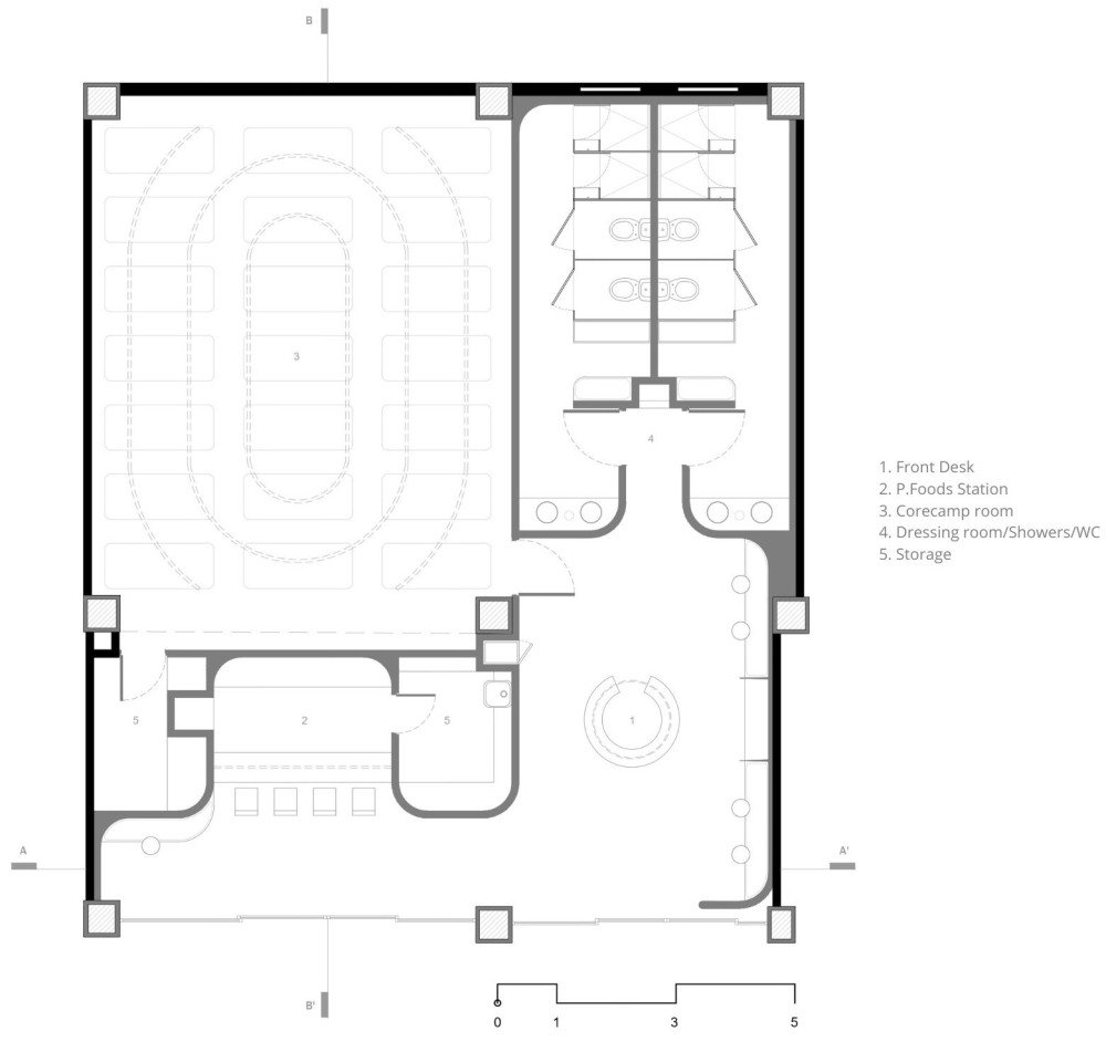
功能布局上,Hābico 围绕 “身心双重转化” 展开,实现了 “运动、饮食、休憩、疗愈” 的全场景覆盖:入口附近的健身区配备专业设备,满足高强度训练需求,曲面隔断划分区域却不阻断通透感,让运动时的视野更显开阔;中部的食品区以弧形吧台和开放式展示柜为核心,提供健康餐食,居民运动后可在此补充能量,旁边的接待休息区则用柔软沙发与绿植营造放松氛围,成为 “动态运动” 与 “静态休憩” 的自然过渡;深处的更衣室采用暖光与独立隔间设计,保障隐私的同时传递舒适感,更隐藏着一间冥想小间 —— 吸音材质与低照度灯光打造出完全安静的场域,让居民在运动后能通过冥想、呼吸练习,完成 “身体激活到心灵平静” 的闭环。
值得一提的是,设计团队从项目之初便与平面设计工作室紧密协作,小到标识系统的字体选择(圆润无衬线体贴合有机形态),大到家具的人体工学设计(可调节实木训练凳、橡木储物柜),都实现了 “实用功能” 与 “空间美学” 的无缝衔接,让每一处细节都在强化 “身心健康” 的核心价值。
如今的 Hābico,早已超越 “健身场所” 的定义:对居民而言,它是快节奏生活中 “身心疗愈的庇护所”,在这里,运动不再是任务式的消耗,而是与自我对话的过程;对社区而言,它是 “激活健康生态的催化剂”,玻璃界面将内部的积极场景传递给街道,户外休憩区成为居民日常交流的据点,彻底扭转了区域的负面印象;对城市更新而言,它更提供了 “以空间赋能社区” 的范本 —— 证明好的设计不仅能美化环境,更能重塑社区关系,让健康生活真正融入城市肌理。