修复原始构件尊重历史记忆胡桃木风办公室设计
巴利亚多利德(Valladolid)市中心的官方医师学院办公室设计(Colegio de Médicos)历经了一场全面翻新,其总部面貌由此焕然一新。该项目始于一个明确的核心前提:通过使用天然材料、修复原始建筑构件,并重新规划此前利用率低下的空间布局,打造一个健康、明亮且与可持续发展理念相契合的环境。
在拆除阶段,团队回收了具有浓厚象征意义的材料 —— 例如原接待台的红色与绿色大理石。这一构件最初是空间的核心连接元素,经过重新利用与创新诠释,被转化为全新的空间组件:新的入口接待台、吧台台面以及多张定制设计的桌子。其中,红色大理石被应用于机构性与私密性区域,如会议室和院长办公室;而绿色大理石则成为新吧台设计的视觉主角。
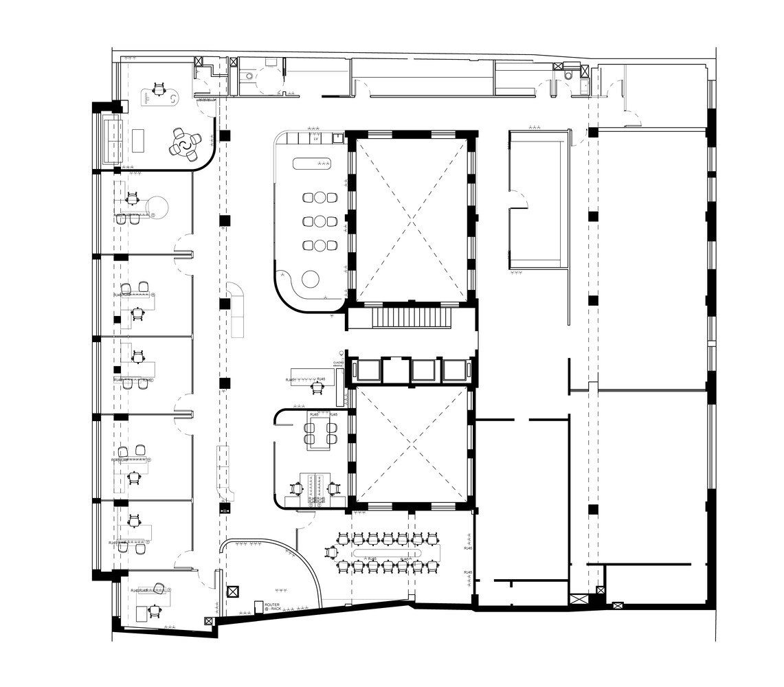
另一项重点修复的元素是原图书馆的旧书架。经过精心修复后,它被改造为学院的历史档案馆,进一步强化了空间的 “过去与现在” 之间的联结。此次翻新还针对建筑平面的空间布局进行了优化 —— 原布局分隔零散且光线昏暗。新方案以 “开阔感、流动性与自然光” 为设计核心,重新组织空间结构,促进视觉通透度与不同区域间的互动;同时,通过选用优质本地材料,进一步强化了空间的整体协调性。
地面采用了产自当地省份的坎帕斯佩罗石材(piedra de Campaspero);墙面则以石灰砂浆饰面,这种透气材料有助于提升环境舒适度。室内木作与隔断均采用美国胡桃木设计 —— 深色木材为空间赋予独特个性与优雅质感,与整体温暖色调形成鲜明对比,其细微的圆润线条还让人联想到复古风格设计。此外,天然材料制成的吸音天花板与精心设计的照明系统,共同完善了整体设计,营造出宁静且宜人的空间氛围。
办公室以木质隔断为核心进行布局,结合建筑平面有机流畅的分布,在弱化物理边界、增添空间动感的同时,确保了功能完整性与私密性不受影响。最终呈现的空间兼具当代感、平衡性与静谧感 —— 既尊重了机构的历史记忆,又满足了当下的使用需求与舒适标准。