构建无界交流场域简繁共生情感承载的极简住宅设计


在家庭居住的命题中,“如何平衡功能与情感”始终是核心。有这样一座极简住宅设计,以“简约质朴与繁复鲜活”的巧妙并置,给出了独特答案——素净的墙面与开阔的格局预留着未来演变的弹性,而贯通的空间与互动的场景则孕育着家族的温暖记忆。由索福格拉菲工作室操刀的这座住宅,以“促进家庭交流”为设计原点,在有限预算内,将空间打造成既能容纳大家庭日常,又能随时光生长的“记忆容器”。




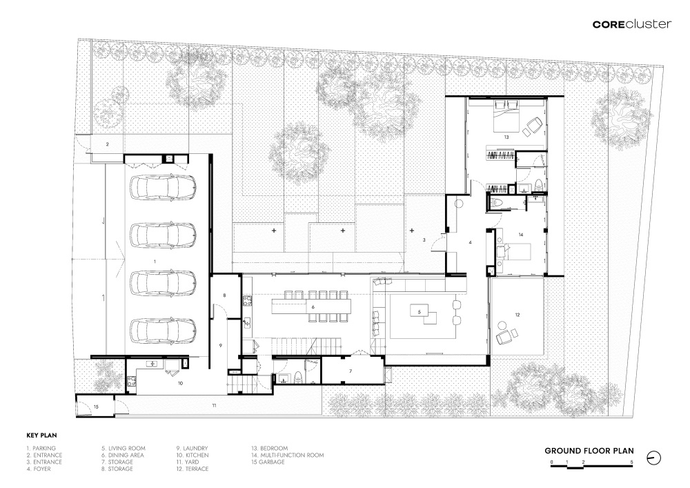
住宅的设计命题,始于一个朴素却深刻的需求:“让家庭成员在一天之中始终保持顺畅的交流”。对于人口众多的大家庭而言,空间的割裂往往意味着情感的疏离,而设计师精准捕捉到这一痛点,将“构建无界交流场域”作为贯穿始终的核心思路。这一思路打破了“功能分区至上”的传统桎梏。设计团队没有用厚重的墙体划分出一个个孤立的房间,而是将“促进互动”作为空间布局的首要准则,让每一处设计都服务于“家人看得见、聊得着”的日常场景。从清晨的早餐时光到夜晚的客厅闲谈,从孩子在共享空间玩耍到长辈在起居区休憩,空间的规划始终围绕“交流的可能性”展开,让家不仅是居住的场所,更是情感联结的纽带。



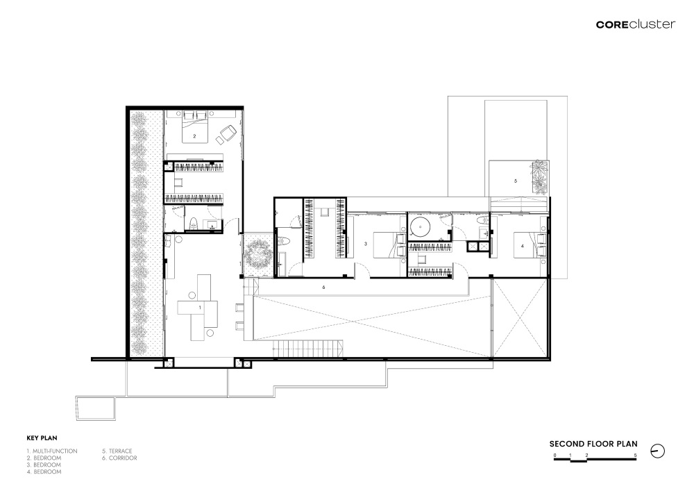
住宅最鲜明的设计特质,是“简约与繁复”的有机共生,这种特质既体现在视觉表达上,更蕴含在空间功能中。“简约质朴”的一面,体现在素净的界面与开放的框架上——这不仅是预算考量的结果,更预留了充足的“空间弹性”,让居住者可根据未来需求进行改造与装饰,使住宅能随家庭结构、生活习惯的变化而生长。“繁复鲜活”则聚焦于“交流场景的营造”。设计师将开阔的公共区域置于住宅中心,以“错层式地坪”这一巧妙手法划分起居与用餐空间——无需实体隔断,仅通过微小的地面高差,便实现了功能的明确区分,同时又保持了视觉与气流的贯通。家人在餐厅用餐时,能清晰看到客厅的电视画面与活动身影;在起居区休憩时,也能随时与厨房忙碌的家人搭话,这种“隔而不断”的布局,让交流无处不在。中央区域的“两层挑高共享空间”,更是强化了交流的纵深感。挑高设计构建起一层公共区与二层走廊的视觉联结,楼上的孩子俯身便能与楼下的父母互动,长辈在客厅的话语也能轻松传至二楼卧室,彻底打破了楼层间的隔阂。这种从封闭到开放、从私密到公共的自然过渡,让“公共空间”的理念贯穿全屋,形成“无死角交流网络”。




受限于有限的预算,设计团队将“极简必要”原则贯穿于材料选择与装饰运用中,却并未牺牲空间的舒适度与美感,反而通过精准设计实现了“成本、功能与视觉”的三重平衡。素净的墙面成为最具代表性的设计选择。摒弃了复杂的装饰与昂贵的饰面,简单平整的墙面既降低了施工成本,又具备极强的功能性——浅色的表面能最大化反射自然光,配合建筑朝向的优化布局、深邃的屋檐设计以及外立面窗户的精准定位,让室内在白天无需依赖人工照明便能保持明亮通透,从源头降低了日常能耗。这种“极简”并非偷工减料,而是对“必要设计”的精准把握。屋檐的深度经过计算,既能在夏季遮挡强光避免室内过热,又能在冬季让阳光斜射入室提升温度;窗户的位置与尺寸则结合周边环境,在保证采光的同时兼顾隐私;错层地坪的设计,以低成本的施工方式实现了比实体隔断更灵活的功能分区。每一处细节都经过“是否必要”的考量,最终让有限的预算都用在“提升居住体验”的刀刃上,实现了“经济与舒适”的双赢。




这座住宅的价值,不仅在于当下的居住功能,更在于其“随时光演变”的能力。设计预留的“弹性空间”,让住宅能不断适应家庭的成长——孩子长大后,共享空间可改造为书房;长辈同住时,私密区域可通过简易隔断调整布局;随着生活品质的提升,素净的墙面也能承载更多装饰与收藏,记录家庭的变迁。空间的贯通性,更让这些变迁与记忆得以共享。挑高共享空间里悬挂的全家福,会随着楼层间的互动被每一位家人看见;错层起居区的地毯上,印刻着孩子学步的痕迹与家人围坐的身影;素净墙面上逐渐增加的照片与画作,成为家族记忆的可视化载体。时光流转中,住宅不再是冰冷的建筑,而是与居住者共同成长的“生命体”,承载着一代又一代的家庭故事。




这座住宅为“大家庭居住空间设计”提供了极具参考价值的范本。它证明了优秀的住宅设计,无需依赖昂贵的材料与复杂的造型,关键在于抓住“人”与“情感”的核心——以“交流”为布局准则,以“弹性”应对变化,以“极简必要”平衡成本与体验。当简繁并置的空间里,家人的笑声在挑高区域回荡,当素净墙面上的记忆不断叠加,这座住宅便完成了它的使命。它告诉我们,家的本质从来不是空间的华丽,而是人与人之间的紧密联结——而好的设计,就是为这种联结搭建起最温暖、最包容的舞台,让家在时光中愈发厚重与鲜活。


