用统一材料和开放空间诠释现代单身女性居住美学的住宅设计
Sep 3 , 2025 |
Views :
1,124
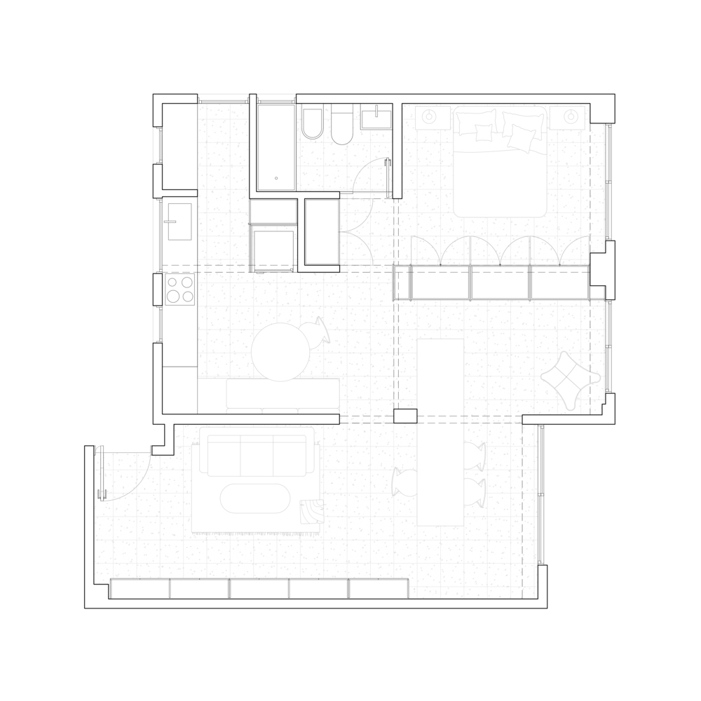
在布宜诺斯艾利斯市,有一套 70 平方米的小户型公寓设计,原本是为典型的传统家庭设计的,近年来却一直由一位在此居住和工作的年轻女性使用。既然在公寓各个空间进行的活动往往相似,比如在床上用笔记本电脑工作、在扶手椅上打盹、在厨房写作,那么保留没有穿堂风的独立隔间空间是否合理呢?对于一个人居住的公寓来说,设置一间浴室和一间卫生间是否必要?两个房间呢?厨房和洗衣房之间的门,以及卧室的门又是否有存在的意义呢?
因此,该项目的重点在于设计一个既贴合业主日常生活习惯,又具有足够通用性的空间场景,以便在使用需求发生永久性或临时性、偶尔性变化时(比如有家庭成员来访或举办生日聚会)能够灵活调整。
翻新方案从两个方向展开。一方面,尽可能拆除更多的墙壁,将各个空间统一起来,以获得更好的采光和通风效果。通过这些举措,公寓在空间上更加连贯,空气和光线也更加充足。
另一方面是材料的选择。采用单一的地板材质、单一的木材种类,以及反复使用的同一款灯具。白色花岗岩马赛克的出现,取代了之前的人造材料,这几乎像是一种原则性的宣告,再加上裸露钢筋混凝土结构的处理,使整个空间更加完整。三件香木家具:衣柜、厨房台面和抽屉柜,与一个大型的模块化金属书架相互搭配,划分并组织了空间,为索菲亚的新生活方式提供了支持。