双轴线串起全屋木柜划分功能连贯流畅的住宅设计
Sep 4 , 2025 |
Views :
1,139
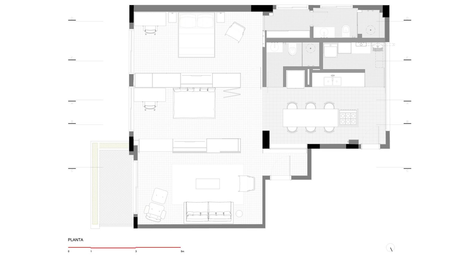
这套 95 平方米小户型公寓设计的改造旨在为一对年轻夫妇的生活调整空间。改造从彻底拆除内墙开始,为重新定义房屋内部的使用逻辑、动线和停留方式腾出空间。该项目试图用流畅、通透且适合当代日常动态的布局,取代原本过于分割的设计。
新的空间布局以两条水平轴线为基础,按照线性且连续的方式划分区域,同时尊重建筑的结构框架。该公寓位于一个有三面外墙的角落,除公共卫生间外,所有房间都能享受穿堂风和自然光。
基础设施 —— 厨房、洗衣房和卫生间 —— 被集中在一个核心区域。这使得其余空间得以释放,并形成了视觉上的连接:厨房直接通向第二间卧室,而这间卧室同时也用作办公室。这种布局形成了一条贯穿整个公寓的视觉轴线,从前外墙延伸至后外墙,增强了整体空间的开阔感。
内部区域的划分主要通过木工实现。木质储物柜界定了不同功能,在各区域之间形成通透的界限,同时容纳了必要的设备,最大限度地减少了建筑元素的存在感。原有镶木地板得到修复,既保留了建筑的材质记忆,也有助于空间在视觉上的连贯性。
照明系统由 QWE 工作室专为这套公寓设计。所有灯具均为定制,遵循模块化和标准化原则,采用金属型材和可调节 LED 灯。这种解决方案能够根据使用场景和一天中的不同时段调节光线,并且巧妙地融入建筑和木工设计中。
除了照明,所有固定家具,如嵌入式储物柜和台面,在设计时都融入了多种功能,例如沥水架、垃圾桶和隐藏式壁龛,避免了设备外露,使各区域看起来连贯且无遮挡。