形似日本传统鸟居结构极简平衡的美甲沙龙店设计
Aug 31 , 2025 |
Views :
1,069
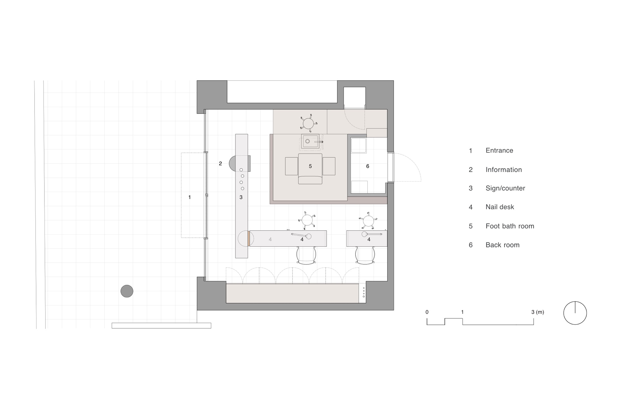
这家美甲沙龙店设计开设于大阪市本町区域,由 4HER 公司(4HER inc.)规划设计。项目充分利用一层临街的优质区位,打造出一家兼具美甲服务与 4HER 自有护肤产品销售功能的门店。
建筑立面上格外突出的长方体,既是面向街道的店铺标识,又同时承担前台接待与产品展示的功能。该长方体在顾客就坐的视线高度处遮挡外部路人的视线,同时保留上下空间的通透感 —— 既保证了空间的连贯性,又实现了沙龙内部私密性与开阔感的双重平衡,成为划分室内外空间体验的核心边界。
这款表面采用水磨石抛光工艺的长方体,由两根支柱支撑:一根是表面粗糙的石柱,另一根是外敷 2 毫米厚铜板的铜柱。二者与长方体共同构成的结构,形似日本传统的 “鸟居”。
其中,位于右侧深处的铜柱还兼具美甲桌桌腿的功能,与沙龙的服务操作区形成立体的空间关联。透过长方体向内望去,可见一处 “盒状” 空间,内部是配备专属足浴设施的私密包间。该 “盒体” 的隔断采用灰褐色灰泥材质,与地面材质保持一致,且隔断高度设计得较为低矮,避免在室内产生压迫感,最终营造出一处可让人从容享受时光的舒缓空间。
4HER 美甲沙龙的核心理念是 “极致简约”。这一设计主张从建筑立面便开始体现 —— 通过整合多重功能,让空间回归本质。当顾客跨越这处极简长方体构成的边界时,便能预感到即将开启的高品质体验,进而不由自主地想要踏入深处,感受这个独特沙龙空间的魅力。