在热带雨区编织社区中心设计的呼吸网络混凝土绿洲
该社区中心设计是为了振兴塔巴斯科州贾尔帕德门德斯的公共生活,建筑团队为墨西哥城市发展和住房部(SEDATU)设计了一项城市总体规划,对该市最具代表性的公共空间进行了改造,包括 “El Campestre” 休闲公园及其内的社区发展中心。在建筑师贝尔纳多・金扎诺斯(Bernardo Quinzaños)的带领下,该项目致力于改善体育和娱乐基础设施,推动城市环境的全面更新。
初步诊断显示,公共空间处于严重失修状态,各级社会援助设施明显缺乏。此次改造旨在改善生活条件,减少设备和公共区域的不足,并重新激活当地经济。
“El Campestre” 休闲公园已成为社区互动和娱乐的重要场所。其设计包含一个带有交叉拱门结构的中央 pavilion( pavilion: Pavilion 在此处指公园内的多功能建筑或凉亭),它不仅是一个雕塑元素,还可用于举办城市社交和文化活动,如一年一度的 “布蒂法拉香肠节”、音乐会和展览。这个空间已转变为一个多功能的聚会点,非常适合非正式活动和重要庆典。
公共空间的设计旨在与 pavilion 的标志性拱门和柱子序列相结合,连接体育区域,并在塔巴斯科多雨的热带气候下提供一个适宜居住的庇护所。其结构除了提供遮荫外,还包括一个阶梯式混凝土基座,可作为体育赛事观众的座位,为人们提供一个舒适且免受恶劣天气影响的空间。
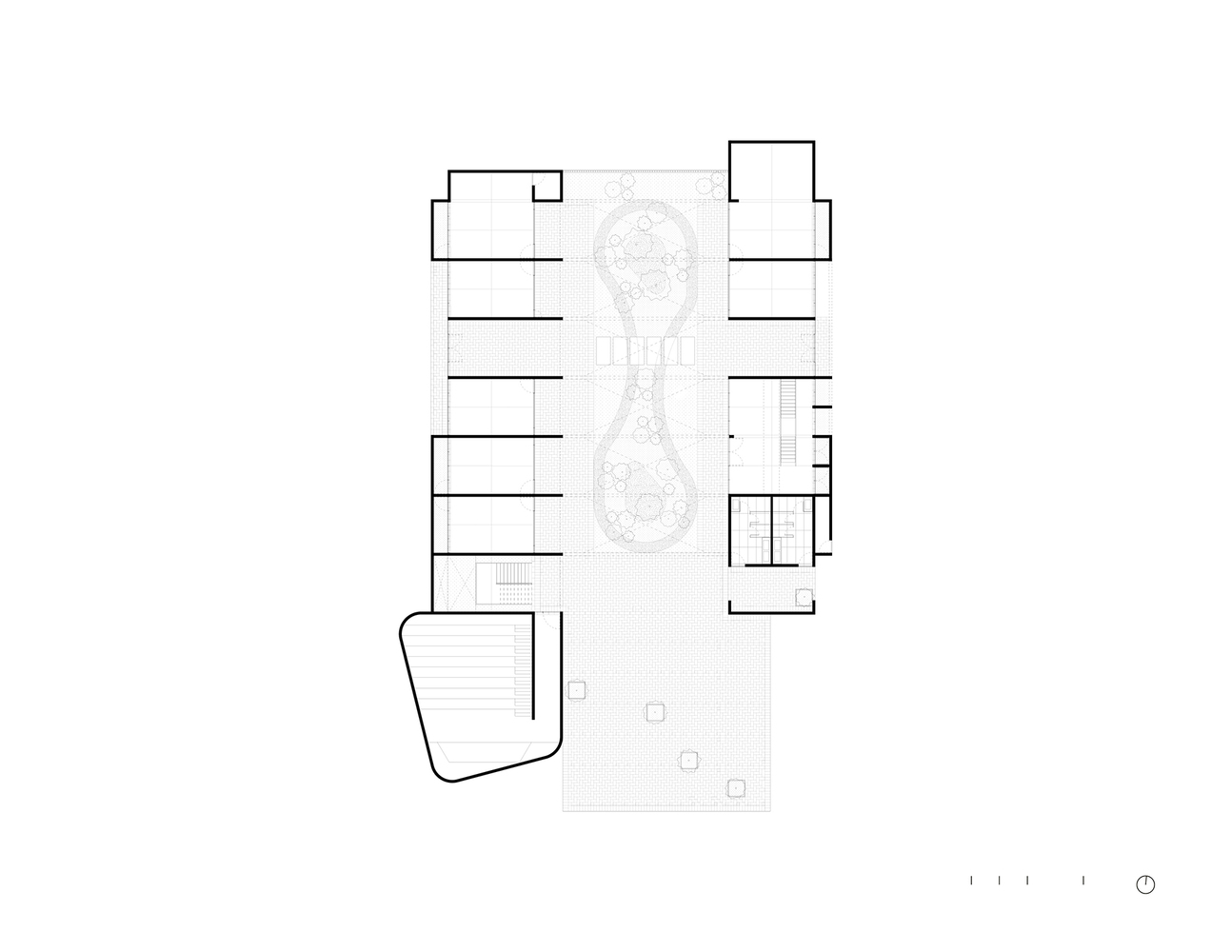
公园内的社区发展中心是一个文化和教育空间,为当地社区提供包容性发展机会。该项目被构想为一个可居住的雕塑作品,其建筑功能包括工作室、多功能室、图书馆、礼堂和行政区域。该结构由八块带有半圆形拱门穿孔的巨大混凝土板组成。这些穿孔为室内花园创造了必要的空间,室内花园起到了城市绿洲的作用,并营造了宜人的微气候。这个中央花园是该项目的核心,提供了一个充满活力的空间,并使人们从建筑内部可以欣赏到有趣的景观。
该综合设施的设计通过使用橙色调的着色混凝土,力求与城市的城市环境和谐融合,这种颜色让人联想到历史中心主拱廊栏杆中的当地石材。该建筑代表了与当地社区的真正知识交流,将设计技术与手工工艺相结合,丰富了塔巴斯科景观的建筑记忆。通过雇佣当地工人,不同的建筑技能相互交织,加强了作品与周围环境的联系。这一参与过程播下了新的建筑语言的种子,同时在社区内培养了成就感、自豪感和认同感。
由 “El Campestre” 休闲公园和社区发展中心组成的综合设施为贾尔帕德门德斯的居民提供了一个共存、娱乐和发展的空间,促进了包容性和公民参与。该项目已成为该市的标志性象征,也是当地人和游客的参考点。