向历史和传统致敬将功能可持续性和独特起伏形式融为一体的办公楼设计

里克特中心办公楼设计体现了公司的活力和社区导向。由 Zoboki Design and Architecture(ZDA)设计的新里希特-格登总部标志着公司新时代的开始。这座建筑不仅向里希特的历史和传统致敬,同时也是现代建筑的杰出典范,将功能性、可持续性和独特的形式融为一体。里希特的传统和愿景–里希特中心位于公司在匈牙利布达佩斯的历史生产基地,几十年来不断扩建。该公司遵循深思熟虑的土地利用战略,在振兴原有厂址的同时,根据 ZDA 20 年前制定的长期总体规划逐步发展。新大楼位于中心位置,毗邻化学研究和办公大楼,将公司高尚的过去与未来的发展联系在一起。












概念的三大支柱。建筑设计理念基于三个主要原则:
– 功能性: 设计过程的最初阶段侧重于室内空间的塑造,以最大限度地提高员工的效率和福利。
– 创新性: 建筑的形式、外观以及所使用的现代建筑技术和材料都体现了公司的价值观和面向未来的性质。
– 适度: 建筑外观优雅精致。材料的使用和外立面的设计既现代又永恒。
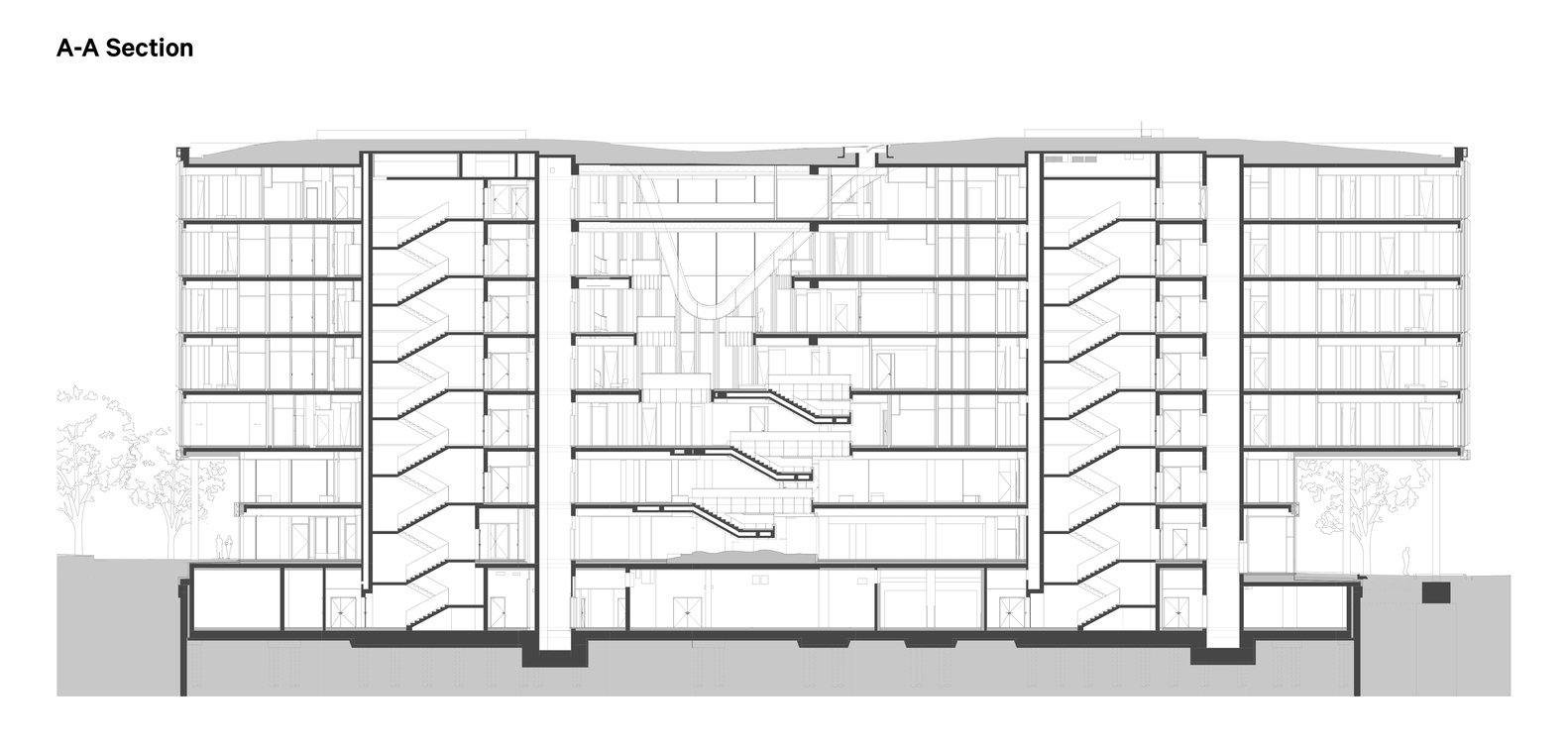
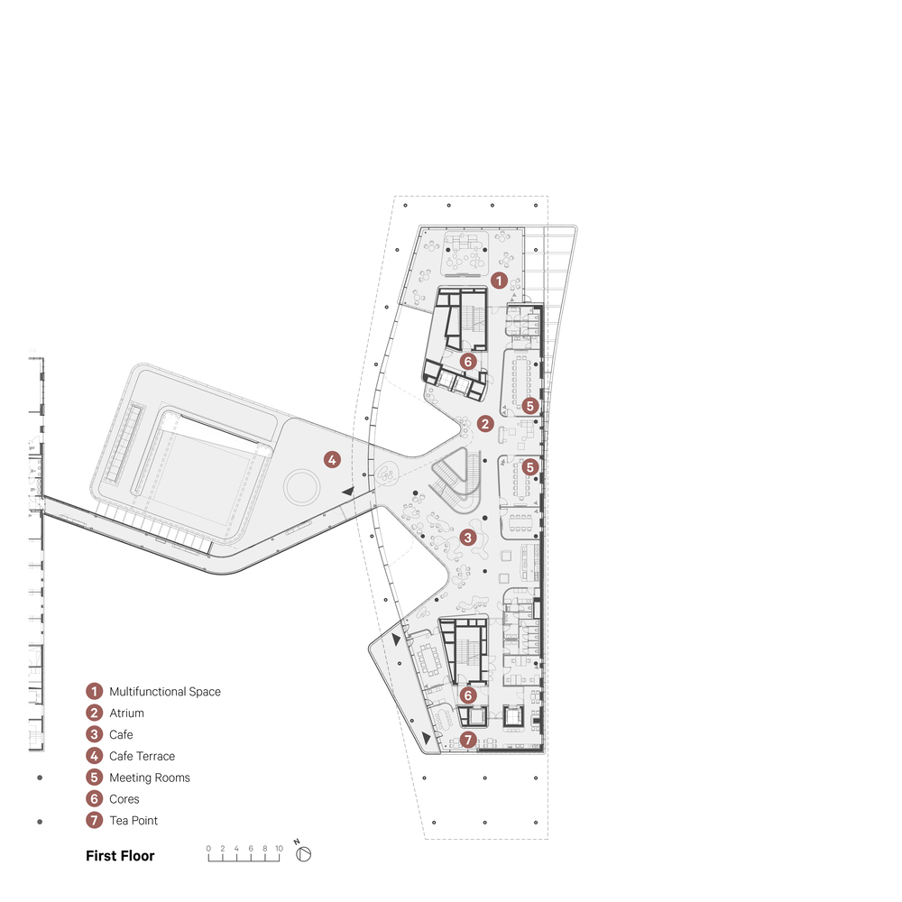
建筑设计理念旨在将最高级别的内部功能与独特的外部外观相结合。新中心与同样由 ZDA 设计的 2007 年化学研究和办公楼之间的联系通过会议单元得以确保。两座建筑的中心空间通过一座宽敞的桥梁连接起来,在功能和象征意义上将研究和企业管理融为一体。














标志性的外观和内部设计 – 外立面反映了研发的两个基本要素:发明和严格的规范。每个元素都是基于规则的系统的一部分,但它们都具有独特的形式。从远处看,建筑就像一件统一的艺术品,而从近处看,创意和精密的细节则一览无余。构成起伏外墙的百叶窗都是独一无二的,但它们又遵循统一的规则,从而实现了美学和结构上的一致性。为了实现这些精湛的造型,建筑师和工程师之间必须开展一种基于参数工具的新型合作。起伏的造型贯穿室内外空间。这种流动感也体现在建筑的中央大空间中:精湛的楼梯结构不仅用于流通,也是交流和会议的场所。克服设计和施工方面的挑战–创建宽敞的公共空间需要开发几个大跨度结构,这从结构角度来看具有挑战性。大楼的钢梁和玻璃支柱尺寸巨大,需要采用特殊技术才能实现。此外,还必须克服可持续性方面的各种技术挑战,例如大面积表面所吸收的热量。为了确保理想和人性化的室内舒适度,特殊和精确的设计是必不可少的。






