以极简工业为壳包裹手工温度与革新的烘焙坊设计

该小型烘焙馆设计在墨尔本 Dover 街,Studio Round 为 Baker Bleu 设计的 Cremorne 旗舰烘焙坊,以 “极简工业风为表,手工烘焙魂为里”,构建了传统与革新的对话场域。设计摒弃过度装饰,用再生铝 “气孔” 饰面、水磨石地面与定制钢柜,将 “天然酵母的肌理”“可持续理念” 与 “高效运营” 融入空间,让深色外壳面包、百吉饼等手工烘焙品成为绝对主角,既致敬古老烘焙传统,又以进取姿态诠释现代烘焙空间的可能性。



天花与立面大量使用再生铝面板,面板表面复刻天然酵母发酵形成的不规则气孔纹理 —— 这种工业化生产的再生材料,因 “气孔” 肌理被赋予手工烘焙的温度。铝面板不仅是视觉焦点,还具备实用功能:天花的铝面板柔化空间声学效果,减少烘焙坊内人群嘈杂声;立面的铝面板则隐藏服务管线,让空间保持极简整洁,同时传递品牌 “可持续” 理念(回收材料减少生产废料)。



再生铝的冷硬工业感,与温暖的灰色水磨石地面形成材质对话 —— 水磨石的稳重肌理中和了金属的疏离感,为空间奠定 “冷静却不冰冷” 的基调。这种 “工业 + 自然” 的材质组合,恰好衬托出手工烘焙品的温度:深色外壳面包的焦香、百吉饼的麦香,在极简材质背景下更显突出,让顾客的注意力自然聚焦于 “食物本身”。



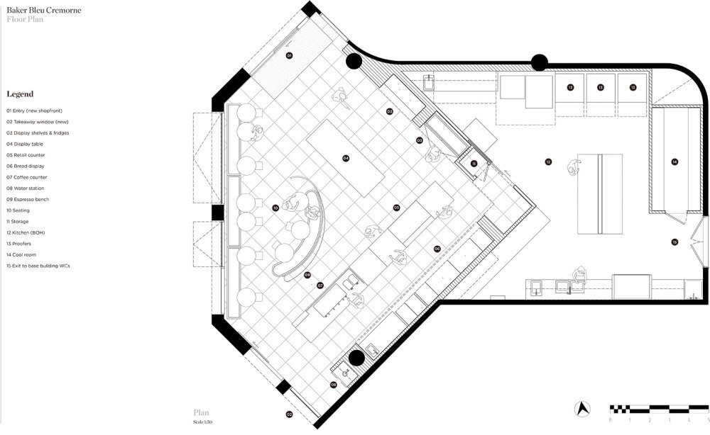
L 形柜墙框定出中央面包展示区与嵌入式数字菜单屏,顾客进入空间后,会沿柜墙自然走向主柜台的四个收银点,避免动线交叉拥堵。中央设置一张大型美国橡木展示桌,整齐陈列零售产品,顾客可在取餐、等待时随手浏览,既丰富停留体验,又提升附加消费可能;L 形柜墙不仅是 “动线引导者”,更是 “功能分隔线”—— 一侧是面向顾客的零售 / 咖啡区,另一侧是后方商用厨房。柜墙的通透设计(局部留空与玻璃隔断)让顾客能隐约看到后厨烘焙过程,增强 “手工制作” 的信任感,同时避免厨房油烟与噪音干扰前场体验,实现 “视觉连通、功能分离” 的理想状态。



嵌入式酥点展示区紧邻咖啡操作台,刚出炉的酥点带着热气直接陈列其中,玻璃展柜保持适宜温度,既保证食品新鲜,又让 “热气腾腾” 的烘焙场景成为吸引顾客的活广告;悬挂货架采用精细折叠的镀锌钢板,极薄的边缘厚度减少视觉遮挡,货架上的烘焙产品如同悬浮于空中,既节省地面空间,又强化 “极简美学”,让陈列本身成为一种设计。堂食区被设计成内凹的座席凹室,与热闹的零售区形成 “动与静” 的对比 —— 凹室设有可向街道开启的遮阳窗,晴天打开时,街道景观与自然光线涌入,让堂食成为 “室内外交融” 的体验;座椅组合兼顾灵活与舒适:折叠镀锌钢长凳搭配工字梁底座,工业感十足;弧形卡座则兼具 “座位” 与 “浓缩咖啡吧” 双重功能,顾客可独自在此享用咖啡,也可与朋友小聚,满足不同场景需求。柔软的织物靠垫、实木凳子与美国橡木桌面,为工业风空间注入柔软触感,让停留更具舒适度。



再生铝、回收钢材等可持续材料的使用,并非单纯的 “环保标签”,而是与品牌 “推广可堆肥材料、减少废料” 的运营理念一脉相承。空间设计中没有多余装饰,减少材料浪费;嵌入式展示区、多收银点等设计,提升运营效率的同时降低能源消耗,让 “可持续” 贯穿 “设计 – 运营” 全流程;作为品牌旗舰坊,设计不再局限于 “展示与销售” 的基础功能,而是通过 “可视化工艺”(气孔铝面板)、“沉浸式体验”(内凹堂食区)、“高效运营”(L 形柜墙动线),实现品牌从 “传统烘焙店” 到 “烘焙文化体验地” 的进化。这种 “有思考的进化”,让空间不仅服务于当下消费,更承载品牌未来发展的可能性。

Baker Bleu Cremorne 烘焙坊的成功,在于设计没有 “为极简而极简”,而是让 “极简” 成为 “衬托手工烘焙、服务品牌理念” 的工具。再生铝的气孔、L 形柜墙的动线、内凹堂食区的庇护感,每一处细节都在 “效率与体验”“传统与革新”“工业与手工” 之间找到平衡,让空间成为品牌的延伸 —— 既传递手工烘焙的温度,又展现现代烘焙品牌的进取姿态。