混凝土裂出光缝U 型玻璃织出透光帘破茧而出的公寓设计
起初,客户想卖掉这套公寓,然后在比这栋板式住宅 “更好” 的建筑里买一套新公寓。不过,这套公寓位于布拉格广义市中心的绝佳位置,地处日兹科夫新旧城区的交界处,因此我们工作室获得了改造它的机会。改造的核心是打造一个适合家庭生活的开放式空间,同时也要为每个人提供保有隐私的可能。在外观上,客户唯一的要求是使用天然材料、打造一个室内主导元素,并大量运用绿植。基于对投资者想法和需求的了解,以及对空间可能性的评估,“瀑布边” 的设计故事开始在我们脑海中成形。
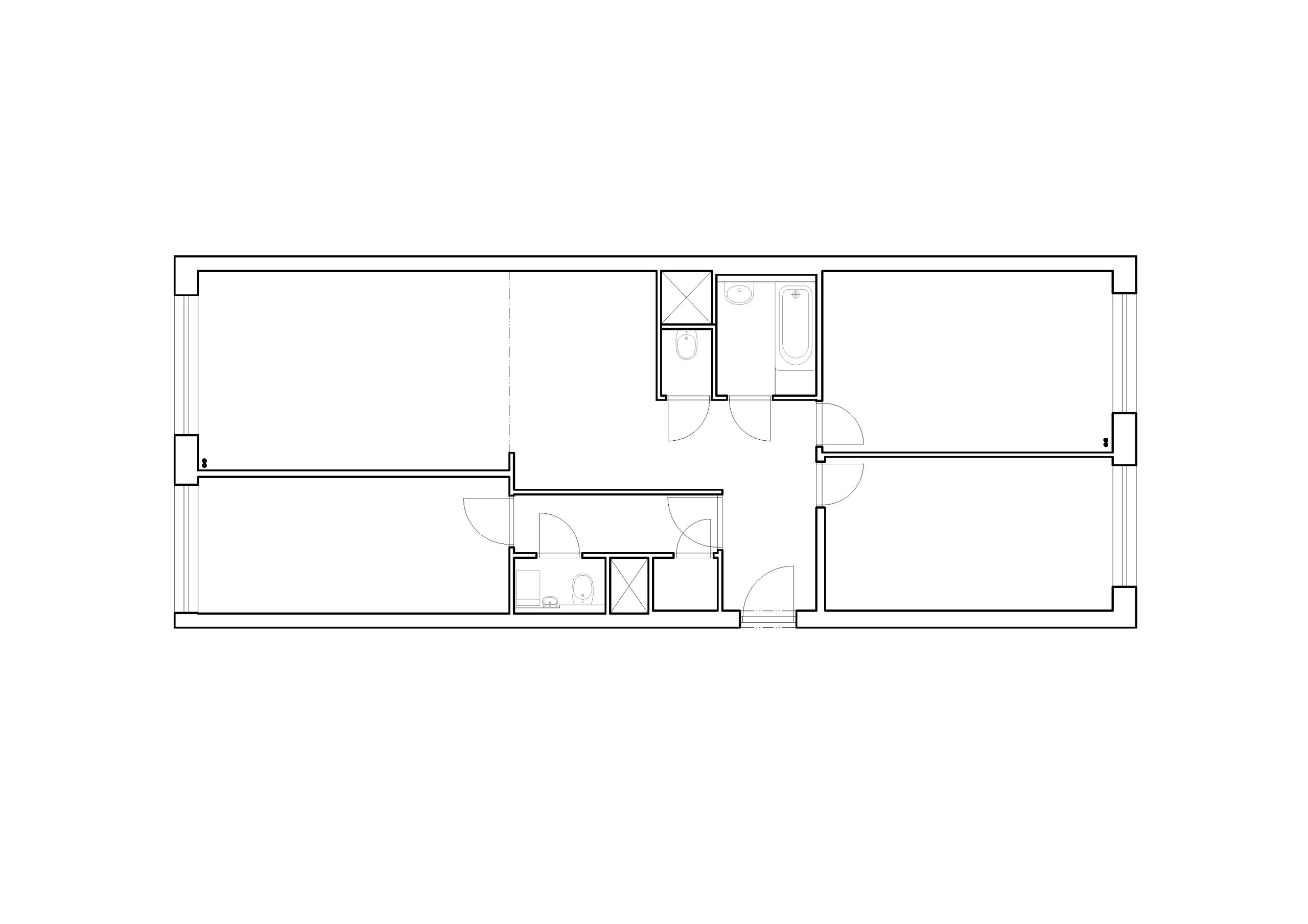
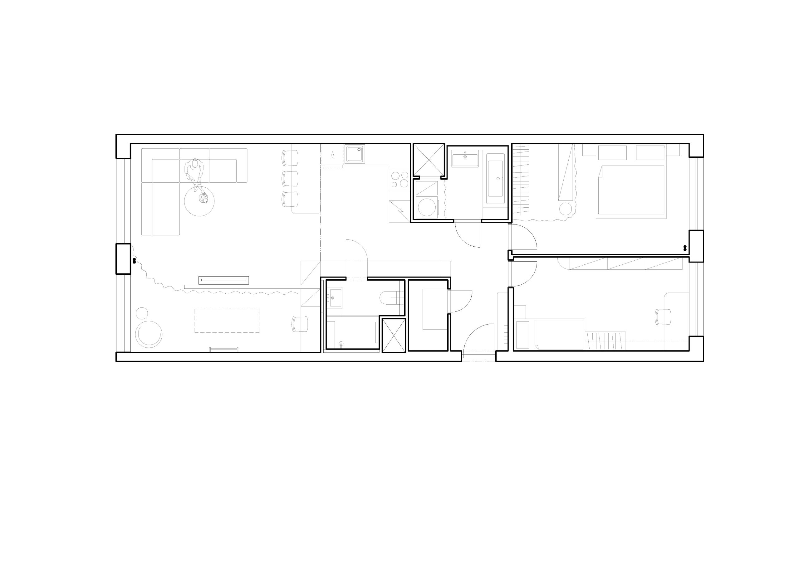
我们扩大了主要起居空间,并通过拆除两个房间之间的隔断,将其与另一个房间部分连通。但与此同时,在一个新的(移动后的)位置,我们设置了一道新的 U 型玻璃隔断。这些玻璃面板在一定程度上实现了两个房间的光线和视觉连通,但同时也能隔开空间,为用作书房和健身区的房间提供隐私保护。这种扩大空间和增强通风的原则也应用在了公寓的卫浴区域。我们打造了两个舒适的浴室,一个是女士浴室,配有浴缸和隐藏式洗衣机;另一个是男士浴室,设有淋浴角和马桶。
我们决定保留混凝土面板的自然外观,让其与 U 型玻璃块的天然绿调相互呼应,共同营造出水与岩石的意象,对我们而言,这就如同岩石间的瀑布。而大量花卉的运用、丰富的色彩搭配以及精巧的造型设计,更是完善并强化了这种 “自然场景” 的印象。我们还通过使用木材、石材、水磨石地板、镜子和飘逸的纺织品,进一步烘托预期的氛围。现浇水磨石地板的颜色取决于公寓的整体色彩方案,以绿色、粉色、米色和灰色石材为基础,使所有元素连成一个统一的整体。
我们有意通过室内纺织品来柔化混凝土的坚硬感,不仅在 U 型玻璃隔断旁设置了窗帘(以便进一步保障隐私),还在卧室设置了窗帘,用来分隔新打造的更衣室。此外,我们还通过墙面绘画和装饰来进一步美化混凝土墙面。在室内打造充足的储物空间自然也是重点。除了前面提到的更衣室,还有 “环绕” 浴室的嵌入式衣柜(一个有趣的设计元素是,浴室的隐藏门与衣柜融为一体)、新扩大房间内的储物空间,以及书房里带书桌的衣柜。