混凝土裹着花开光影在裂缝里走自然诗意的花店设计
混凝土以恒久的姿态,包裹着每一次花开的悸动。该花店设计的空间不言,却有无数故事流转于其中。光影是无形的笔墨,混凝土是沉默的纸,而花,是那一笔最灵动的诗行,它短暂地停驻,绽放、凋零、再生,最终,归于时间的沉静之中。
花从泥土中生长,短暂而绚烂,混凝土自矿物凝结,沉稳且长久。Geemo希望,在Kuu这方天地里,二者相互交融,让冷与暖、柔与硬、瞬息与永恒,在光影之间产生对话。
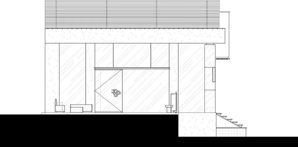
简洁的构筑方式,只为静静地衬托花的绽放,让自然的气息在坚实的肌理之上自由蔓延。 城市的山地肌理,构成独特的重庆天际线。密集叠加的高楼,层层递进,纵深有致。我们以几何的语言抽象这份景观,将前景、中景与远景拆解重组,以材质板片堆叠交错,重构出秩序与节奏共存的空间。

整个空间,如同一场理性的方块拼贴。每一块体块既是结构的表达,也成为空间的界定与引导,它们在交错中围合,在张力中释放,在理性秩序下自由生长,保留着山城独有的复杂性与生命力。
“桥”,延展步履的节奏,横亘两个空间,纤细的栏杆削弱了桥体的重量感,仿若悬浮般。让不同材质的体块产生联系,构成了空间独特的立体形态。上与下,动与静,借由“桥”的存在而相互交汇,行走其中,恍若穿梭于时间缝隙,等待花朵在静谧中悄然绽放。

综合冷藏和仓储功能的核心筒安静地伫立,如山之基石,支撑着整个场域,步道绕山而上,弯曲的扶手如云朵般轻盈萦绕。钢制的深色阶梯是通往上楼的路径,只需一条铁链轻轻拦住,悬浮于空气之中,不做绝对的阻隔,而是暗示着一步之遥的界限。它既坚固又随意,在无声之中,与空间的冷静形成微妙的张力。
混凝土在浇筑时顺应流动,凝固后接受裂纹与气孔的馈赠,每一道痕迹,皆是时间沉淀下的语言。日光掠过,粗粝的表面投下细碎的影,光影在裂隙间游走,仿佛述说着尚未消散的余温。凿与敲,叩击之间,肌理渐渐浮现,或深或浅,皆是不规则的诗意。粗粝之上,微光跳跃,指尖触碰,能感受到混凝土之下掩藏的力道,也能窥见时光落下的斑驳影子。
阳光穿透玻璃,落在混凝土墙上,一天之中,它缓缓挪移,从清晨的凌厉到午后的柔和,再到傍晚的金黄。光是最无形的建筑师,它雕刻着墙面,也塑造着空间的层次,使坚实的墙体,在流动的光影之下,变得轻盈且生动。
通透的玻璃幕墙,如湖面般沉静,映照着花的影子,也倒映着远方的天空。它隔离了内外,却不阻断视线,让空间保持通透,使阳光成为无形的构造,赋予混凝土以轻盈之感。在这方寸之间,流动的不止是光,还有风的低语、时间的痕迹。
定制金属单臂射灯安静地垂落,投下温润的光晕。墙面的肌理温柔地与坚硬交错,仿佛在低语:“这里的每一处,都是留白,也是表达。”好的空间一定可以蕴含巧思,为混凝土墙脱模后留下的孔洞赋予新生的力量。无需刻意为之,随意的状态下,为日常的使用提供便利。
室内的花艺与室外的树影斑驳交错,彼此辉映。随风微微摇曳,光影之间,建筑不再是冰冷的载体,而是承载自然的一部分,让风、花、树叶,皆成为空间的诗行。黄昏落幕,灯光渐次点亮,空间的氛围也随之转换。日间的理性,隐匿在光影交错之下,夜晚的温柔,缓缓铺展。混凝土的肌理,在暖光映照下更加深邃,如同沉静的岩石,包裹着温暖的呼吸。
混凝土以恒久的姿态,包裹着每一次花开的悸动。空间不言,却有无数故事流转于其中。光影是无形的笔墨,混凝土是沉默的纸,而花,是那一笔最灵动的诗行,它短暂地停驻,绽放、凋零、再生,最终,归于时间的沉静之中。