让红砖烟囱的历史温度与毛孩子们活力气息交融共生的宠物空间设计

该宠物店设计在西安北池头的量子晨商业街区,红砖烟囱与水塔的剪影,仍保留着太阳锅巴厂的工业记忆——这里曾产出承载无数西安人儿时味觉的锅巴与牛肉酱,如今则在城市存量更新的浪潮中,蜕变为聚集Z时代的潮流地标。MOS木石设计在此接手的BIG BILL项目,正是要在这片“新旧共生”的土壤上,为城市养宠群体打造一处集社交、零售、洗护于一体的人宠生活空间,让红砖烟囱的历史温度,与毛孩子们的活力气息交融共生。





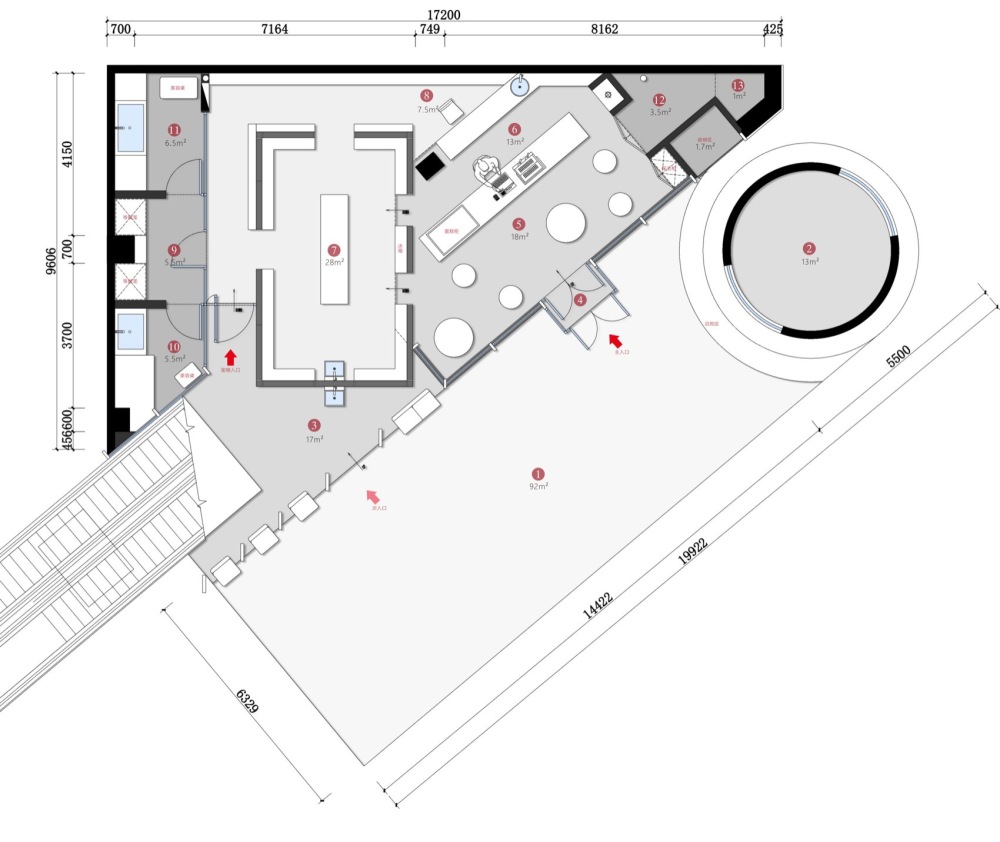
BIG BILL的选址极具“矛盾性”:紧邻量子晨保留的标志性红砖烟囱,数十米外便是水塔,工业遗迹带来的场所记忆得天独厚,但烟囱与基地过近产生的逼仄压迫感,也成为设计的第一道难题。更棘手的是场地本身的先天缺陷——原始地块呈三角形,一侧扶梯的存在又使其形成带矩形缺口的不规则形态,这种“难以利用”的空间特质,让铺面长期处于闲置状态。品牌主理人的需求则清晰而具体:作为围绕人宠社交平台创立的新品牌,首店需解决城市养宠群体的社交与休闲痛点,核心功能必须涵盖三大板块——人宠休闲社交区、宠物用品零售区、宠物沐浴SPA区。如何在不规则场地中平衡功能需求与空间体验,同时让新空间与红砖烟囱的历史气质和谐共处,成为MOS木石设计需要破解的核心命题。





设计团队的破局思路,始于对“历史尊重”与“空间重构”的双重考量。面对红砖烟囱这一核心场域元素,设计没有选择回避,而是以“材质呼应”建立情感联结:外立面采用陶土红砖拼装门头,外延地台则铺设磨砂面红砖,通过与烟囱材质的统一,消解了建筑与遗迹间的割裂感和压迫感,让新空间如同从老厂区中自然生长而出,实现了“新旧对话”的第一步。针对不规则场地的重构,一个“方盒子”的置入成为关键转折。设计团队通过与街区物业协商,获得了扶梯下方区域的使用权——拆除原有玻璃幕墙后,扶梯下方的室外空间与室内形成纵向场域,这一契机让“置入方盒子”的构想落地。这个方盒子承担着三重核心作用:一是增加使用面积,满足多业态功能需求;二是将混乱的三角形场地划分为三个规整区域,彻底解决锐角不适与转折生硬的问题;三是朝向街区的外立面成为品牌“第二展示面”,强化了空间的标识性。





方盒子的介入,让三大功能区的划分清晰而流畅,且摒弃了传统隔墙的生硬限定,形成可自由渗透的流动空间。连接主入口的区域,以通透玻璃幕墙面向街区,成为人宠社交休闲的核心场域——这里摆放着适配人宠共坐的柔软家具,阳光透过玻璃洒入,既为宠物提了舒适的活动空间,也让室内的热闹场景成为吸引路人的“活广告”,傍晚时分,爱狗人士在此交换养宠心得,毛孩子们穿梭追逐,构成量子晨街区最温暖的风景线。方盒子本身则成为宠物零售区的最佳载体——四个立面的内外侧均可利用,工字钢与木构搭建的骨架搭配透明PC波浪板,让空间既轻巧又富有质感,彩色搁板的点缀则增添了俏皮气息;压低的顶面与下沉的地面强化了盒子的边界感,让零售区成为独立又不孤立的“小天地”。最内侧的区域被规划为宠物洗护SPA区,扶梯下方开辟的专属通道与入口,让这里拥有了极佳的私密性与独立性,避免了社交、零售动线的干扰。更巧妙的是,扶梯下方的消极空间被充分激活:泊狗处、宠物清洗池的设置,让原本闲置的角落成为公共友好的品牌窗口,既实用又强化了“人宠友好”的品牌理念。





空间的温度不仅体现在功能布局中,更藏在本土匠心与细节设计里。方盒子的建构选择西安本地易得的工字钢、木构与PC波浪板,降低了运输成本与环境影响;导台为宠物制作鲜食的设计、随处可见的宠物饮水区,精准呼应了养宠群体的核心需求。这些细节与空间中融入的墨西哥新兴艺术家手工艺品一起,让BIG BILL不仅是一个商业空间,更是承载人宠情感联结的“温暖容器”。






BIG BILL的设计成功,在于它没有割裂场地的历史记忆,也没有牺牲现代功能需求,而是以“尊重、重构、共生”的理念,在老厂区的工业肌理中,为Z时代的人宠生活方式找到了落点。红砖与方盒子的对话,历史与潮流的交融,人与宠物的互动,让这个空间超越了“商业场所”的属性,成为连接城市记忆、养宠群体与自然情感的纽带——在红砖烟囱的注视下,这里每天都在上演着关于陪伴与温暖的故事,也为城市存量空间的更新,提供了“功能与情感双重满足”的全新可能。











