工业材料再生曼谷仓库的变形loft风格创意工作室设计
该仓库改造的loft工业风创意工作室设计场地位于曼谷的纳克尼瓦特街,这里是一片商业区,分布着许多老旧仓库和商铺,且建筑紧邻街道边缘。此项目属于 “建筑中的建筑”—— 我们在场地一端现存的大型仓库内新建了一栋建筑,而仓库其余部分已作为设计师现有的办公室、工作坊、储藏区和装卸区。客户的需求之一是重新设计仓库的街面立面,这为项目增添了复杂性,因为我们既要处理街面立面的建筑尺度,又要应对新建部分形成的 “内部” 立面所要求的更私密的尺度。
我们决定探索一种非常常见的工业材料(波纹金属板),但以更精致、考究的方式加以运用 —— 尤其是当金属板与地面相接时(转化为座椅 / 桌子),或是在建筑顶部与天空交接处,通过弯曲处理让投射的阴影更显柔和。立面由三个不同的构图和功能部分组成:左侧新建建筑采用通透的展示性立面,中间是主入口,右侧立面的金属板部分覆盖着现有的功能区域。主入口(开口较大,因为还需用于卡车送货)是各部分的交汇点。我们尝试通过长条形、重叠的水平元素(如大型滑动门)从一部分延伸至另一部分,以此建立连接并统一整个立面。
内部立面更显柔和且富有趣味性。我们选择了非常开放的立面设计(由大型窗户和整体表面构成的系统),并覆盖户外半透明窗帘。这种设计既能为工作空间提供隐私保护,又能作为完美的背景,满足工作室在工作中进行各类拍摄的需求。窗帘后方设有两层不同的不透明隔断和玻璃窗开口系统:部分位于窗帘后方,部分与窗帘齐平,形成不同层次的透明度。在立面长度约一半的位置,我们 “打破” 并倾斜了两层的立面平面图,最终营造出更深邃、更复杂的透视效果。
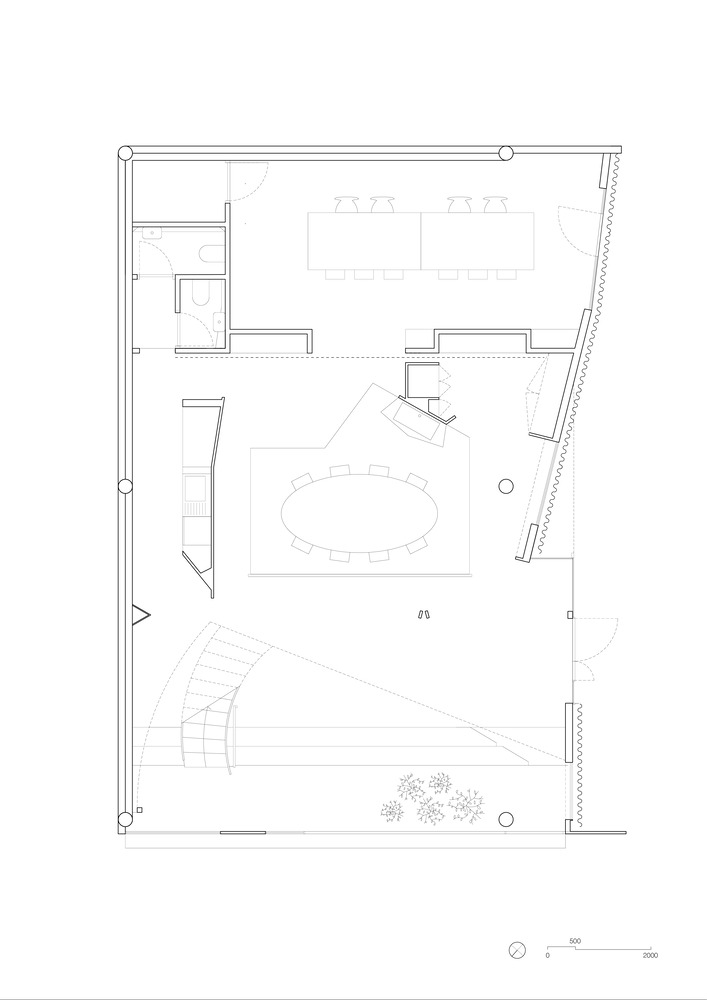
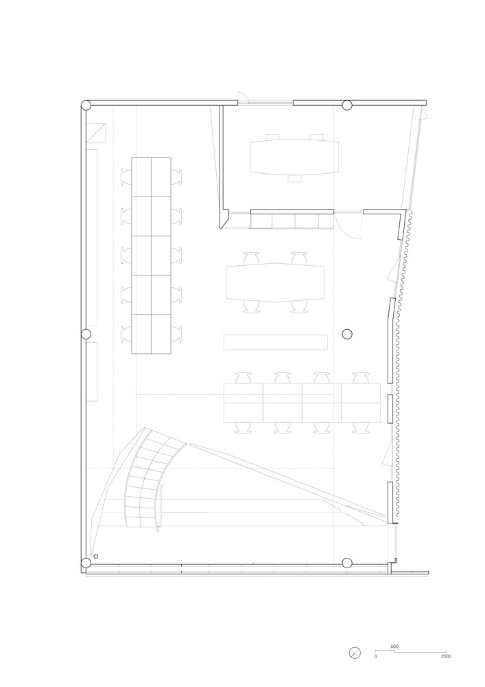
室内空间由两个不同的功能部分组成:一层的工作坊 / 会议空间和二层的办公空间。我们通过抬高的平台将两者连接,该平台可作为 “阶梯式座位区”(用于聚会和活动),同时也是花卉装置的展示窗口。一层剩余的开放空间用于花艺布置、演示和社交活动,其由一系列抽象的悬浮元素构成:一张大型椭圆形桌子、一个不锈钢水槽、一面石材与镜子结合的墙,以及一对反光柱。后方用窗帘遮挡的小房间包含一间会议室和服务空间。
一段小巧的弧形金属楼梯将平台(和一层)与二层的办公空间连接起来。楼梯一侧保留了现有的天窗,以引入自然光。该区域是空间的最高处,其余部分则设有低矮的假天花板,用于容纳所有技术设备和隔音材料。所有桌子和灯具均为定制设计,还有大型的酸黄色橱柜,用于遮蔽主管办公室。整个空间的材料选择简洁(中密度纤维板、胶合板、石膏板、手绘金属和织物),同时我们通过探索细节和各种动态几何形状来增添空间的复杂性。