工业历史与现代设计的交融多面翻转的公寓楼设计

Studioninedots 将 C14 住宅楼设计成一座现代的倾斜仓库,它既反映了其工业起源,也是新兴的布伊克斯洛特哈姆城市地块(Cityplot Buiksloterham)的象征。



在阿姆斯特丹的布伊克斯洛特哈姆,Studioninedots 此前与 DELVA 合作提出城市概念的城市地块区域正逐渐成型。我们的规划将这片废弃的工业场地改造成了一个充满活力且可持续发展的城市街区,在这里,集体价值、本地价值、多样性和韧性成为核心要素。为此,建筑、公共空间和景观共同构成了一个综合系统。



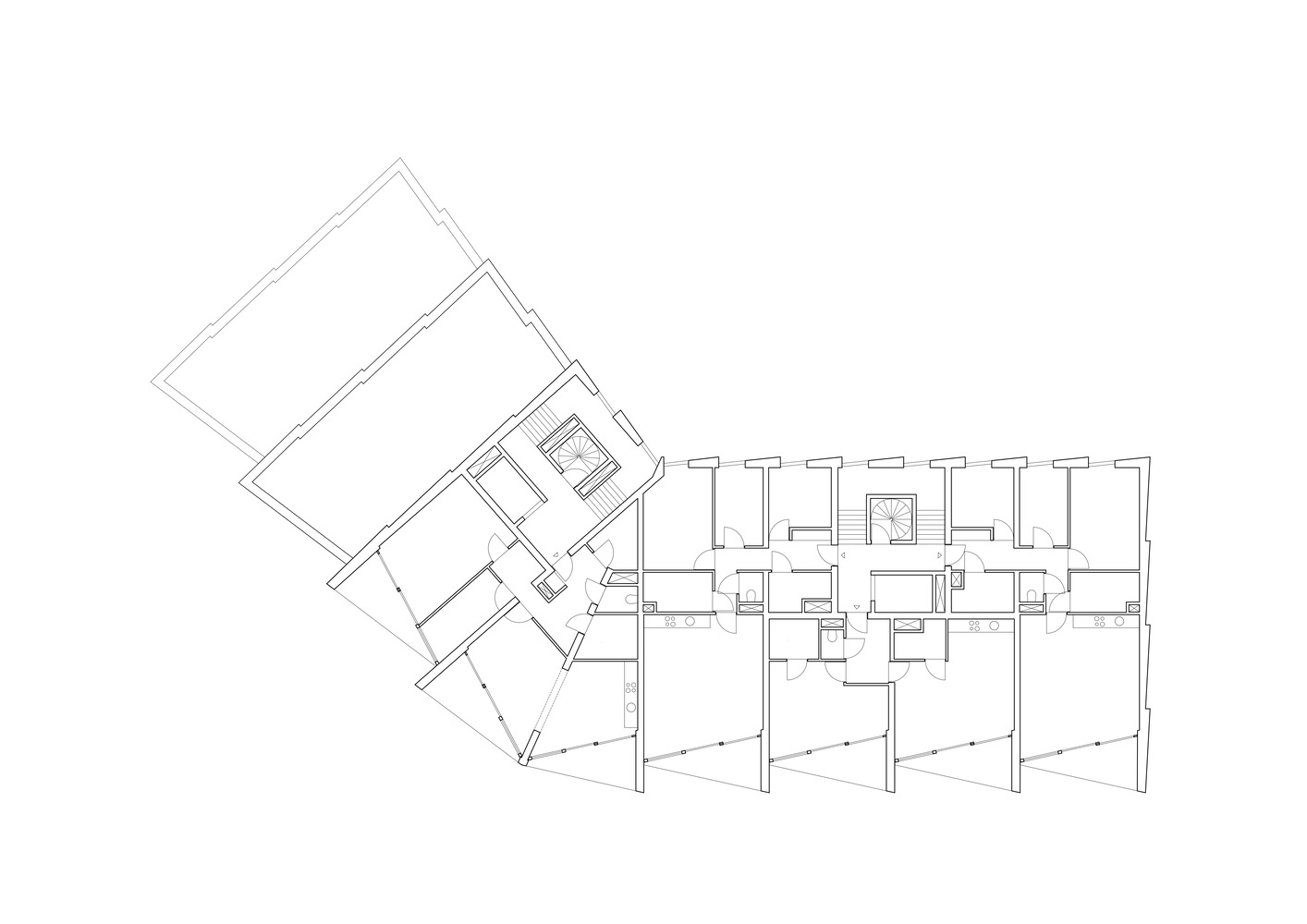
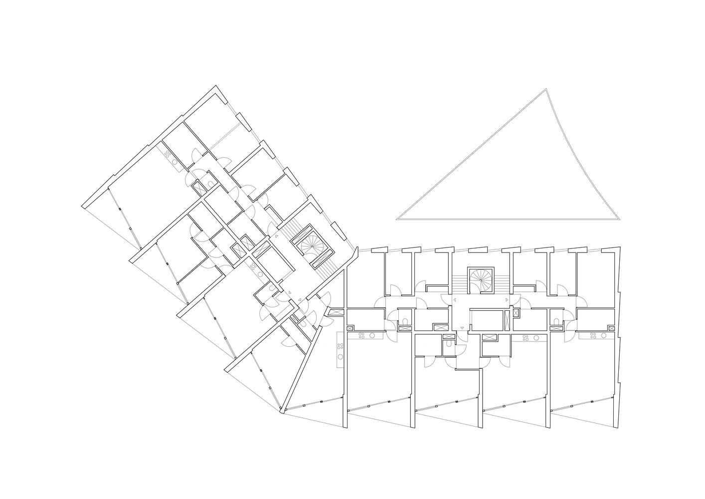
C14 矗立在托尔赫伊斯卡纳尔(Tolhuiskanaal)的滨水地带,宛如一个带有神秘外观的抽象物体,它是布伊克斯洛特哈姆城市地块的最新建筑。我们设计的一个显著特点是其钢质外立面,它同时具备多种功能。参差不齐的阳台排列,一举为新居民创造出了有遮蔽的户外空间,通过大窗户最大限度地引入了自然光,同时也赋予了建筑质朴的特质。


我们将 C14 设想为一座仓库,不过是将其侧面翻转并以现代的方式重新设计。通过这种方式,我们既参考了场地的工业历史,同时也利用了仓库棚顶的功能性。倾斜的结构一方面增强了自然采光,另一方面则形成了阴影,避免了夏季的过度升温,并确保了外立面周围的微气候得到保护。


这个设计理念使我们能够将 C14 所有的户外空间都朝南设置,并面向滨水地带。巨大的玻璃墙将阳台与房屋无缝连接,让自然光和景观涌入室内。


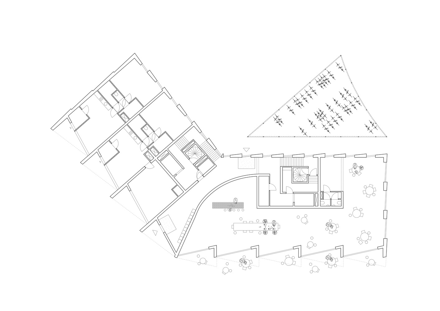
通过将自行车停放区移出建筑,我们在底层为滨水地带的创意企业以及街道上玻璃门面后的住宅提供了空间,这些元素让周围的公共空间全天都充满活力。在统一的户外空间墙后面,是各种不同的住宅,从沿街的底层房屋一直延伸到建筑顶端宽敞的顶层公寓。


C14 是 C 地块上较大的建筑之一,我们在 C 地块上总共正在进行七座建筑的设计工作。C 地块,也被称为托尔赫伊斯卡德(Tolhuiskade),按照我们的城市地块概念进行规划布局,我们利用这一概念将以前的工业和工厂场地改造成新的城市街区,理想的地块尺寸为 100×100 米。


在城市地块上,通常分散在城市各处的不同功能被融合到一个密集的城市社区中。以各自独特的视觉语言设计独立的建筑,确保了建筑的多样性以及该区域独特的身份特征。


在托尔赫伊斯卡德的内侧,C14 因此成为了较小且富有表现力的建筑(如黑色的 C19)的抽象背景。这座有两栋堆叠的两层住宅的建筑是该类型中的首个。从现在起,其他小规模的建筑结构将陆续添加到该地块上。


C14 拥有一层闪亮的马格内利斯(Magnelis)钢表皮,这是一种在焊接熔池中镀锌的金属。这赋予了建筑双重特性,它既能融入天空之中,又能在反射阳光时吸引人们的目光。同时,钢材也让人联想到布伊克斯洛特哈姆的工业历史,并且在未来可被重复利用。

在庭院一侧,我们添加了一个小规模的木质亭子,用于停放自行车和蓄水。这里收集的雨水可供居民再次使用。我们发现木材温暖的氛围与 C14 坚固的钢材形成了鲜明对比,并且很快也会与托尔赫伊斯卡德即将建成的其他建筑形成对比。夜晚,带有板条外立面的亭子像灯笼一样点亮,成为了这个新兴社区中友好的灯塔。