度假花园的蒙太奇用多元功能块构建全天候家庭剧场的别墅设计
Jul 5 , 2025 |
Views :
604
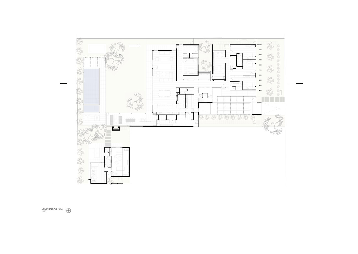
刀锋别墅设计(Blade House)深深嵌入其景观花园中,室内每个角落都与自然保持视觉连通。业主希望打造一个能随成年子女及宾客往来而灵活适应的家,独立翼楼的平面布局确保了这一需求的实现。整体设计的核心是让住宅不背对街道,同时为业主家庭保留隐私与安全感。拆除传统边界围栏后,住宅向外延伸,大方地迎接路人,软化了公共与私人空间的界限。

建筑立面由一系列全高叶片和雪松屏风构成,在为住户提供隐私的同时引入自然光。这些外部元素与景观设计师 Jack Merlo 设计的园林相呼应,强化了亲生物设计在营造健康宜居住宅中的重要性。室内,主套房的大型观景窗将户外景色引入,书房俯瞰私密庭院,3.5 米高的滑动门将朝北的厨房、起居和用餐区向花园完全敞开。这些多样的连接方式使住户在穿行家中时充满探索感。甚至连过渡空间都与花园保持视觉连通,而厨房、餐厅和客厅则更进一步与花园形成物理互动,成为住宅的核心枢纽。
材料选用克制而精致:室内主要采用澳大利亚硬木、石灰华和威尼斯石膏,室外则大量使用石灰华与雪松。花园呈现出轻松的度假氛围,多个休闲区满足不同场景需求 —— 户外餐饮 / 起居区、泳池 / 水疗区,搭配休闲座位、火坑和蹦床,共同构成周全的设计。