叠台绿丛漫过黏土拱廊垂直丛林城市呼吸的公寓住宅楼设计
在越南大城市密集的城市肌理中,小型混合用途开发项目应运而生,以应对典型骑楼的主导地位。理想情况下,这种建筑类型若搭配可靠的商业模式和精心的设计方案,能够释放场地的潜力,不仅让业主和租户受益,也能惠及更广泛的社区。然而,仓促且设计拙劣的项目往往造就了不安全、不舒适且低效的商业建筑。
“丛林住宅” 的设计与建造源于一种不同的愿景 —— 它是对一项富有挑战性要求的大胆回应:在市中心仅十分钟路程、位于一条繁忙街道上、面积仅 300 平方米且朝南的紧凑场地内,融入超过 800 平方米的零售、商业和住宅空间。更复杂的是,当地总规划要求留出 12 米的后退距离,且西南角需切角,以备未来道路扩建。该社区混合了低层住宅和商铺,展现出越南城市充满活力却又略显杂乱的面貌。
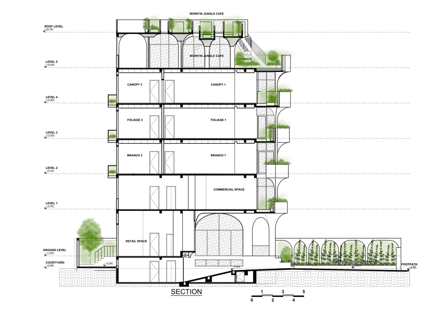
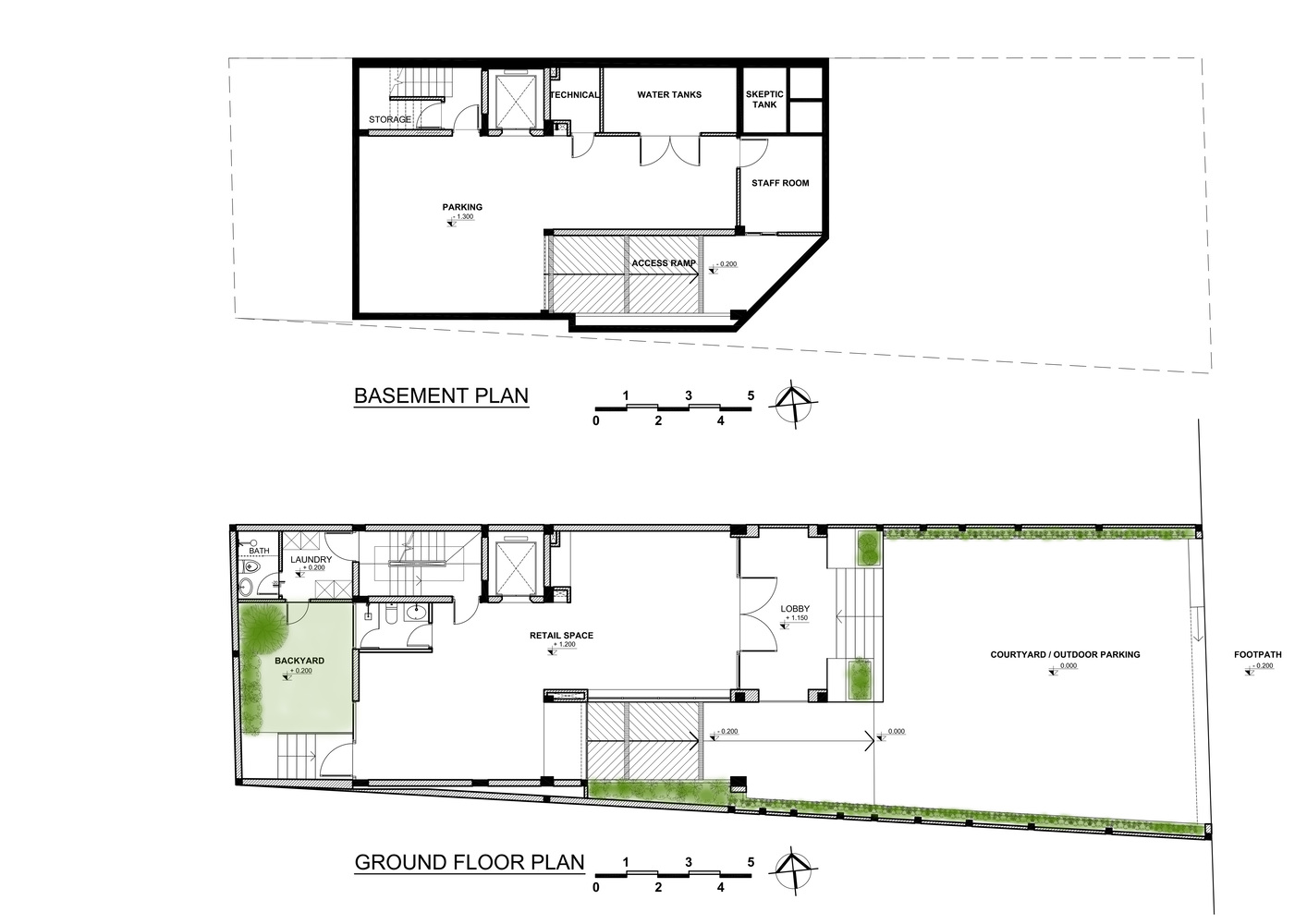
该建筑的功能布局经过精心协调:设有一个 150 平方米的地下室;300 多平方米的零售和商业空间;9 套灵活的一居室公寓(面积为 30 至 45 平方米);以及一个屋顶咖啡馆和联合办公空间。位于后部的垂直交通核心筒和精心规划的服务区域最大限度地扩大了可用面积,无柱布局则最大化了商业空间,部分公寓还可合并以适应未来需求。
“丛林住宅” 的核心是一个独特的设计理念 —— 在城市中心,一片热带森林出人意料地繁茂生长。建筑立面上,众多形状和大小各异的阳台层层叠叠,呼应着自然的随性之美。在越南文化中,阳台不仅仅是装饰,更是遮阳、社交以及室外生活的重要空间。在这里,阳台成为了一个个绿色角落 —— 是种植植物、与人相遇以及与城市进行安静联结的空间。拱形柱、弧形玻璃面板、质朴的黏土色调以及大量的绿植交织在一起,让建筑立面充满生机,让人联想到热带丛林的郁郁葱葱。
在建筑内部,有机的设计语言得以延续。商业空间内部和 9 套温馨的公寓采用柔和的曲线、不规则的形态以及温暖的黏土饰面,营造出一种亲切感与流动性。每套公寓都通向一个或两个绿植繁茂的阳台,模糊了室内与自然的界限。位于建筑顶部的屋顶咖啡馆和联合办公空间,被纤细如树木的柱子以及发光的半透明屋顶所笼罩。一段之字形楼梯通向屋顶花园 —— 这是一个罕见的城市避难所,可将城市全景尽收眼底。这些空间共同营造出一种探索之感,就像在隐藏的城市丛林中,漫步于树下,而后又升至树顶一般。
可持续性并非事后才考虑的因素,而是贯穿整个建筑的隐性存在。宽敞的开口让自然通风和日光充分涌入;雨水通过建筑内类似树木的垂直结构被引导、收集并储存起来,用于灌溉和消防。太阳能加热器、低辐射玻璃、LED 照明以及自动灌溉系统减少了建筑的生态足迹。建筑材料也承载着故事 —— 将本地花岗岩、陶瓷、水泥砖、木材、纺织品和瓷器与纤维板、铝材和石膏等可回收材料相结合。
“丛林住宅” 引发了一种温和的思考:即便在最密集的城市环境中,建筑也能滋养生命、凝聚社区,并重新连接城市与自然,就像一声低语,诉说着建筑依然拥有激发灵感、建立联结并为周遭环境注入活力的力量。