纯粹有序的建筑形态与原始自然植被无序碰撞的民宿设计
Jul 31 , 2025 |
Views :
1,203

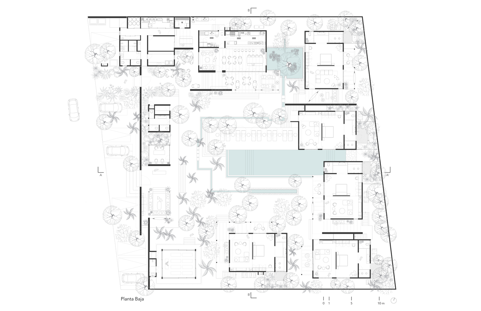
纳博亚民宿设计(Naboa)位于图卢姆(Tulum),坐落在一块 2500 平方米的方形地块上。该项目的设计初衷是打造一座建筑与景观交融的空间,营造出放松舒适的氛围。这一理念通过纯粹有序的几何形态得以体现,与场地中原有的自然植被形成无序与随机的对比。建筑体块围绕泳池和热带花园布局,而泳池与花园则成为整个项目的核心轴线。这种布局赋予了整体空间一种内敛的特质,不仅营造出独特的微气候,保障了私密性,更为项目塑造自身特色创造了理想条件。






酒店共有 10 间客房,分为两种不同类型。底层客房采用水平向的空间布局,通过露台和露天浴室与周边环境形成直接连接。上层客房则呈现垂直向的空间体验,包含一个双层挑高的社交空间和两间带完整卫浴的套房(通过夹层设计实现)。这种设计使得空间开阔通透、通风良好,非常适合图卢姆炎热的气候。







建筑在需要营造私密与内敛氛围时,呈现出封闭厚重的形态;而在需要与景观及泳池区域形成视觉连接的社交空间中,则以通透开放的姿态呈现。接待区被设计为线性亭阁,底部采用混凝土与楚克姆(chukum)材料,顶部覆盖轻盈的木质结构,仿佛漂浮在植被之间 —— 这得益于纤细的支柱与周围树木融为一体的设计。餐厅为双层挑高空间,设有开放式厨房,朝向高出自然地面 1 米的宽敞露台。最后,石灰岩墙体作为空间秩序的塑造元素,划分出不同区域的边界与过渡。







建筑饰面采用天然材料与色调,如木材、石灰岩、洞石和楚克姆。空间布局遵循被动式设计原则,呼应了该地区的乡土建筑风格。在纳博亚酒店,设计追求简洁的解决方案、倡导慢生活的氛围,以及能激发感官互动的细节。










