以本土建筑智慧为根基让结的集体精神与循环生态理念重归的住宅设计


在奄美岛中心的深山之中,酒井建筑事务所打造的奄美日式住宅设计,不仅是一座脱离电网的自主循环居所,更是应对环境危机、重拾地域文化的生活实验场。它源于业主对 “韧性生活” 的探索,在高湿度、低日照的亚热带气候下,以本土建筑智慧为根基,构建出无需外部供电与空调的舒适空间,同时让 “结” 的集体精神与循环生态理念,重新回归现代居住的核心。


这座住宅的诞生,始于业主对环境恶化与极端天气常态化的深刻考量。三年前买下的山地,让业主萌生了搭建微型基础设施、应对突发危机的想法,而奄美岛低至堪比日本北部的太阳辐射量,却为 “离网居住” 带来了核心挑战。在评估风能、水能、地热能后,太阳能成为最切实可行的方案,业主甚至以市区住宅为实验场,提前切断国家电网,验证了离网生活的可行性。



最终建成的住宅,实现了完全的自主循环:太阳能供电满足日常需求,自然通风与遮阳设计调节室内温湿度,厨余垃圾制成堆肥浇灌菜园,菜园蔬菜回归餐桌,建筑施工边角料成为柴火桑拿房的燃料。这种 “资源闭环” 的设计,让四口之家在恶劣气候条件下,无需依赖外部供给也能舒适居住,为环境不确定性加剧的时代,提供了 “韧性生活” 的全新范本。



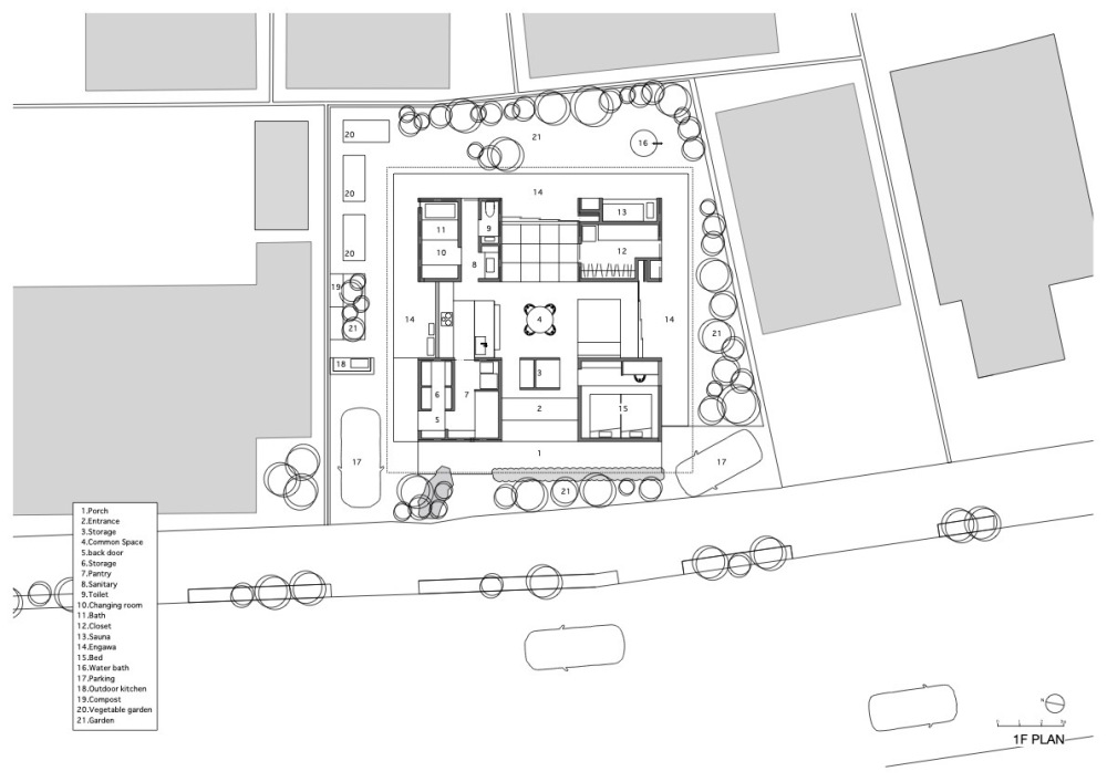
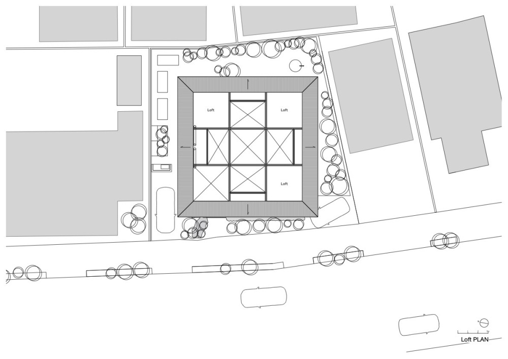
住宅的空间逻辑,深深植根于奄美岛的本土建筑传统。设计灵感源自当地历史上的 “分栋式”(buntō)布局,五个独立的功能区分别承载浴室、卧室、储藏室等功能,以几何形式排列,中间形成共享的过渡区域。这一布局既延续了传统建筑的功能分区智慧,又通过过渡区域与阳台、花园的无缝衔接,模糊了室内与室外、家庭与社区、人类与自然的界限。



建筑结构参考了当地高架式粮仓 “高仓”(takakura)的设计,底部架空让风从各个方向自由穿过,有效缓解了亚热带气候的闷热感;屋顶则重新演绎了当地的波纹金属屋顶与入母屋造(歇山顶)造型,整合了保温、通风、控光多重功能,宽大的屋檐既能遮挡强烈日照,又能应对突如其来的热带暴雨。每一处空间设计都不是对传统的生硬复刻,而是结合现代生活需求的创新诠释,让本土记忆在当代居住中焕发新生。



奄美住宅的核心价值,在于构建了一个 “资源循环、自给自足” 的动态生态系统,让建筑成为自然的一部分,而非对立的存在。在资源利用上,项目实现了 “变废为宝” 的闭环:建筑施工产生的木材边角料,被回收作为小型柴火桑拿房的燃料;日常生活的厨余垃圾,通过堆肥处理转化为有机肥料,用于浇灌住宅周边的菜园;菜园收获的新鲜蔬菜,又成为家庭餐桌的食材,形成 “生产 — 消费 — 回收 — 再生产” 的生态链条。这种循环模式,不仅减少了对外部资源的依赖,更让居住者重新建立起与土地、食物的直接联系,感受自然的馈赠与循环的智慧。在气候适应上,设计摒弃了空调等人工降温设备,转而依靠自然法则调节环境:高架结构促进空气流通,宽大屋檐遮挡烈日暴雨,屋顶与墙体的保温设计维持室内温度稳定。这种 “顺势而为” 的设计,让住宅在高湿度、低日照的恶劣条件下,依然能保持舒适的居住环境,实现了与自然的和谐共生。



奄美岛素有 “羁绊之岛” 的美誉,集体仪式是当地生活的核心,而这种文化传统在城市化进程中逐渐淡化。奄美住宅通过空间设计,重新唤醒了这种 “结”(yui)的集体协作精神,让私人住宅成为承载文化的公共平台。开放包容的空间布局,自然而然地吸引亲友邻里相聚 —— 家庭庆典可容纳八十多位宾客,欢乐时光延续至深夜,重现了传统集体生活的热闹场景。过渡区域的共享空间、与社区相连的花园阳台,模糊了私人与公共的界限,让住宅不再是孤立的 “庇护所”,而是连接人际情感、传承地域文化的 “文化平台”。这种设计让居住者在享受离网自主生活的同时,也能深度参与社区互动,重拾人与人之间的温暖羁绊。




奄美住宅的设计,超越了单纯的建筑功能,成为对 “居住本质” 的深刻思考。它以离网自主应对环境危机,以本土智慧适应气候挑战,以生态循环实现自给自足,以空间设计传承集体文化,最终将现代住宅重新定义为 “既是庇护所,也是文化平台” 的双重存在。
在环境不确定性日益加剧、人口老龄化与减少成为趋势的当下,奄美住宅提供了一种全新的居住可能:它证明了脱离电网的舒适生活并非遥不可及,传统建筑智慧与现代生态理念可以完美融合,居住空间不仅能满足个体的生活需求,更能成为传承文化、连接情感、抵御危机的重要载体。这座隐藏在奄美岛深山的住宅,不仅是一个家庭的生活居所,更是为整个社会探索 “韧性生活” 的先锋实验,为不确定的未来,给出了一份温暖而坚定的居住答案。












