白色走道牵着光织感官沉浸的网仿佛掉进梦里办公楼设计
该办公楼设计需求很明确,即打造一种 PANIKE 体验,甚至早于最终构成建筑干预措施的 PANIKE 总部翻新构想。它应当是一种虚拟、感官、沉浸式的体验;一个融合过去、现在与未来的非场所。
我们或许能偶尔脱离时间的流逝,但这个非场所并非永恒存在。体验结束后,我们会失望地回到自己所生活的时空情境中。沉浸式体验就像脱离现实参照的气泡。借鉴奥热的观点,在当时的 Panike 旧总部里,我们找到的是一个可供运作的空间,而非一个能产生归属感的空间。
Panike 位于马亚市莱安德鲁的设施,由一个工业单元和一栋 3 层的行政大楼组成。该场地与它所处的田园地带显得格格不入。它紧邻一个错综复杂的乡村聚居区,该聚居区由坚固的花岗岩 masonry 建成,如今正面临存续危机。这种景观上的时代错位在大楼内部依然存在。
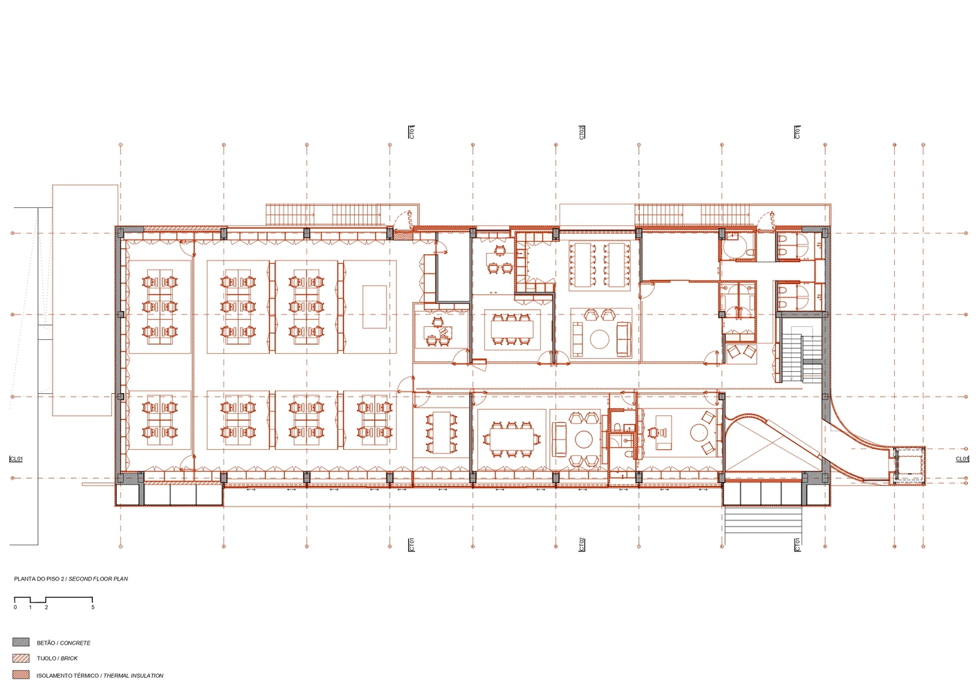
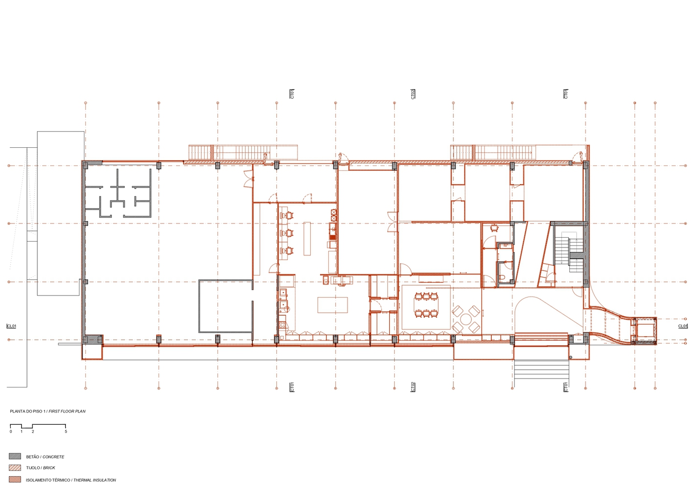
我们起初只是小心翼翼地进行局部重组,重点放在中间楼层 450 平方米的区域(接待区和 Panike 体验区),当时我们认为 2400 平方米的行政大楼亟需翻新。在项目推进过程中,我们提出的对大楼进行全面修复的要求得到了满足。
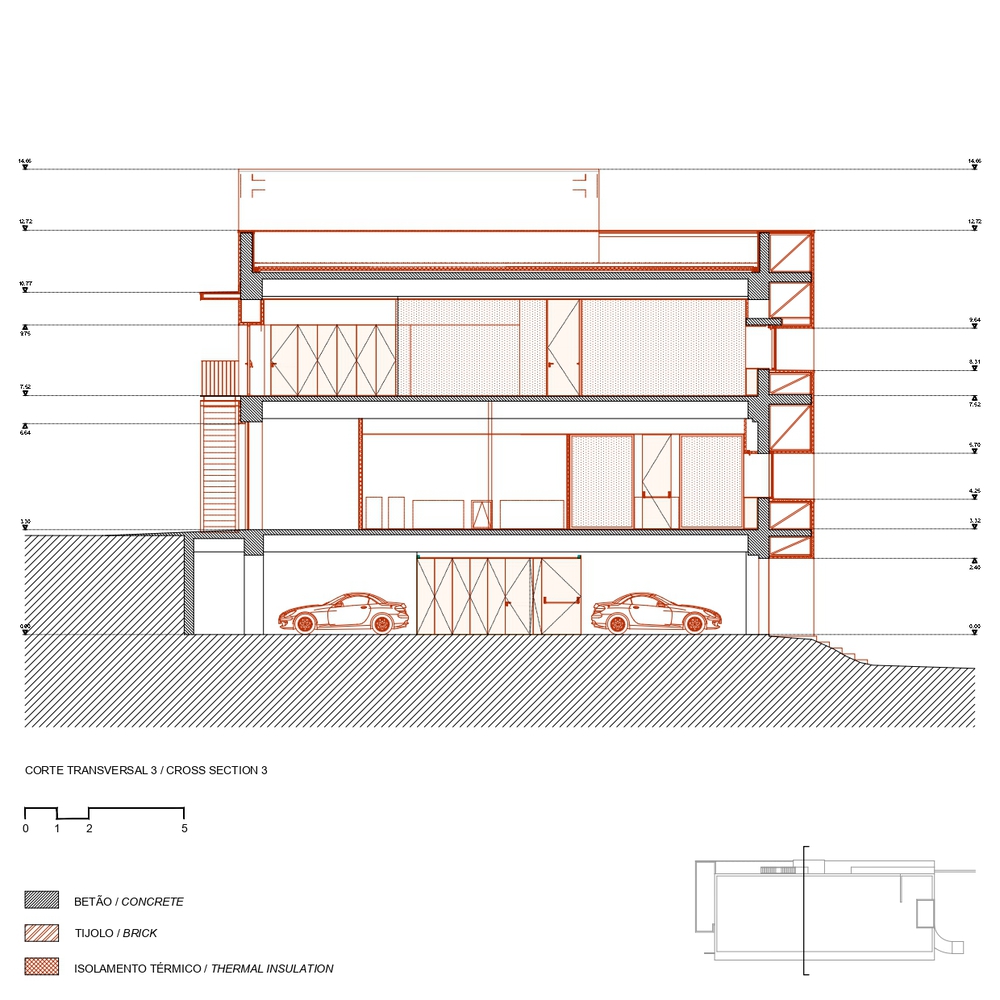
用作停车场的底层,曾像个地下室,毫无光线可言。在城市郊区,人们出行依赖汽车。停车场因此获得了接待功能的属性。我们首先着手改造这一接待空间 —— 停车场。我们拆除了正面的墙体,让光线涌入空间。我们将天花板和车位区域做暗处理。我们用一条白色走道来标示通道,与之相呼应的是天花板上一条由石膏板制成的悬浮饰带。
在社交空间(上层楼层),我们在墙面和天花板使用了石膏(尽管我们曾提议采用吸音天花板,但遗憾的是这一方案未能实施);地面、门和家具采用了木材;玻璃则用于分隔工作空间和公共空间。室内空间充满了通透感与共享性。我们重新规划了空间体量,确立了一个 ETICS 材质的实心块体构想,块体上有深邃的窗洞,为室内遮挡烈日。窗台和披水板采用锌材质。我们添加了一个异质元素 —— 电梯,它就像一个异于原有体量的存在。