强调手工元素的不完美恢复传统住宅建筑遗产的小别墅设计
Oct 13 , 2025 |
Views :
418
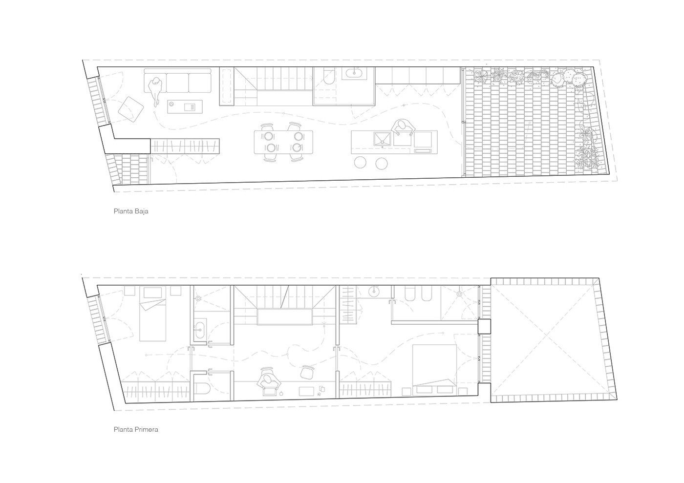
该别墅设计在Foios老工人区的一片狭长低洼地块上,有一栋房屋被相邻的建筑围墙包围着,这栋房屋旨在恢复周边地区的传统住宅建筑遗产。从高度、形状和材料选择上看,它与周边的房屋和谐地融为一体,并不显得突兀。该住宅的设计理念强调私密性、采光和空间,以充分利用整个居住区的长度和地块的潜力。
室内设计界定了空间,并在不触及天花板的情况下巧妙地穿过不同的房间。楼梯位于一个从上方采光的房间内,构成了中心区域,并将房屋的不同楼层连接起来。内部庭院将建筑与邻居分隔开来,并为房屋带来充足的日光。
所使用的材料强调了手工元素的不完美,并采用了合理的策略,将附近村庄的制砖业融入其中。不同规格的砖块满足了房屋的结构要求。砖块作为外墙覆层,同时以延伸的形式形成排水沟。实心砖作为内墙的饰面,在外立面上也能看到。砖块垂直排列,间隙比例越来越大,显示出房屋的结构要求。