传统外衣下的现代灵魂宗教与社区的奇妙交融的中心设计
该提供宗教和社区功能为一体的中心设计是由于新的住宅项目,现有神社需要搬迁,这为设计一个能将传统与当代需求无缝融合的空间提供了契机。这块 400 平方英尺的场地,不仅被设想为供奉当地神灵达塔勋爵的神社,还被规划成一个充满活力的社区空间,以促进人们之间的联系和团结。
起初,客户期望的是一个深深植根于历史寺庙建筑风格的传统设计。然而,经过深入的讨论与合作,设计思路得到了拓展,融入了当代设计理念。最终呈现的神社既尊重其宗教根源,又能适应社会不断发展的需求。该设计突破了传统寺庙的布局模式,融入了促进社区交流和精神反思的元素。
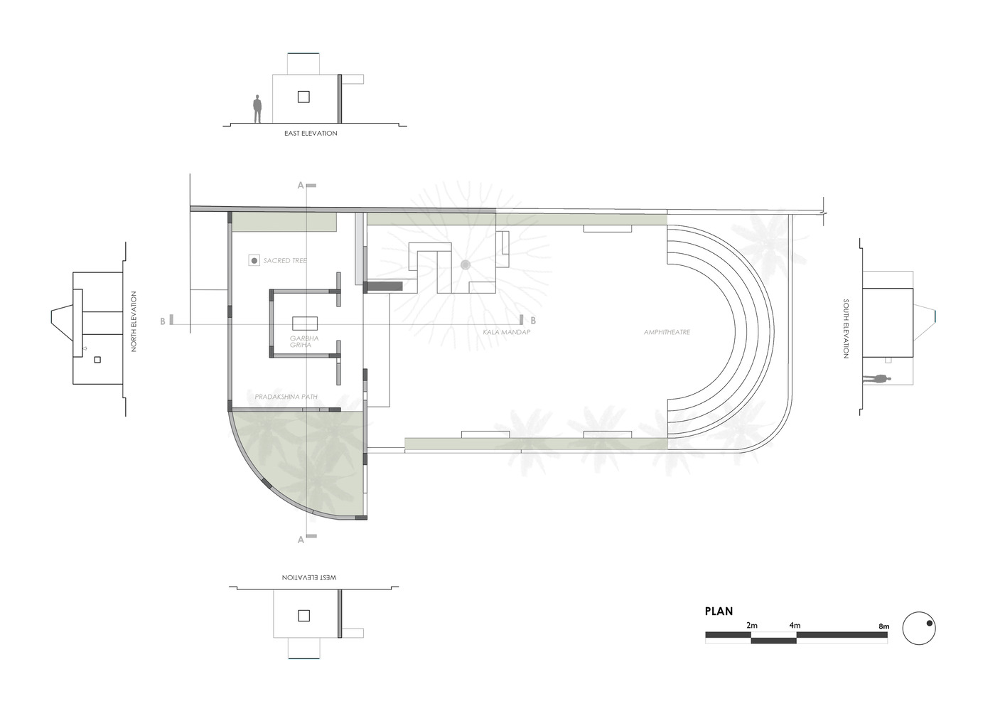
设计采用了当代风格,在尊重传统印度教神社精髓的同时,吸引各个年龄段的人群。建筑结构的形式灵感来源于如内殿(garbhagriha)、集会大厅(mandapa)和绕行通道(pradakshina path)等古典元素,并以现代美学重新诠释。神社顶部的尖塔(shikhara)设有天窗,自然光可以透过天窗照亮神像,营造出宁静且令人心灵升华的氛围。
在寺庙主体之外,一个带有露天剧场的大型开放区域提升了空间的功能性。这个区域可用于举办社区活动、文化集会和宗教讲座,促进社会和谐。为了使设计更贴合当地环境,设计师巧妙地融入了马哈拉施特拉邦的建筑元素。比如利用平台(otta)、门槛(par)和类似阳台的空间(osari)在树周围打造座位,既增添了传统韵味,又为游客提供了阴凉的休憩场所。
整个建筑结构采用黄色石灰膏进行表面处理,让人联想到檀香木,增强了建筑的触觉和视觉吸引力。这一选择不仅契合神社的神圣特质,还将其与当地的文化特色紧密相连。
材料的选择对于实现设计的和谐美学至关重要。醒目的黄色赋予神社温暖和现代感,而玄武岩地板则增添了一种沉稳、永恒的魅力。这些材料的选择确保了神社与自然环境完美融合,同时其现代魅力也能吸引更广泛的受众。总体而言,该设计将神社转变为一个多功能空间,成为精神、文化和社交的中心,在传承传统与拥抱现代之间架起了桥梁,同时也培养了社区精神。