棱角分明折纸褶皱与耐热石砖相结合的小型别墅设计
Aug 16 , 2025 |
Views :
675
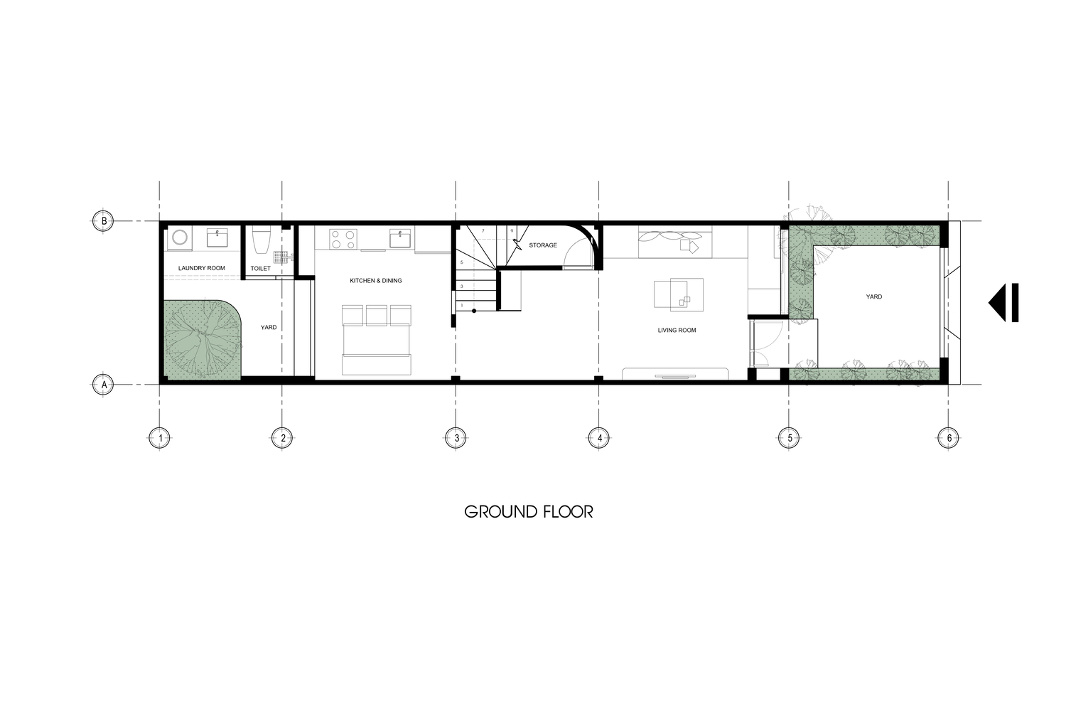
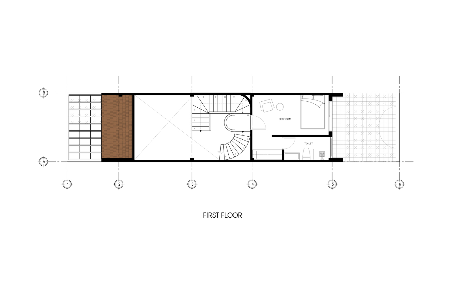
该小型别墅设计外立面灵感来自折纸的褶皱,创造出一种耐人寻味的视觉结构。棱角分明的折叠设计与耐热石砖相结合,非常适合越南的炎热气候,确保了凉爽舒适的室内环境。
该房屋采用质朴简约的设计风格,采用原材料,给屋主带来温暖和放松的感觉。独具匠心的天窗既能透过自然光,又能增强通风效果,是热带气候下狭窄筒式房屋的理想解决方案。
由天然石块砌成的入口大门就像一座坐落在西贡市中心的堡垒。折纸屋完美融合了石瓦外墙、折叠元素、自然采光和通风以及原始质感的室内装饰,是热带住宅的理想建筑方式。